Регистрация

От $ 35 тысяч. Как выглядят и сколько стоят самые дешевые однокомнатные квартиры в Минске

26.09.2021 37238

На Realt.by можно найти различные предложения квартир в продажу в Минске. Мы выбрали для вас самые бюджетные однокомнатные квартиры — их стоимость не превышает 40 000 долларов. Многие из них требуют вложений в ремонт и обустройство.

На ул. Передовая (р-н Тракторный завод)

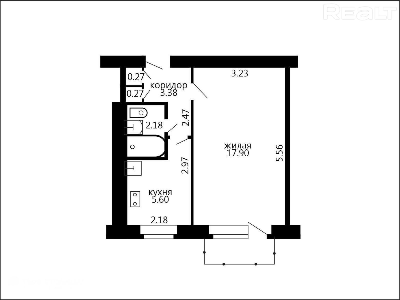
В доме по адресу улица Передовая, 5 продается однокомнатная квартира общей площадью 30 м² (жилая — 18, кухня — 6). Дом кирпичный, пятиэтажный, построен в 1970 году.

Квартира расположена на пятом этаже. В ней совмещенный санузел, есть балкон. Полы дощатые.

В шаговой доступности много детских садов, школ, поликлиника, больница, магазины, парк. До станции метро «Тракторный завод» около 20 минут на общественном транспорте. Также возле дома ж/д станция «Тракторный».

Цена: $ 35 500.

На ул. Чигладзе (р-н Масюковщина)

Однокомнатная квартира продается в пятиэтажке по адресу улица Чигладзе, 4. Дом кирпичный, построен в 1970 году. Проведен капитальный ремонт. Общая площадь квартиры 32 квадратных метра (жилая — 17, кухня — 5,5).

Квартира расположена на пятом этаже. Полы и окна деревянные. Санузел совмещенный.

Дом имеет удачное расположение. До станции метро «Пушкинская» 15 минут на общественном транспорте. В шаговой доступности торговые центры, парки, детский сад, школа.

Цена: $ 36 000.

На ул. Ауэзова (р-н Чижовка)

В доме по адресу улица Ауэзова, 9 продается однокомнатная квартира площадью 33 квадратных метра (17 — жилая, 6 — кухня). Она расположена на пятом этаже панельного пятиэтажного дома, построенного в 1969 году. В 2009 году проведен капитальный ремонт.

Как пишут в объявлении, за квартирой закреплен подвал, есть дополнительное место для хранения габаритных вещей. В прихожей установлен шкаф-купе. Санузел раздельный. В комнате идеально ровный потолок. На кухне и санузле плитка.

В районе несколько детских садов, школ, магазинов, поликлиника, больница, банки, аптеки, рынок. В одной остановке от дома Чижовское водохранилище. В шаговой доступности остановки общественного транспорта. До станций метро «Автозаводская» и «Могилевская» 9 остановок. Также рядом удобный выезд на МКАД.

Цена: $ 39 500.

На пр-те Рокоссовского (р-н Серебрянка)

«Однушка» площадью 32 квадратных метра (жилая — 17, кухня — 6) продается в доме по адресу проспект Рокоссовского, 47. Она находится на первом этаже. Дом панельный, пятиэтажный, 1972 года постройки.

В квартире установлена металлическая входная дверь, стеклопакеты, есть встроенные шкафы. Полы из ламината. При покупке жилья новым владельцам останется вся мебель и техника.

Возле дома находится большой магазин, а также крупный гипермаркет, детские сады, школы, спортивный комплекс, парк и так далее. Без пересадок на общественном транспорте можно добраться до станций метро «Площадь Ленина» и «Партизанская».

Цена: $ 38 900.

На ул. Либкнехта (р-н «Розочки»)

В доме по адресу улица Либкнехта, 84/1 продается однокомнатная квартира. Общая площадь 28 квадратных метров (жилая — 17, кухня — 6). Расположена на первом этаже. Дом кирпичный, четырехэтажный, построен в 1959 году. В 2018 проведен капитальный ремонт.

В квартире деревянные полы и окна. Санузел совмещенный. Установлены счетчики воды. Окна квартиры выходят на улицу. Возможен перевод в нежилой фонд. Соседняя квартира тоже в продаже с такой же возможностью.

Дом имеет удачное расположение. До центра города можно быстро доехать. Рядом с домом остановка общественного транспорта. Есть вся необходимая инфраструктура — детские сады, школы, магазины, поликлиника и больница, аптека, банк и так далее.

Цена: $ 35 500.

Читать:
Лента новостей
Опрос
Как вы считаете, покупать квартиру лучше сейчас или следует подождать?