Регистрация

В воротах Витебска продается квартира, время в которой застыло в БССР. Показываем, что внутри

01.11.2025 1506

В знаменитом доме прямо напротив железнодорожного вокзала в Витебске на продажу выставили квартиру, в которой сохранилась почти нетронутая атмосфера начала 60-х. Там и старинная советская мебель, и оригинальные двери. Даже плитка там, судя по всему, из того времени. Рассказываем об этом доме и жилье в нем подробнее.

Этот дом на Кирова, 2 — одна из башен ворот Витебска, которые видит каждый, кто приезжает в город на поезде. Ведь железнодорожный вокзал — прямо напротив этих зданий.

Дом на Кирова, 2 был построен в 1960 году, но по сути и по наполнению это сталинка. Дело в том, что изначально построить его планировали пораньше, но из-за недостатка денег сдачу дома пришлось перенести.

Жилье в доме предназначалось в основном для железнодорожников, но жили тут и разные известные люди, в том числе Герои СССР.

Сейчас на Realt в этом доме выставили на продажу двухкомнатную квартиру, по которой можно представить, как жили здесь буквально после заселения. Ведь в ней сохранился интерьер начала 60-х.

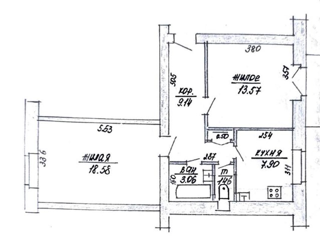
Квартира находится на третьем этаже. Площадь — 54,2 квадратного метра. Потолки — 3 метра. Планировка вот такая:

Как видим, комнаты в квартире изолированные. Внутри в них — вот так:

Из окон одной из комнат открывается вид на Привокзальную площадь.

Кухня — почти 8 квадратных метров. Здесь можно увидеть оригинальную плитку, которая сохранилась с момента сдачи дома.

Санузел в квартире раздельный. В ванной — та же оригинальная плитка.

Во дворе дома — много зелени и оригинальная зона отдыха со скамейками и даже мини-скульптурами львов.

Кстати, в 2026 году в доме планируют провести капремонт.

За квартиру просят 57 тысяч долларов. Метр выходит по 1051 доллару.

Кстати, на Realt продается и много других квартир в Витебске. А еще на Realt легко и просто продавать свое жилье.

Читать:
Лента новостей
Опрос
Как вы считаете, покупать квартиру лучше сейчас или следует подождать?