Регистрация

Нашли идеальную дачу в 27 км от столицы. Бонусом — сосны, баня и даже посудомойка

24.04.2026 37377

Мечтали о домике среди высоких сосен? Сегодня показываем именно такой вариант. В нашем объективе — уютная дача с настоящим деревенским характером всего в 27 км от Минска. Здесь и добротный дом со всеми удобствами, и полностью готовая баня. Кстати, вся мебель и техника уже входят в стоимость (весьма приятную!). Рассказываем.

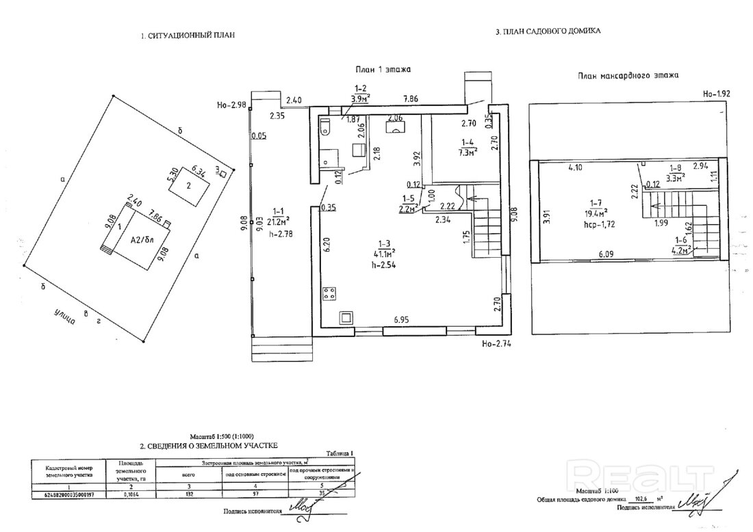
Дача располагается в садовом товариществе «Амкодор-202». Это — Смолевичский район, Московское направление, 27 км от МКАД.

Выставленный на продажу блочный дом возвели в 2015 году. Он стоит на свайно-ростверковом фундаменте. Дача уже утеплена, оштукатурена и покрашена. На крыше — ондулин.

Общая площадь коттеджа с мансардным этажом составляет 102 квадратных метра.

Первый этаж дома включает в себя веранду, кухню-гостиную и большой санузел с душевой кабиной. Внутри дачи сделана отделка в стиле «Белорусская хата». В интерьере много дерева и мебели ручной работы.

В доме уже есть все необходимое для проживания. Вообще, по укомплектованности техникой эта дача может дать фору даже городской квартире. Тут есть кухня с посудомоечной машиной, фильтром для воды, холодильником и плитой. Санузел с душевой кабиной, стиральная машина и бойлер. Вся мебель и техника достанется новым жильцам.

Для отопления дома используется чугунная польская печь-камин с высоким КПД.

На втором уровне, куда ведет качественная деревянная лестница, находится спальная комната.

Из удобств на даче есть вода (собственная скважина 44 метра с чистой водой без железа), местная канализация (3 кольца), хороший мобильный интернет и телевидение.

Дом стоит на огороженном участке площадью 10 соток. Украшение территории — взрослые сосны. Также на участке есть беседка, дорожки, зона барбекю, плодовые деревья и кусты, теплица, обработанные грядки.

Имеется в загородном доме и отдельно стоящая капитальная баня из блоков, обшитая доской. Внутри — комната отдыха, санузел с душевой и печь на дровах.

В объявлении отмечается, что до дачного поселка ходит маршрутка от станции метро «Восток», в шаговой доступности также находятся станции электрички «Домашаны» и «Загорье». В 7 км — Смолевичи. Некоторые жители СТ проживают тут круглогодично.

А продается эта уютная дача за 224 тысячи рублей, или 80 тысяч долларов.

Читать:
Лента новостей
Опрос
Как вы считаете, покупать квартиру лучше сейчас или следует подождать?