Регистрация

Дома для семьи. Смотрим варианты поближе к Минску по цене трешки

28.03.2026 18766

Когда смотришь на стоимость квартир в Минске, невольно возникает вопрос: а может лучше за эти деньги сразу дом в пригороде купить? Что ж, пока такая возможность имеется — цены на загородку не так быстро растут, еще есть варианты. В нашей подборке вы найдете свежие дома, подходящие для большой семьи: все больше ста квадратов, в каждом по 3−4 спальни, по два санузла, просторные гостиные и кухни. Локации тоже зачетные — с видом на лес, рядом с речкой и озером.

СТ «Малиновка-Сад», логойское направление, 9 км от МКАД

Товарищество находится в окрестностях деревни Чертяж. Участок примыкает к лесу. 

Дом стоит на утепленном фундаменте, стены из блоков, утепление 100 мм. На крыше – металлочерепица, бесшовная ливневая система. Перекрытие утеплено минеральной ватой 200 мм.  Фасад выполнен из натуральных паропроницаемых материалов: декоративная штукатурка, планкен из лиственницы и плитка ручной формовки. Есть архитектурная подсветка.

Общая площадь – 127 м2. Внутри продуманная авторская планировка для комфортной жизни: просторная входная зона, кухня с островом, гостиная с панорамными окнами, мастер-спальня с собственным санузлом, две отдельные детские комнаты, общий санузел, котельная-постирочная.

Дом полностью готов под чистовую отделку, электрика разведена с учетом расстановки мебели.

Отопление газовое, с теплыми полами во всем доме. Водопровод центральный, канализация местная.

Участок 10 соток, огорожен. Имеется терраса, выполнено мощение плиткой, сделан отвод ливневой воды с кровли в колодец. 

Стоимость 176 000 долларов.

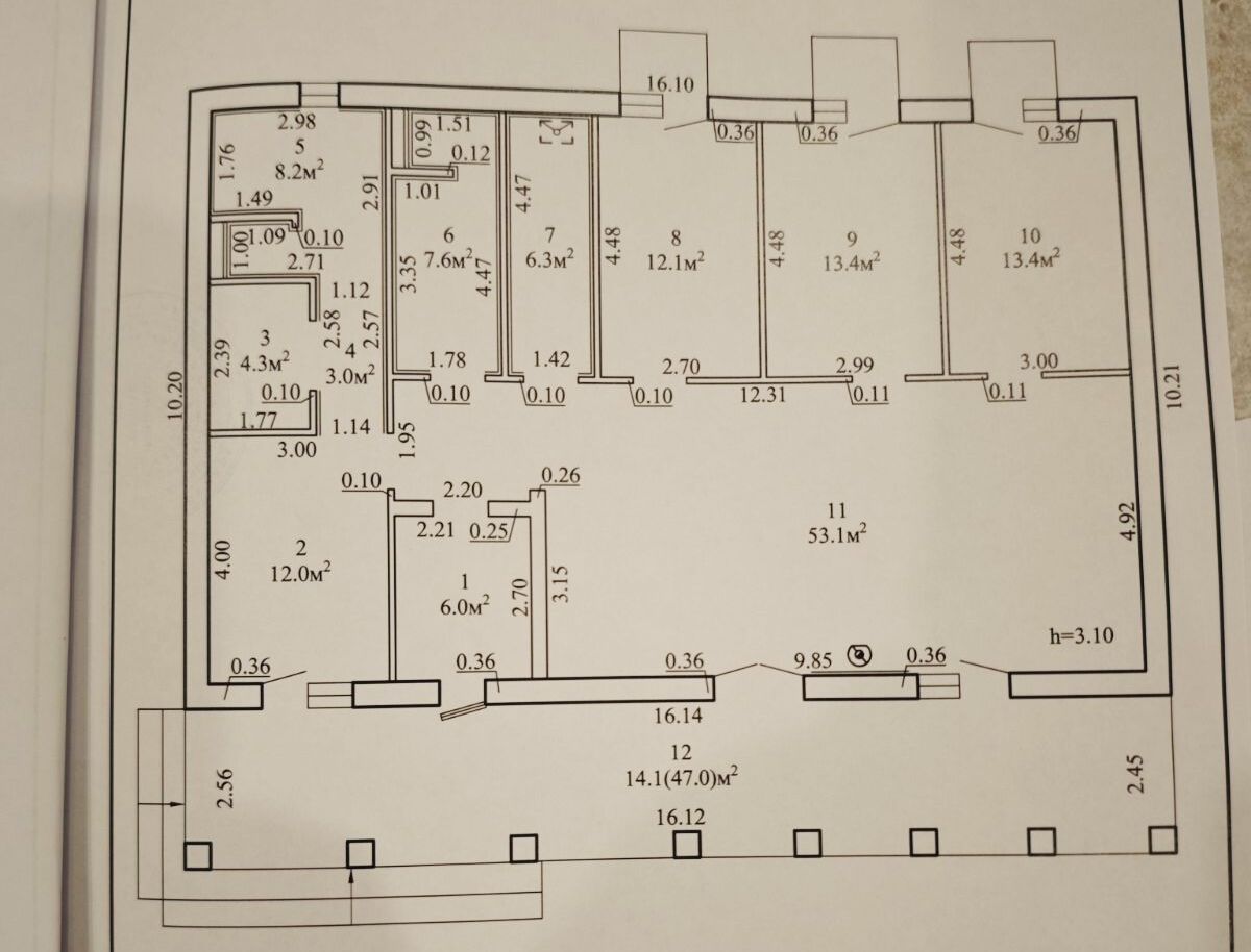
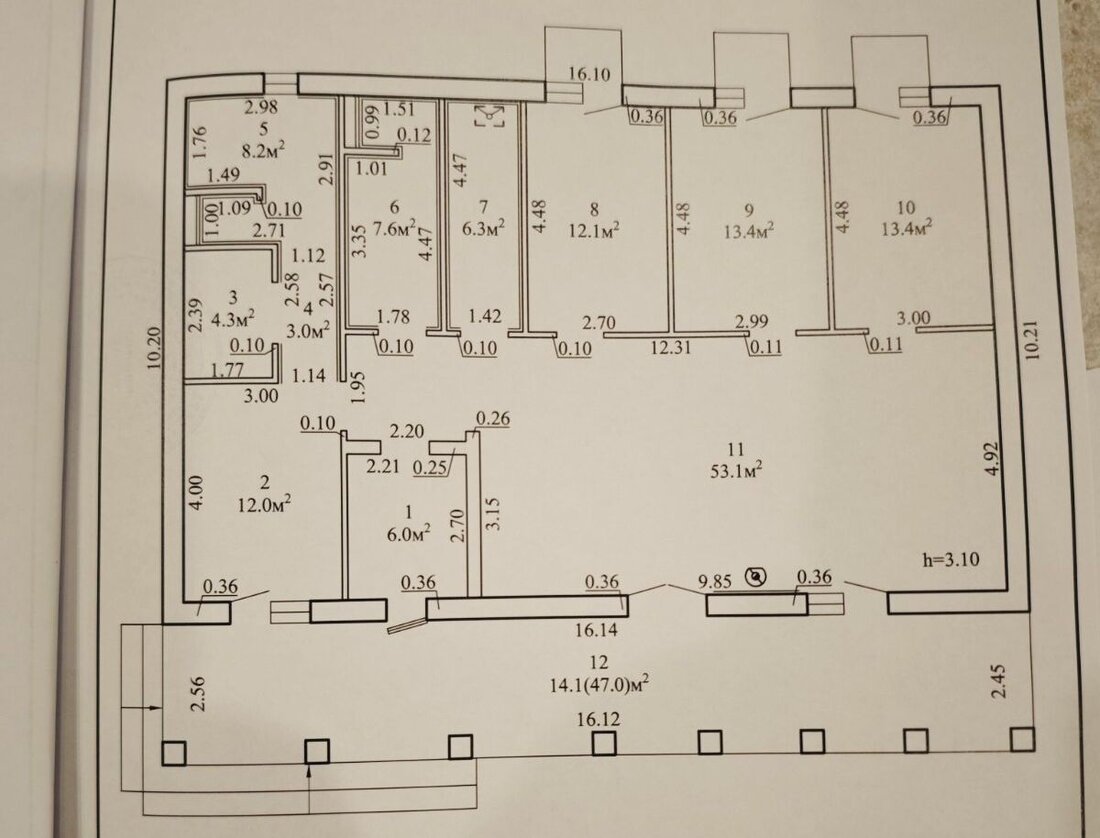
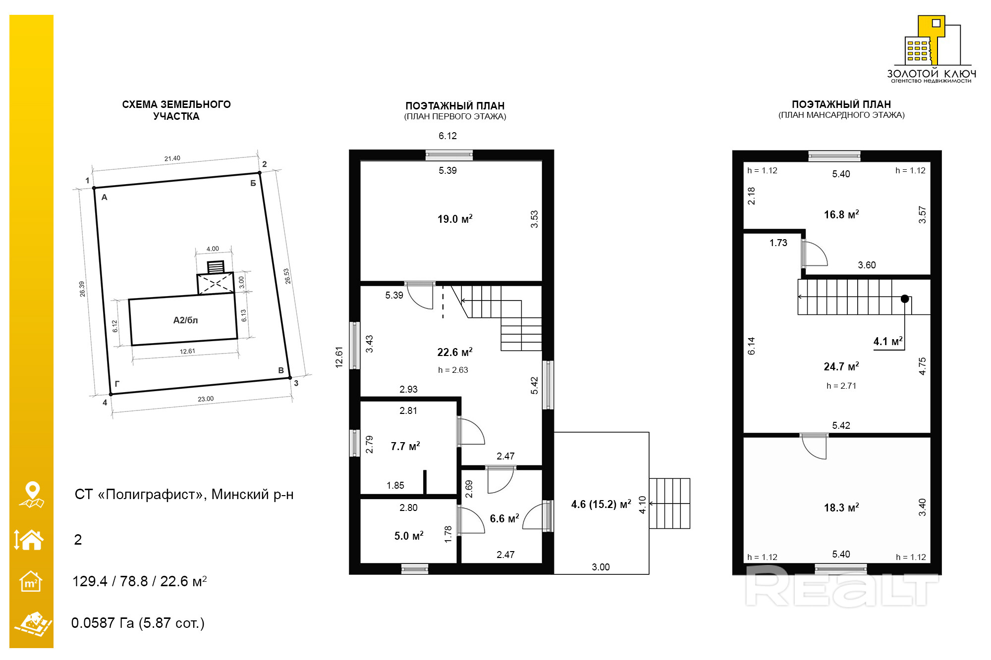
СТ «Полиграфист», молодечненское направление, 22 км от МКАД

Товарищество рядом с сосновым бором и санаторной зоной. В этом СТ живут круглый год, дороги асфальтированы и регулярно чистятся зимой, на въезде установлены камеры. Рядом имеются магазины, остановки транспорта, школа и детский сад — в Лошанах. До Минска — около 10 минут на автомобиле, маршрутки ходят каждые 20 минут.

Здесь продаётся современный двухэтажный дом 2023 года постройки. Общая площадь — 129,4 м2. Установлены энергоэффективные стеклопакеты, входная дверь — с терморазрывом.

Планировка продумана для семьи с детьми. На первом этаже — просторная кухня-гостиная, большая жилая комната, санузел, прихожая и котельная.

На втором этаже — две светлые спальни и дополнительное пространство под кабинет, игровую или зону для учебы и хобби.

Внутри сделан качественный ремонт, установлена вся необходимая техника, мебель выполнена по индивидуальному заказу — можно заезжать и жить без лишних забот.

Отопление — электрическое. В доме теплые полы по всему первому этажу, радиаторы на втором. Большое внимание уделено безопасности: видеонаблюдение по периметру с ночным режимом и датчиками движения, управление с телефона, стабильный интернет и Wi-Fi по всей территории участка.

Участок 5,9 сотки полностью благоустроен: аккуратный газон, тротуарная плитка, ливневая система. Установлены автоматические ворота. Здесь есть место и для игр детей, и для семейных посиделок на свежем воздухе.

Стоимость этого дома для круглогодичной жизни в СТ — 134 999 доллларов.

СТ «Родник-2009», раковское направление, 23 км от МКАД

Места очень живописные – вокруг сосновый лес, река Ислочь, водопад, оборудованный пляж. СТ примыкает к деревне Аксаковщина. Подъездные пути асфальтированы.

Общая площадь – 153,5 м2. В доме 4 спальни, 2 санузла, котельная, гардеробная и просторная кухня-гостиная.

Интерьер современный, ремонт свежий. Остается мебель и техника. 

Отопление газовое, круглогодичный центральный водопровод, канализация местная.

Участок 7,8 сотки огорожен, установлены автоматические ворота, есть большая площадка для парковки.

Продается за 199 000 долларов. Возможен обмен на квартиру в Минске.

Каменка, московское направление, 32 км от МКАД

Здесь продается двухэтажный дом, готовый к проживанию. Построен в 2009 году, но 4 года назад была заменена крыша (утепление, хорошая металлочерепица), утеплен фасад, сделана отапливаемая комната отдыха с большим количеством посадочных мест (ТВ, караоке) и панорамными окнами. В общем, выглядит вполне современно.

Общая площадь — 200 квадратов. На первом этаже расположены кухня, комната отдыха, три спальни, санузел, топочная, прихожая, холл.

Второй этаж — это одна огромная жилая комната (65,5 м2) и санузел. Возможна продажа со всей мебелью или частью (обсуждается).

В доме установлен газовый котел, сделаны теплые полы (кухня, коридор, прихожая). Электричество 380 вольт. Водопровод и канализация имеются.

Участок 25 соток. Есть большая стоянка с зарядкой для электроавтомобиля на 7,5 кВт. Имеется вольер для собаки, электрифицированная беседка с мангалом и сарай (свет тоже есть).

За все это просят 154 000 долларов.

Володьки, слуцкое направление, 38 км от МКАД

Деревня в 25 минутах от станции метро «Слуцкий гостинец». Дом расположен в новой коттеджной застройке с асфальтированными дорогами. Рядом развитая инфраструктура: есть магазин, школа, детский сад, конная школа, амбулатория.

Дом одноэтажный, построен в 2023 году. Общая площадь — 127,4 м2.

В нем четыре спальни, кухня-гостиная с выходом на террасу, два санузла, кладовка и котельная.

Все коммуникации заведены в дом и функционируют. Отопление на газу, есть печь.

Участок 15 соток, частично благоустроен.

Стоимость — 130 000 долларов.

Читайте также:

Задача на выходные: оживить газон после зимы. Рассказываем, как это правильно сделать

Нашли пять бюджетных однушек в центре Минска. Как они выглядят?

Читать:
Лента новостей
Опрос
Как вы считаете, покупать квартиру лучше сейчас или следует подождать?