Регистрация

Дом с идеальной планировкой в 10 км от Минска. Смотрим готовый вариант, где никто не жил

17.03.2026 41521

А хотите новый дом с идеальной планировкой и всего в 5 минутах от Уручья? В продаже как раз такой появился: в один этаж, с большой гостиной, с кладовкой при кухне, мастер-комнатой со своим санузлом, тремя спальнями и гардеробной. В нем еще никто не жил, но дом полностью готов к заселению — новым владельцам понадобится только мебель. Во дворе — парковка с зарядкой для электромобиля. Вот сколько стоит этот вариант.

Дом находится в деревне Королев Стан, всего в 10 километрах от Минска по скоростной трассе М-2. Это частная застройка, тихое и спокойное место.

Дом новый, 2025 года постройки. Он одноэтажный, с двускатной крышей, окнами в пол и комбинированным фасадом.

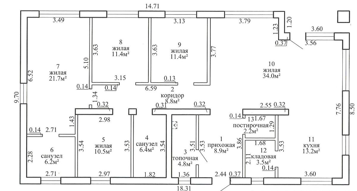
Общая площадь — 143 м2. Взгляните на планировку — она идеальная для проживания большой семьи.

Прихожая находится в центральной части строения. Здесь же находятся помещения топочной и постирочной.

Направо от нее находим большое помещение гостиной с панорамным остеклением и выходом на террасу.

В кухонной зоне с окном имеется небольшая кладовка — хозяйки должны оценить ее удобство.

В левой части дома расположены три спальни и общий санузел.

В конце коридора — мастер-спальня со своим санузлом.

В помещениях выполнена чистовая отделка: стены покрашены, на полах плитка и паркет, потолки натяжные, со встроенными светильниками. Мебели практически нет — в доме никто не жил.

В санузлах плитка, качественная сантехника.

Отопление на газу, водопровод центральный, канализация местная. Установлена система видеонаблюдения, есть IP-видеодомофон.

Участок 16,3 сотки, огорожен, благоустроен, с хозпостройкой. На парковке имеется зарядка для электромобиля.

За этот готовый к заселению новый дом просят 300 000 долларов.

Читайте также:

Почти гектар закрытой территории и 5 теннисных кортов профессионального уровня. В Минске продают уникальный спорткомплекс

Читать:
Лента новостей
Опрос
Как вы считаете, покупать квартиру лучше сейчас или следует подождать?