Регистрация

Дом «под ключ» в 15 минутах от Минска: с баней и бассейном, гаражом и лесом за забором

03.03.2026 16062

На рынке загородной недвижимости покупателю часто приходится выбирать между «голым» коттеджем без отделки, который требует дополнительных вложений, и готовым вариантом по цене, далекой от адекватности. Но есть и исключения. Сегодня к нам в обзор попал, пожалуй, один из самых интересных объектов по соотношению «цена-качество» в ближайшем пригороде: дом «под ключ» с гаражом, баней, всепогодным уличным бассейном и заказником за забором. Вот подробности.

Юхновка давно заслужила репутацию престижного места для жизни — 12 километров от МКАД, 15 минут до метро «Уручье». Здесь воздух чище, а виды живописные — сразу за поселком начинается Юхновский биосферный заказник. Рядом с участком сосновый лес, два озера и река Волма с оборудованным пляжем. Рядом нормальная инфраструктура: магазины, школа, детский сад и амбулатория. Остановка автобуса в четырёхстах метрах, электричка в девятистах пятидесяти — это идеальный баланс между природой и городом, когда вы не выпадаете из ритма столичной жизни, но живёте в совершенно другом качестве.

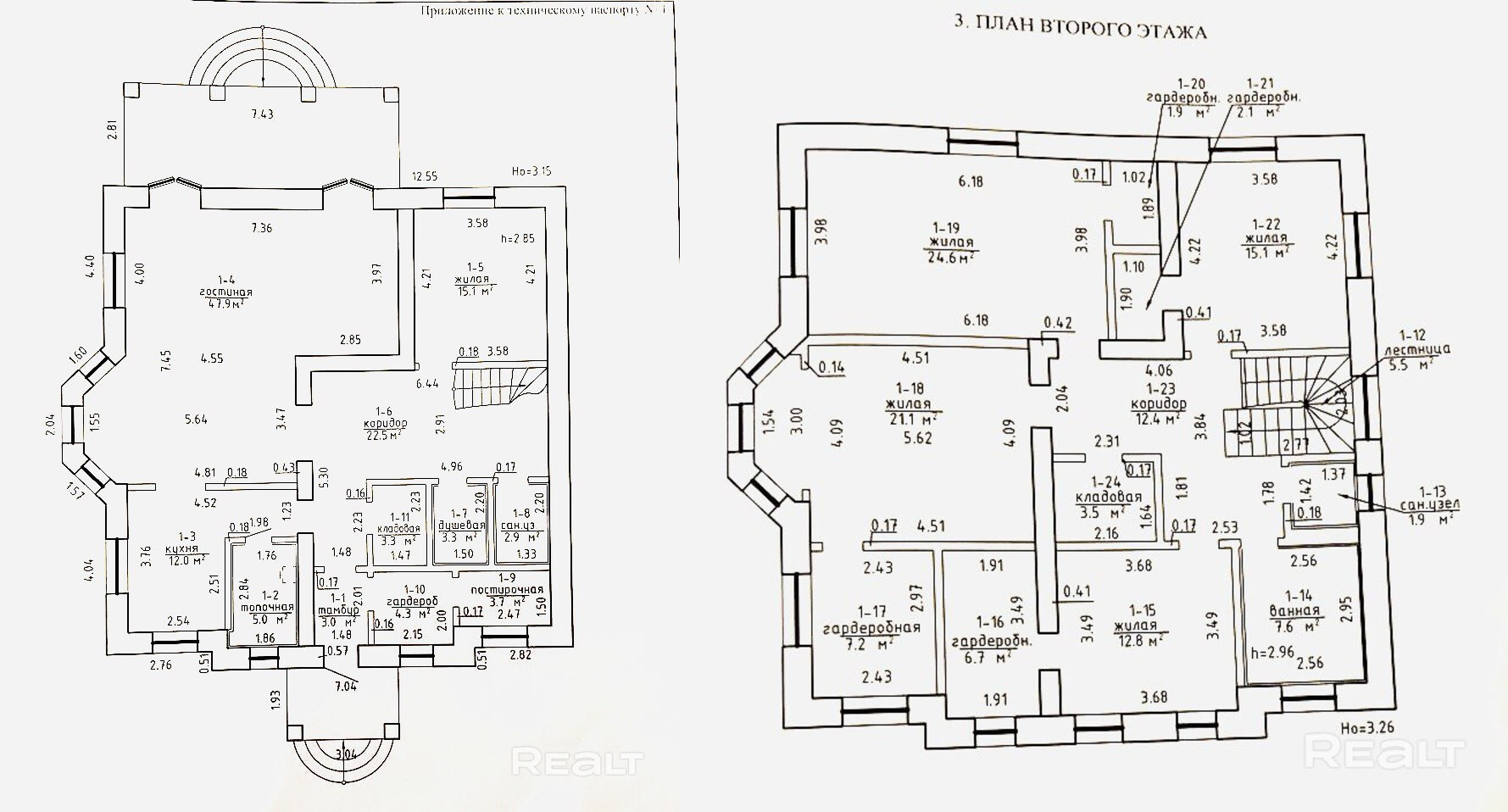
Основной дом 2015 года постройки. Это капитальное строение в два этажа на доказавшем свою надежность фундаменте, со стенами из газосиликатных блоков и лаконичным фасадом (качественная декоративная штукатурка). На крыше — вечная черепица. К дому пристроен гараж на два автомобиля с подвалом.

Планировка подчеркивает функциональный подход к организации загородной жизни — все помещения продуманы под реальные сценарии жизни семьи. Общая площадь с учетом гаража — 280 м2.

Итак, давайте прогуляемся дому. С парадного крыльца попадаем в прихожую, где слева находится дверь в гардеробную, а за ней — постирочная.

Проходим прямо и попадаем в холл с лестницей на второй этаж. Здесь видим три двери: кладовая, душевая, санузел. Еще одна дверь за лестницей — в кабинет. В правой части первого этажа находятся гостиная с панорамными окнами на задний двор, кухня и столовая. Рядом со входом на кухню находится топочная.

Второй этаж — приватная зона с четырьмя спальнями, каждая из которых оснащена собственной гардеробной, что избавляет от необходимости загромождать комнаты шкафами.

Есть и отдельные технические и хозяйственные помещения, продуманы места для хранения.

Отделка высокого уровня: дубовый паркет, качественная керамическая плитка, продуманное освещение, хорошая сантехника — все это уже работает и радует глаз.

Не менее ценное и важное в этом доме — отлаженная инженерия. Здесь газовое отопление с автоматикой и водяные тёплые полы по всему дому. Собственная скважина глубиной 62 метра и мощная система очистки воды дают воду чище, чем из бутылки. Есть стабилизатор и резервный генератор на случай перепадов напряжения, проведено оптоволокно для быстрого интернета, подключено видеонаблюдение.

Но дом — это лишь половина всего объекта. На участке имеется банный комплекс на 100 квадратов с зоной отдыха вокруг него. Отдельное здание бани в едином стиле с домом включает просторную парную и комнату отдыха, крытую террасу с печью-барбекю.

Рядом расположен уличный бассейн с системой подогрева, мощной фильтрацией и функцией противотока, позволяющей плавать, как в мини-бассейне. Над бассейном установлен раздвижной прозрачный купол — уникальная опция, которая даёт возможность в хорошую погоду купаться под открытым небом, а в непогоду надежно защищает водную гладь от листвы, ветра и дождя.

Участок 15 соток — полноценная ландшафтная композиция с продуманной системой автоматического полива, идеальным газоном, освещенными дорожками.

В итоге мы получаем готовый для заселения загородный комплекс, в который не нужно вкладываться в отделки и доделки — заезжай и живи. За это все просят 397 000 долларов — не так уж и мало. Но это вариант для тех, кто умеет считать: чтобы построить нечто подобное потребуется немало времени и сил. И не факт, что получится дешевле.

Читать:
Лента новостей
Опрос
Как вы считаете, покупать квартиру лучше сейчас или следует подождать?