Регистрация

От 70 тысяч долларов. Смотрим бюджетные сталинки около метро, которые недавно появились в продаже

05.01.2026 21987

Посмотрим, как выглядят и сколько стоят сталинки довольно бюджетные сталинки с приличным ремонтом в шаговой доступности от метро. Сегодня остановимся на относительно новых вариантах, которых появились в продаже в течение предыдущего месяца. В подборку попали квартиры от одной до трех комнат по стоимости от 70 тысяч до 115 тысяч долларов.

Однушка около «Тракторного завода»

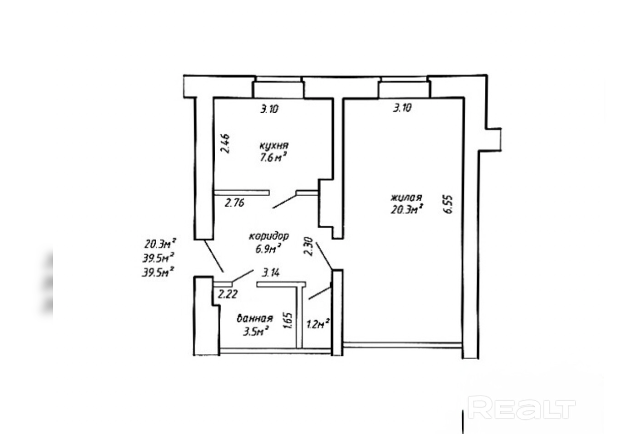
Начинаем нашу подборку с однокомнатной квартиры в Тракторозаводском поселке. Однушка расположена на первом этаже двухэтажной сталинки по адресу Стахановская, 9. Дорога пешком до станции метро «Тракторный завод» занимает минут 7.

Общая площадь квартиры — 40 квадратов, половина из них жилые. Метраж кухни по техпаспорту — 8 квадратов. В санузле установлена ванна и подключена стиральная машина. Ремонт в квартире простой, но аккуратный. Вот как выглядит интерьер и планировка.   

Стоимость этой однокомнатной квартиры в двухэтажной сталинке 68 900 долларов. Метр выходит 1 744 доллара

Двушка около «Партизанской» 

Следующая квартира примерно той же площади, но это двушка с более современным ремонтом. Она находится в пяти минутах ходьбы от станции метро «Партизанская». Адрес — Жилуновича, 18. Это трехэтажный дом 1954 года.  

Квартира находится на третьем этаже. Ее общая площадь — 36 квадраов, а жилых метров в двушке 20. Метраж кухни — 6 квадратов.

Между кухней и гостиной вместо двери широкие проем, что позволяет визуально расширить пространство. Кухонные фасады выполнены в белом цвете.

В жилых комнатах оборудованы гостиная и спальня. Квартира светлая. На стенах частично сохранена кирпичная кладка. В гостиной есть выход на аутентичный балкон.

Санузел совмещенный. Установлена ванна, проведен гигиенический душ и подключена стиральная машина.

Этот вариант обойдется в 89 900 долларов. А метр в двушке выйдет 2 497 долларов.

Трешка около «Молодежной»

Есть в нашей подборке и трехкомнатная квартира — находится она по адресу Пинская, 16. Это буквально в пяти минутах пешком от станции метро «Молодежная». Дом трехэтажный, построен в 1959 году.

Квартира расположена на первом этаже. Ее общая площадь — 62 квадрата, 47 из которых приходится на жилую площадь, а еще 7 на кухню. 

На полу в квартире лежит ламинат, а на стены поклеены обои. Окна заменили на двухкамерные стеклопакеты, установили кондиционер. Санузел в трешке раздельный. 

Стоимость этой трехкомнатной квартиры106 тысяч долларов (1 699 долларов за квадрат).

Двушка около «Площади Якуба Коласа» 

С красной ветки метро переходим к синей — здесь, в нескольких минутах от станции метро «Площадь Якуба Коласа», продается двухкомнатная квартира. Находится она в доме на проспекте Независимости, 55. 

Это четырехэтажный дом 1949 года.

Квартира находится на втором этаже. Общая площадь — 54 квадрата, жилая — 32 метра, площадь кухни — 9 квадратов.

В квартире трехметровые потолки и широкие подоконники. На полу уложен ламинат. Есть балкон и кладовка. В совмещенном санузле установлена большая ванна и биде.

Продавец говорит, что сейчас квартира сдается в аренду.

Стоит эта двушка 115 тысяч долларов. Метр — 2 146 долларов.

Однушка около «Площади Победы»

Последний вариант подборки — однокомнатная квартира на четвертом этаже пятиэтажного дома на улице Козлова, 12. Это примерно в десяти минутах пешком от станции метро «Площадь Победы».

Общая площадь однушки — 37 квадратов, а жилая — 14 квадратов. Высота потолков — больше трех метров. Продавец говорит, что в квартире свежий ремонт. Санузел раздельный. Установлена ванна и подключена стиральная машина. Есть балкон.

Стоит этот вариант 106 тысяч долларов. Метр — 2 896 долларов.

Читайте также:

«На рынок возвращаются иностранцы». Что происходит с квартирами в Минске прямо сейчас

Самые дешевые трешки в Минске в 2025 году. Сколько они стоят и где находятся?

10 самых интересных минских строек жилья в 2026 году. Панельные, монолитные, элитные и эконом

Читать:
Лента новостей