Продажа готовой к проживанию квартиры в доме сталинской постройки, ул. Пинская, д.16.
297 444 р.
4 768 р.≈ 1 683 $ за м²
- г. Минскул. Пинская, 16
- Молодежная
- На карте
Общая
Жилая
Кухня
Этаж
Описание
Продажа готовой к проживанию квартиры в доме сталинской постройки, ул. Пинская, д.16.
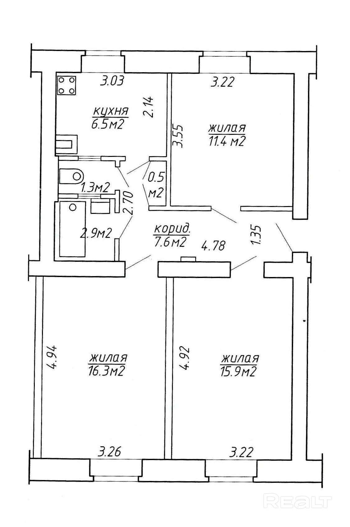
Общая площадь квартиры 62 .4 м.кв., площадь жилых комнат 43.6 м. кв., площадь кухни 6.5 м.кв.
Трехкомнатная квартира, классической прямоугольной формы, в кирпичном доме с железобетонными перекрытиями. Высота помещения 3.1 метра. Хорошее, аккуратное состояние.
В квартире выполнен косметический ремонт. На полу уложен ламинат, стены оклеены хорошими немецкими обоями, окна заменены на двухкамерные стеклопакеты, установлен кондиционер. В квартире есть счетчики воды, проведено оптоволокно от Белтелеком, счетчик электричества находится на площадке. Наличие подвала обеспечивает дополнительное место для хранения.
Расположение дома в центре города предоставляет возможность с комфортом планировать как покупки и отдых, так перемещение и деловую активность. Отличная доступность общественного транспорта - остановки автобуса, троллейбуса, станция метро Молодежная, удобная автомобильная развязка. Станция метрополитена «Молодежная» и современный водно-спортивный комплекс расположены в 5 минутах ходьбы. В пределах ближайшего квартала есть школа и детский сад, Тучинский сквер, с небольшой водной системой. Вблизи расположена охраняемая автомобильная стоянка.
Перспективный район рядом с центром города.
Квартира свободна и готова к продаже.
Звоните, организуем просмотр в удобное для Вас время!
Возьмем Вашу недвижимость в зачет для покупки этой!
Разместим Ваш объект недвижимости на рекламных площадках более чем 50 стран мира.
Присоединяйтесь к нам в соцсетях:
Instagram
Facebook
VK
OK
YouTube
ООО «Сильван-Инвест», УНП 192927433, лицензия №02240/383, Министерство юстиции РБ, 24.09.2019.
Параметры объекта
- Количество комнат
3
- Раздельных комнат
3
- Площадь общая
62.4 м²
- Площадь жилая
46.6 м²
- Площадь кухни
6.5 м²
- Год постройки
1959
- Этаж / этажность
1 / 3
- Тип дома
Кирпичный
- Планировка
Сталинка
- Ремонт
Хороший
- Высота потолков
3 м
- Санузел
Раздельный
- Собственность
Частная
- Условия продажи
Чистая продажа
- Номер договора
83/4 от 22.12.2025
Примечание
Местоположение
- Область
- Населенный пункт
- Улица
- Номер дома
16
- Район города
- Микрорайон
- Координаты
53.9033, 27.5172
