Регистрация

С ремонтом, в пределах МКАД-2. Смотрим стильные дома в хороших локациях

03.01.2026 28820

Мечтаете о загородном доме рядом с Минском? Тогда вам будет полезна наша свежая подборка коттеджей с высоким уровнем комфорта, в хороших природных локациях и по приятной стоимости.

СТ «Веряги», Логойское направление, 30 км от МКАД

Современное СТ, газифицировано, огорожено, с видеонаблюдением. Находится в окружении леса, рядом горнолыжные курорты в Логойске и Силичах. 

Здесь продается дом для круглогодичного проживания. Он одноуровневый, со стенами из керамического кирпича. Фасад оштукатурен. Окна ПВХ, с ламинацией. 

Общая площадь – 100 квадратов. Планировка такая: кухня-гостиная, 2 спальни, терраса, топочная, санузел.

Отопление на газу, вода из скважины, канализация местная. 

Участок 11 соток, угловой, огорожен, с ландшафтным дизайном. Имеется хозблок.

За дом просят 164 000 долларов.

Войтовка-2, Брестское направление, 29 км от МКАД

Перспективная деревня в окружении лесного массива и удобным выездом на трассу М-1.

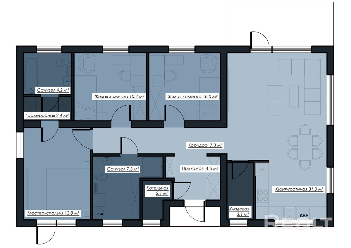
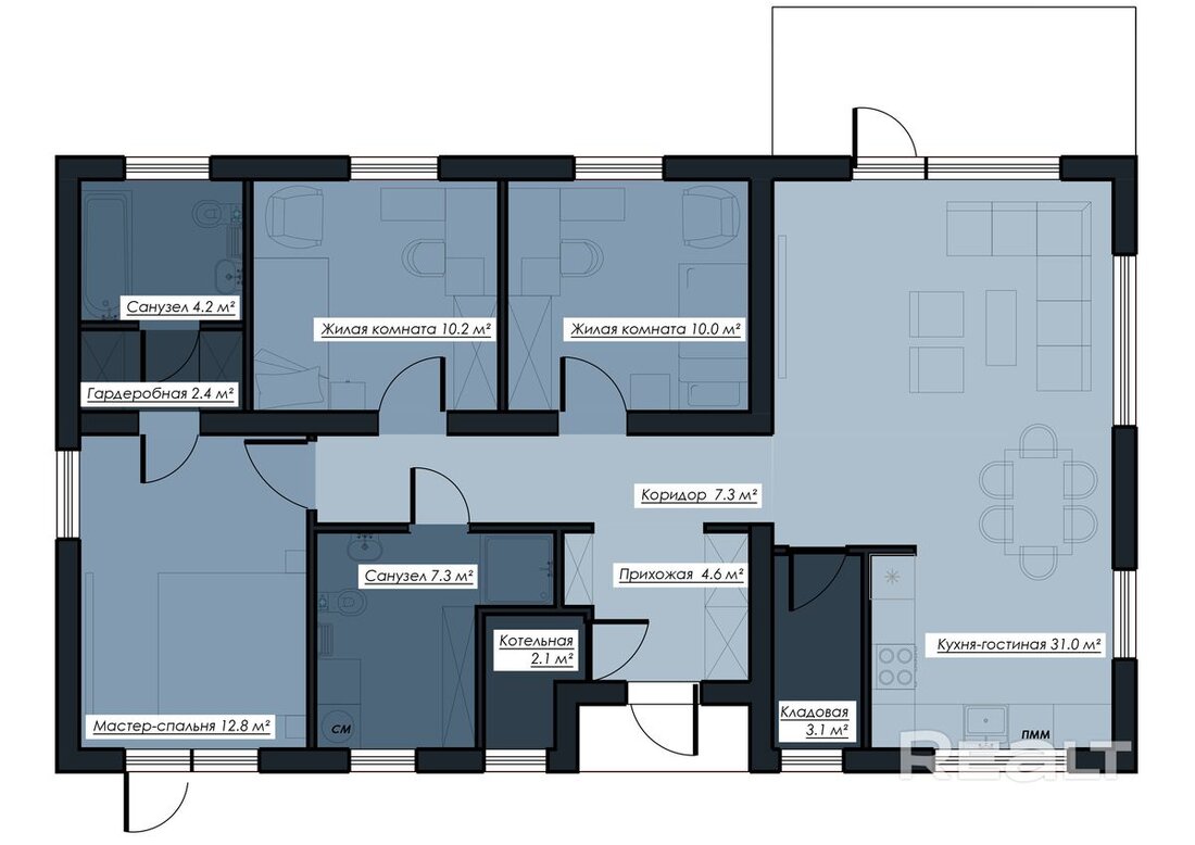
Дом здесь новый, построен на ленточном фундаменте из блоков. Фасад утеплен, отделан клинкерным кирпичом. Окна ПВХ, профиль ламинированный с двух сторон, стеклопакеты двухкамерные с тонировкой Silver и ультрафиолетовой защитой. На крыше — металлочерепица, установлены снегозадержатели.

Общая площадь 196,2 м2. Внутри находятся кухня-гостиная, ванная комната, туалет, мастер-спальня со своим санузлом и гардеробной, две жилые комнаты. Терраса огромная — 70,7 м2.

Отопление газовое с теплыми полами и радиаторами. Водоснабжение из собственная скважины, канализация местная: установлен 3 секционный биопереробатываемый септик, с отводом чистой воды для полива.

Участок 13,66 сотки с возможностью организовать индивидуальный подъезд с основной дороги.

Стоимость - 169 900 долларов.

Аннополь, Слуцкое направление, 20 км от МКАД

Деревня с активно развивающейся коттеджной застройкой. Рядом агрогородок Крупица с хорошей инфраструктурой.

Здесь предлагается загородная жизнь «под ключ»: обжитый и обставленный мебелью дом из бруса, баня, беседка, парковка и огородик. 

Дом построен в 2016 году. Общая площадь – 108,9 м2. Внутри три отдельные спальни, просторная кухня-столовая с большими окнами, встроенной техникой (посудомоечная машина, индукционная плита, встроенный духовой шкаф, СВЧ) и выходом на террасу.

В доме современный ремонт: плитка в общих зонах, ламинат в комнатах, зонирование освещения, проходные выключатели, теплые водяные полы, конвекторы. Мебель и техника остаются. 

Отопление на газу, канализация местная, водопровод центральный.

Баня с комнатой отдыха, парилкой, санузлом и террасой. Есть беседка.

Участок 10 соток, крайний, за ним начинается луг и речка. 

За все то просят 240 000 долларов.

Бузуны, Раковское направление, 26 км от МКАД

Дом находится в современной коттеджной застройке деревни. Выход в лес — прямо с участка.

Коттедж построен из керамзитобетонных блоков, фундамент ленточный, перекрытия деревянные, крыша двускатная, кровля — металлочерепица. Полностью выполнена наружная отделка дома: комбинированный фасад корник плюс керамогранит. Цоколь дома, входное крыльцо и оконные отливы выполнены из керамогранита. У входной двери установлены пристенные светильники. Смонтирована ливневая система. Есть розетки со стороны парковки и на террасе, а также уличные краны.

Общая площадь — 93,8 м2. В доме три отдельные жилые комнаты: мастер-спальня с окнами в пол на две стороны, выходом на улицу, гардеробной и собственным санузлом, две небольшие спальни с окнами на внутренний двор и лес, просторная кухня-гостиная с окнами в пол на две стороны и выходом на террасу внутреннего двора. Возле кухни предусмотрена отдельная кладовая. Плюс два санузла: общий с местом для душевой и в мастер-спальне. Дом внутри подготовлен под чистовую отделку.

В котельной пол и стены облицованы керамогранитом, установлен газовый котел Protherm и бойлер Kospel на 200 л. Отопление газовое, газ и электричество подведены, водоснабжение центральное, канализация и ливневая канализация местные.

Сделано благоустройство участка: посеян газон, выполнено мощение тротуарной плиткой, сделаны подпорные стены, забор по периметру. Ворота откатные с электроприводом Nice.

Уникальное достоинство участка — благоустроенный выход к лесу. Установлена калитка и лестница для спуска в лесную зону.

Этот дом оценили в 173 000 долларов.

Старина, Московское направление, 13 км от МКАД

Деревня между Юхновским и Глебковским заказником.

Здесь продается коттедж 2020 года постройки. Он трехуровневый, общая площадь 258,7 м2.

На первом этаже находится жилая комната, гостиная-кухня, санузел, прихожая. На втором — три спальни и санузел. В цоколе — гараж, подсобные помещения, подготовка под сауну.

Отопление на газу, вода из скважины, канализация местная.

Участок 15 соток, огорожен, благоустроен.

Стоимость — 200 000 долларов.

Читать:
Лента новостей
Опрос
Как вы считаете, покупать квартиру лучше сейчас или следует подождать?