Регистрация

«Бабушкин» дом с ремонтом в 15 минутах от Минска. Вот вариант по цене двушки

03.12.2025 31254

Времена, когда можно было купить новый коттедж в ближайшем пригороде до 100 тысяч долларов, похоже, прошли. А что, если поискать варианты среди старых деревенских домов, но с современным ремонтом? В базе Realt нам как раз попался интересный экземпляр в 14 километрах от Минска — три комнаты, кухня, комфортный санузел, газовое отопление. По цене двушки получаете еще и 23 сотки земли с садом. Показываем, как выглядит этот дом.

Дом находится в деревне Стукатичи, в 14 километрах от Минска. Это Слуцкое направление, рядом с Атолино с развитой инфраструктурой. До леса — пара минут, асфальт по улице. Остановка общественного транспорта находится в 10 минутах ходьбы (интервал между маршрутками и автобусами 5−15 минут).

Дом деревянный, одноэтажный, построен в 1974 году. Фасад обшит вагонкой, крыша шиферная. Окна уже современные, в ПВХ профиле.

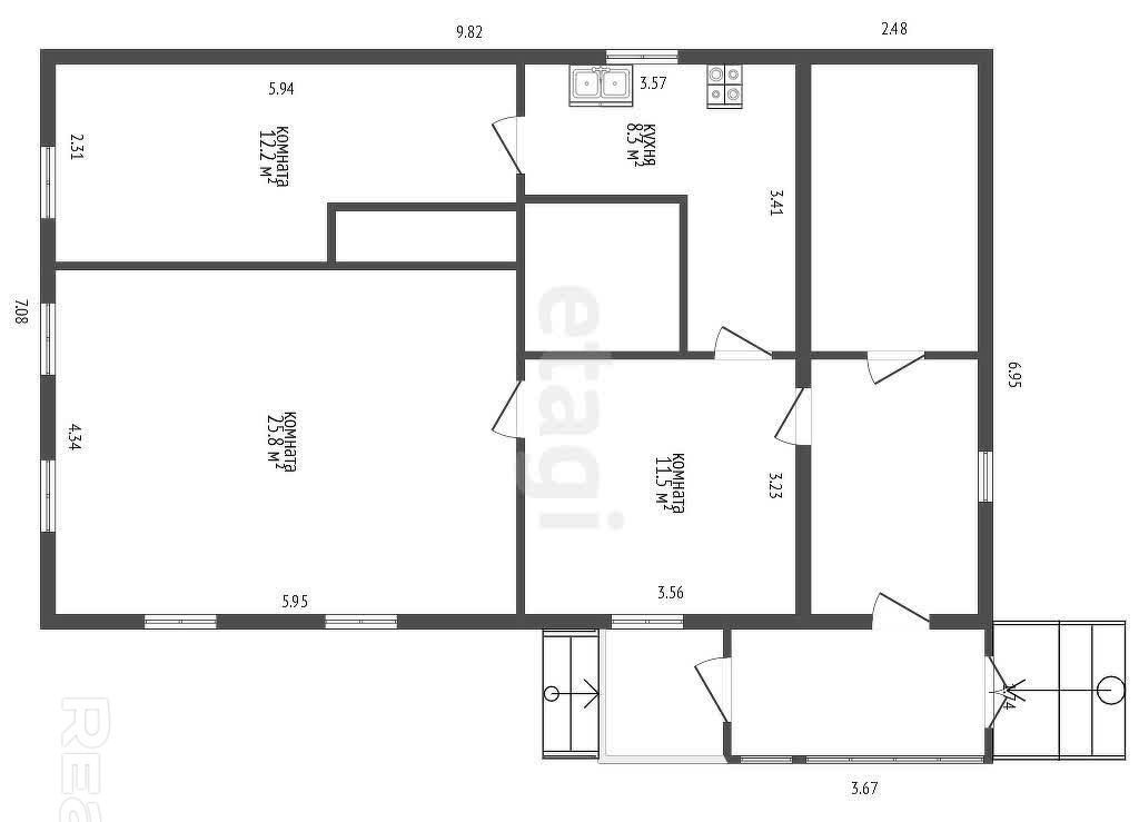
Общая площадь составляет почти 59 квадратов. Планировка такая: большая веранда, прихожая, три жилые комнаты, кухня с печью-плитой, санузел.

В доме свежий ремонт: стены ровные, оклеены обоями, потолки натяжные, на полах — плитка и паркет.

Отапливается дом современным газовым котлом, подведен центральный водопровод, канализация местная. Подведено оптоволокно.

Читать:
Лента новостей