Регистрация

Обнаружили на окраине Минска элитные высотки из 90-х. Вот сколько тут стоит жилье

22.11.2025 8650

В конце 90-х годов в разных уголках Минска стали появляться нетиповые дома. Эра тотальных панелек со стандартными квартирами закончилась, и первые застройщики независимой Беларуси начали удивлять горожан свободными планировками, закрытыми дворами и прочими атрибутами элитарности. Интересно, что элитные дома тогда могли появиться, где угодно — не только в центре. Так, три высотных кирпичных дома повышенной комфортности выросли на самой окраине Уручья. Рассказываем, что там сейчас продается.

Комплекс из трех домов построили на улице Острошицкой 8, 10 и 12. Тогда это было весьма бойкое место, ведь рядом гудел популярный (и единственный) в городе строительный рынок. Возводили кирпичные дома не быстро. Два первых столбика сдали в 1997 и 1999 годах. Еще одна многоэтажка появилась позже — ее сдали в 2004-м.

В домах — по 15 этажей и по одному подъезду. На площадях квартир в первых двух домах не экономили (студий, однушек и евродвушек здесь не проектировали). В высотках есть просто большие квартиры, и двухуровневые. Первый дом рассчитан на 59 квартир, второй — на 55, а вот третий — уже на 105.

Сегодня безымянный комплекс давно обжит. У многоэтажек — шлагбаумы, закрытая территория, охрана, своя парковка и внутренний двор с детскими площадками и зонами отдыха.

Учитывая то, что район Уручье сформировался еще пару десятков лет назад, рядом есть необходимое для жизни: магазины, школы, детские сады, аптеки, банки, кафе и многое другое.

Чтобы отдохнуть вечером, не нужно далеко идти — в 5 минутах ходьбы от дома расположен лесопарк — место для спорта и прогулок. С транспортом тоже все в порядке. Прямо под домами есть остановки общественного транспорта, до метро «Уручье» — 10 минут пешком, МКАД тоже под боком.

Что тут продается?

Сейчас новых жильцов ищут 2 квартиры.

Первая — просторная четырехкомнатная квартира на шестом этаже. Общая площадь жилья составляет 113 квадратов. Квартира состоит из кухни и четырех отдельных комнат. В четырешке выполнен хороший ремонт. Есть кухня, мебель, встроенные шкафы. Продают квартиру за 179 тысяч долларов (1584 доллара — за метр). В цену включены два парковочных места!

Кстати, если средств на покупку квартиры не хватает, то всегда можно воспользоваться лизингом — бесплатная консультация вот тут.

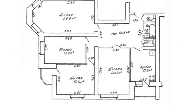
Еще одно предложение — эксклюзивная двухуровневая квартира общей площадью 170 квадратных метров. Располагается эта квартира, полностью готовая к проживанию, на 9−10 этажах. На первом уровне находится большая гостиная с несколькими выделенными зонами, кабинет и кухня; на втором — три спальни и гардеробная комната. В квартире предусмотрены также две большие лоджии и два санузла.

Внутри двухуровневых апартаментов — дизайнерский ремонт, мебель, техника, полы с подогревом, кухня из массива, венецианская штукатурка, декоративный камень, итальянские обои, многоуровневые потолки. Два места на парковке также включены в стоимость. Цена квартиры — 330 тысяч долларов (1941 доллар — за метр).

Читайте также:

«За районом следить никто не хочет». Как живется в домах с дешевыми квартирами у метро «Партизанская»

Бюджетные квартиры рядом с будущими станциями зеленой ветки метро. Сколько они стоят и как выглядят?

Как купить квартиру и не прогореть. Чек-лист, который сбережет ваши деньги

Читать:
Лента новостей
Опрос
Как вы считаете, покупать квартиру лучше сейчас или следует подождать?