Бюджетные квартиры рядом с будущими станциями зеленой ветки метро. Сколько они стоят и как выглядят?
В эту подборку вошли бюджетные квартиры с разным количеством комнат. Все они находятся близко к будущим станциям зеленой ветки метро. Напомним, эти станции построят в центре города, около Комаровки и парка Дружбы народов. Большинство из вариантов располагаются в пятиэтажках, но есть и в новостройке. Обстановка некоторых квартир позволяет заехать и жить. Для полного комфорта имеющийся комплект можно дополнить необходимой бытовой техникой. Выгодные предложения на любой запрос и бюджет есть в интернет-магазине Newton.by — переезжайте и живите с комфортом.

- Фото носит иллюстративный характер
Сейчас поезда курсируют по 7 станциям Зеленолужской (зеленой) линии минского метро. До 2030-го года планируют ввести в эксплуатацию еще ряд станций. Они будут проходить через центр города, Комаровский рынок, парк Дружбы народов, а закончится линия в микрорайоне Зеленый луг, недалеко от МКАД. Не секрет, что наличие подземного транспорта влияет на стоимость жилья. Предлагаем 6 квартир, которые сегодня выставляются по бюджетной цене в очень перспективных локациях.
Улица Киселева (Центральный район) — Станция метро «Переспа»
В пятиэтажке на Киселева, 36 выставлена на продажу двушка в 52,9 м² с кухней в 6,6 м². Она расположилась на предпоследнем этаже. Дом 1971 года постройки, после капитального ремонта.
Квартира требует обновления. Здесь сохранились деревянные полы, старые двери, а вот в окнах стоят стеклопакеты. Обе комнаты тут изолированные, выходят на разные стороны дома. Из одной есть выход на балкон.
Санузел — раздельный. Напротив этих помещений есть ниши для хранения вещей.
Дом находится в центре города: до Немиги — 10-15 минут пешком. Около пятиэтажки — Республиканский театр белорусской драматургии, поблизости расположился парк с Комсомольским озером.
Цена квадратного метра — 1 853 доллара, стоимость двушки — 98 тысяч долларов.
Когда думаешь про тихий и уютный вечер в своей квартире, сразу представляешь чай, одеяло и хороший фильм, поэтому стоит посмотреть в сторону качественного телевизора. На сайте Newton.by больше тысячи вариантов по различным ценам. Бюджетный телевизор Haier 32 Smart TV S2 Pro (1920x1080, Full HD) идеально впишется и в гостиную, и в спальню. Бонус при покупке — скидка 7% на саундбар.
Улица Богдановича (Советский район) — станция метро «Комаровская»
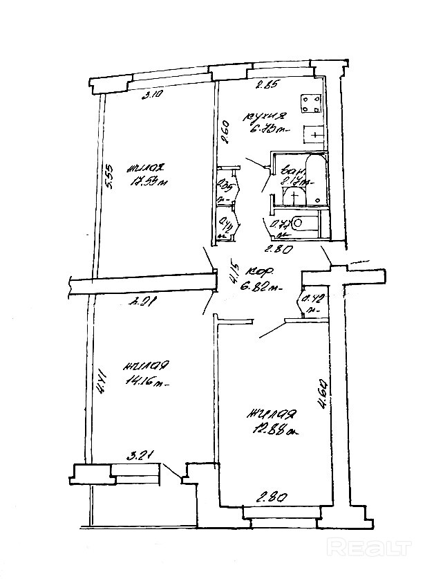
На последнем этаже пятиэтажного дома на Богдановича, 60 продается трехкомнатная квартира. Жилье построили в 1966 году. Квартира занимает 59,3 м², на кухню выделено 5,95 м².
В квартире две отдельные комнаты, но при желании можно легко изолировать все. На полу тут лежат линолеум и ламинат. Окна выходят на обе стороны, стоят стеклопакеты.
В квартире остается мебель. Планировка предусматривает несколько ниш для хранения вещей. Из комнаты имеется выход на застекленный балкон.
Санузел и ванная облицованы плиткой.
Вход в метро будет как раз у самого дома. В пешей доступности — Комаровский рынок.
Цена квадратного метра — 1 830 долларов. Получается, квартиру можно приобрести за 108 500 долларов.
Улица Богдановича (Советский район) — станция метро «Парк Дружбы народов»
Этот дом на Богдановича, 90 расположился во дворах. Он пятиэтажный, 1971 года постройки. Это малосемейка. На третьем этаже продается квартира площадью 22,1 м² с кухней в 4,4 квадратного метра. В 2021 году тут прошел капремонт.
Квартира светлая и аккуратная. Здесь заменена электрика и сантехника. Обновили и пол, сверху положили ламинат и плитку. Установлены и стеклопакеты. Однушка готова к проживанию — мебель и техника остаются новым владельцам.
Метро будет в шаговой доступности. Напротив — парк. Поблизости есть продуктовые магазины, Комаровский рынок и торговые центры.
Стоимость метра составляет 2 937 долларов. Однушка обойдется в 64 900 долларов.
Уместить всю необходимую технику в такой небольшой кухне сложно, поэтому отличным спасателем будет аэрогриль Xiaomi Smart Air Fryer 6.5L MAF10. Объем в 6,5 литра позволит полезно и вкусно накормить и семью, и компанию друзей. Управляется аэрогриль при помощи сенсорной панели.
Чтобы сэкономить еще больше времени, выбирайте современную стиральную машину: LG F1296NDS0 или LG F1296HDS1.
Улица Богдановича (Советский район) — станция метро «Ивана Мележа»
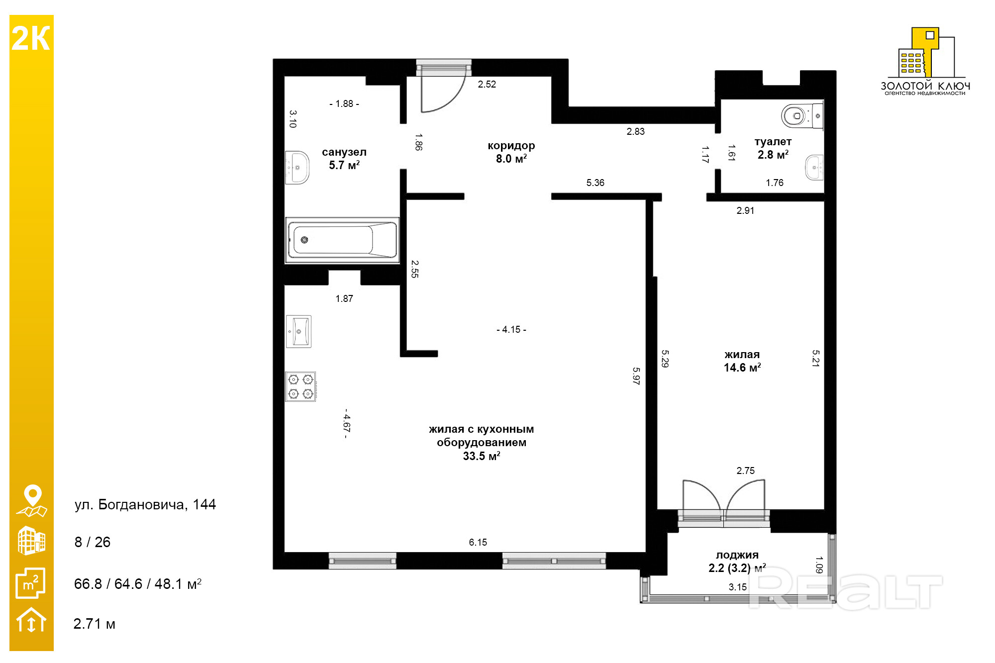
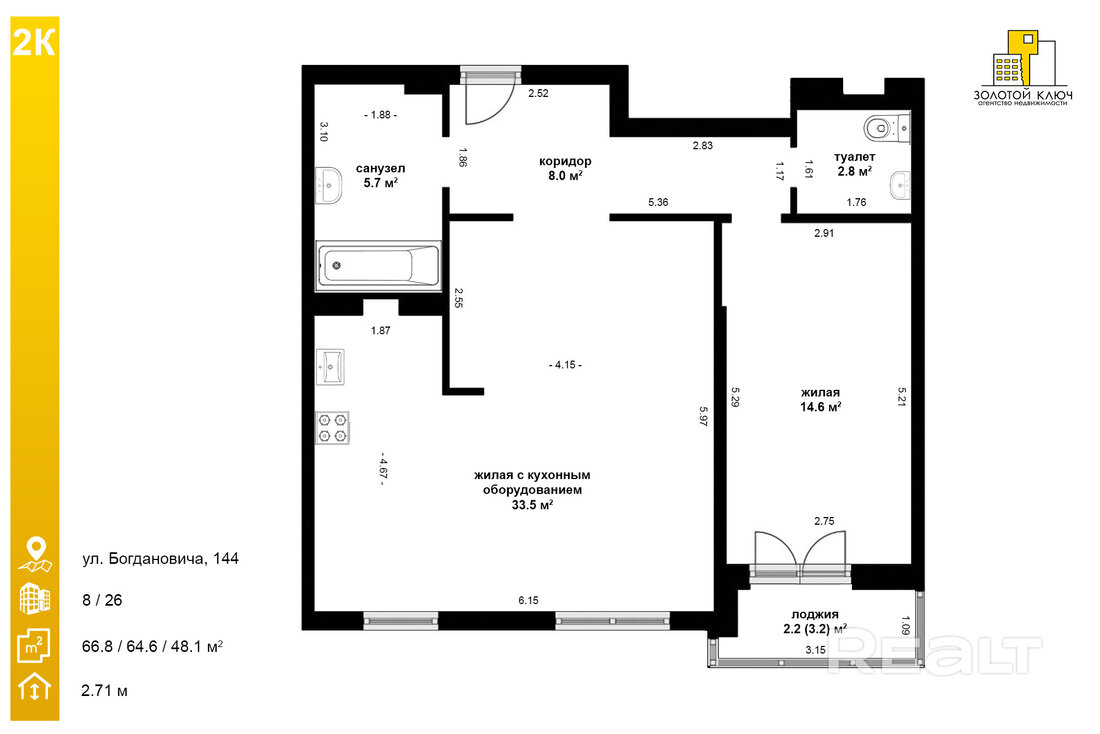
Эта квартира находится в 26-этажном доме на Богдановича, 144 — ЖК «Аркадия» 2022 года постройки. Двухкомнатная квартира с совмещенной кухней-гостиной располагается на восьмом и занимает 66,8 м².
Квартира с новым ремонтом, но еще не обжита. Стены выровнены и покрыты жидкими обоями, потолки — натяжные, на полу лежит ламинат. Из маленькой жилой комнаты есть выход на балкон.
Рядом с домом есть сквер, поблизости — Цнянка и парк Дружбы народов.
Квадрат — 1 825 долларов. Квартира стоит 121 900 долларов.
В этой квартире можно обустроить стильную кухню. Как насчет встроенной посудомоечной машины? На сайте Newton.by есть решения. Например, посудомоечная машина Bosch Serie 4 SPV4HMX10E, в которую можно загрузить до 10 комплектов посуды. Электронный режим управления, шесть программ: вы и сбережете ценный хрусталь, и тщательно отмоете сковороду.
Улица Широкая (Советский район) — станция метро «Зеленый луг»
На Широкой, 26 продается трехкомнатная квартира. Она находится на втором этаже пятиэтажного дома 1974 года постройки. Ее площадь — 62,25 м². Кухня — 6,73 м².
Тут три изолированные комнаты, а окна выходят на две стороны. Жилье требует ремонта. Продуманы несколько ниш, которые можно грамотно использовать при создании нового интерьера.
Санузел здесь раздельный.
Можно сказать, что дом стоит между Цнянским водохранилищем и Севастопольским парком.
Цена одно метра — 1 647 долларов. Квартира обойдется в 102 500 долларов.
Здорово просыпаться в своей собственной квартире и начинать день с чашечки кофе. Забирайте себе рожковую кофеварку DeLonghi Dedica EC 685.M, компактную, практичную модель с интуитивно понятным управлением.
Улица Седых (Первомайский район) — станция метро «Логойская»
Последняя квартира также прописалась на втором этаже пятиэтажки по улице Седых, 4. Дом 1965 года постройки. В 2012-м был выполнен капитальный ремонт. Площадь однушки составляет 31,8 м². На кухню выделено 5,8 м².
Квартира нуждается в обновлении местами, но жилая комната выглядит аккуратно. Из нее есть выход на застекленный балкон. В окнах стоят стеклопакеты. Владелец оставляет после продажи не всю мебель. Также покупателю достанется и подвал.
Рядом есть магазины, удобный выезд на МКАД. Быстро можно добраться до Expobel и рынка «Валерьяново».
Один метр в однушке стоит 2 135 долларов, за жилье нужно заплатить 67 900 долларов.
Сделайте себе подарок к переезду — обустройте квартиру с комфортом, стильно, с учетом всех ваших пожеланий. Заказывайте технику для дома, красоты и даже дачи на интернет-площадке Newton.by. Товары доставят на дом, также можно оформить самовывоз.