Регистрация

В этом СТ можно жить постоянно. Смотрим новый дом «под ключ» в 3 км от Минска

20.11.2025 34893

В одном из самых близких к городу садовом товариществе продается дача. Ну, как дача — владельцы позиционируют дом на 8 сотках как полноценное загородное жилье в пяти минутах от города. Он новый, внешне симпатичный, интерьер стильный — не придраться. Но как там обстоят дела с остальным: из чего построен, как утеплен, как организованы водоснабжение и канализация, какое отопление? Все это мы узнали и наш предварительный вердикт — для круглогодичной жизни подходит. А что с ценой?

Дом расположен в садовом товариществе «Текстильщик-1» по Мядельскому направлению. Взгляните на карту — это почти сразу за МКАД, возле леса, отделяющего СТ от берега Минского моря. Раньше месторасположение не считалось столь привлекательным из-за Северного полигона — городской свалки. Однако его закрыли 8 лет и теперь это просто большой зеленый холм на горизонте.

Так что сейчас это довольно переспективная локация для владельцев недвижимости в окресных поселках и СТ. Большой плюс — все дороги асфальтированные, зимой своевременно чистятся. До МКАД можно добраться всего минут за 5, сюда ходит городской транспорт.

Поселок газифицирован, что является ключевым преимуществом для постоянного проживания — отапливать дома дровами неудобно, электричеством дорого, а газом комфортно и по деньгам приемлемо.

Интересующий нас дом новый, сдан в эксплуатацию осенью 2025 года как капитальное строение для круглогодичного проживания. Построен из газосиликатных блоков (300 мм), утеплен (100 мм пенопласта) и отделан декоративной штукатуркой. Основанием является монолитная плита. Крыша простая, двускатная, накрыта модульной металлочерепицей. Установлены окна ПВХ с энергосберегающими двухкамерными стеклопакетами. Высота потолков — 2,75 м.

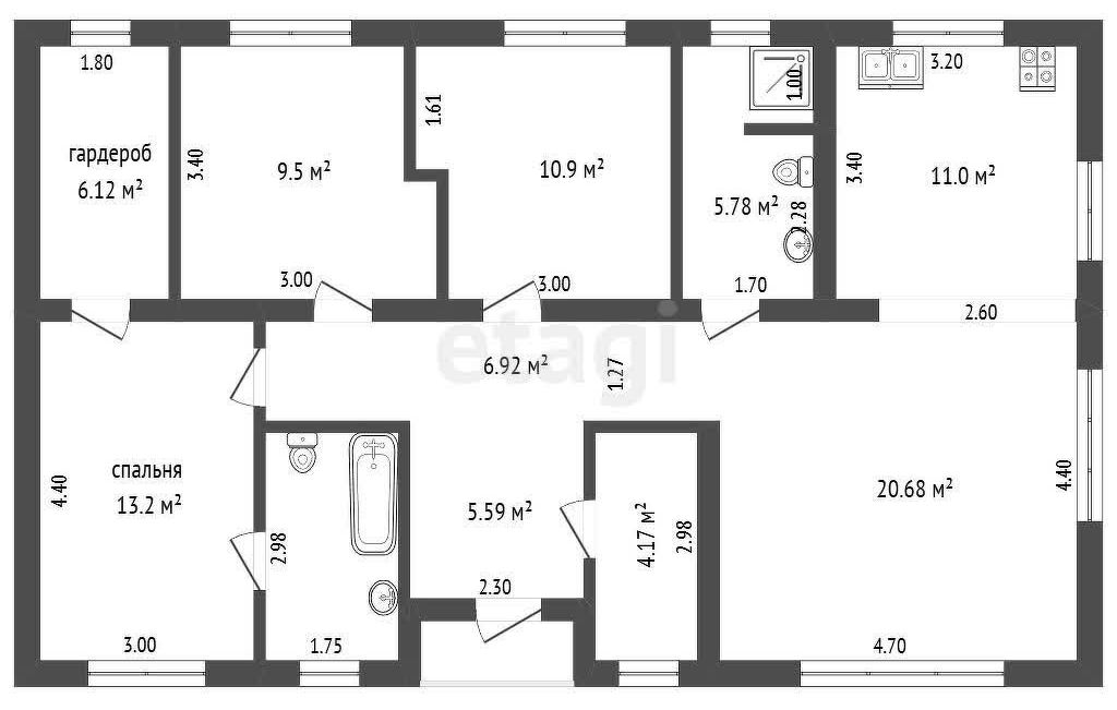
Проект одноэтажный, общая площадь — 99 м2. Планировка функциональная и удобная.

Внутри мы находим гостиную с зоной кухни, три спальни, санузел с душевой, топочная и подвал.

В столь компактном доме удалось выкроить пространство для хозяйской спальни со своим санузлом и гардеробной.

Интерьер выполнен в современном стиле с использованием дорогих отделочных материалов и оригинальных решений в оформлении стен. Встроенная кухня оснащена всей необходимой техникой. Вся дизайнерская мебель остается в доме.

Основное отопление осуществляется газовым котлом с системой водяных теплых полов (12 контуров).

Водоснабжение организовано от собственной скважины. Канализация местная. На 2026 год запланировано проведение оптоволокна.

Участок площадью 8 соток находится в частной собственности, он ровный и полностью благоустроен. Организована костровая зона для отдыха. На территории расположены гараж, площадка на два парковочных места. Территория огорожена, на въезде установлены откатные ворота с возможностью подключения электропривода.

За этот дом владелец просит 195 000 долларов, или 1 970 долларов за квадратный метр.

Читать:
Лента новостей
Опрос
Как вы считаете, покупать квартиру лучше сейчас или следует подождать?