Регистрация

От 64 тысяч долларов. Как выглядят самые дешевые двушки возле метро

17.08.2025 16639

В этой подборке собраны квартиры, которые расположились рядом с метро. Они попали сюда и потому, что продаются по самой бюджетной стоимости. Жилье находится в двухэтажках, пятиэтажках и девятиэтажке в четырех районах Минска. Показываем их. Кстати, все их можно купить в лизинг (консультация вот тут).

Улица Ангарская (Заводской район)

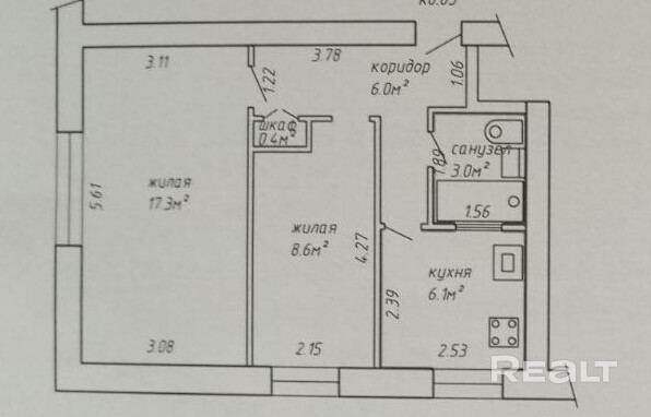
Кирпичный дом на Ангарской, 5/2 был построен в 1961 году. На первом этаже продается квартира в 39,8 м². Кухня занимает 5,5 квадрата.

Квартира нуждается в ремонте. Полы здесь деревянные, в окнах стоят стеклопакеты. Обе комнаты изолированные. 

Санузел — совмещенный. За квартирой закреплен гараж.

В пяти минутах ходьбы — «Могилевская», а напротив находится торговый центр с большим продуктовым магазином.

Цена квартиры 63 500 долларов, а квадратного метра — 1 595 долларов.

Улица Чеботарева (Партизанский район) 

Двухэтажный дом на Чеботарева, 3 появился в 1948 году. Тут продается квартира на втором этаже. Ее площадь — 46,7 м², на кухню отведено 7,48 м².

В 2006 году в доме прошел капремонт, а в 2024-м была заменена крыша. Квартира с двумя раздельными комнатами, высокими потолками и стеклопакетами в окнах.

Ванная и туалет облицованы плиткой. В коридоре есть ниши для хранения вещей. Из комнаты имеется выход на открытый балкон.

Поблизости находятся метро «Тракторный Завод», магазины и др.

Квартира обойдется в 79 500 долларов. Таким образом, метр стоит 1 702 доллара.

Улица Волгоградская (Первомайский район)

Двушка продается на втором этаже пятиэтажки на Волгоградской, 1/3 1968 года постройки. Ее площадь — 44,2 м², а кухня занимает 7 квадратных метров.

Квартира нуждается в ремонте. Обе комнаты тут изолированные. На полу лежит паркет, в окнах стоят стеклопакеты. Балкона тут нет.

Санузел — раздельный.

Недалеко есть магазины, в двух минутах ходьбы — станция метро «Московская».

За двушку нужно будет отдать 78 900 долларов. 1 785 долларов стоит один квадратный метр.

Улица Буденного (Партизанский район)

Пятиэтажка на Буденного, 28 появилась в 1964 году. На первом этаже продается однушка в 41,4 м². Площадь кухни — 6,1 квадрата. 

Кухня в квартире нуждается в обновлении. Комнаты и другие зоны выглядят аккуратно. Они, кстати, изолированные. На полу лежит ламинат, в окнах — стеклопакеты.

Санузел — совмещенный, с душем.

В пяти минутах ходьбы располагается метро «Тракторный завод».

Цена за двушку — 75 тысяч долларов, а метр обойдется в 1 812 долларов.

Улица Лейтенанта Кижеватова (Октябрьский район)

Последняя квартира продается в девятиэтажке на Лейтенанта Кижеватова, 78. Двушка находится на шестом этаже и занимает 46,8 м². 7,2 метра приходится на кухню. Сам дом был построен в 1989 году.

В квартире лежат линолеум, плитка, установлены окна ПВХ. Изолированные комнаты обставлены техникой и мебелью. Из одной из них есть выход на лоджию.

Санузел тут раздельный. В коридоре есть ниши.

Через дорогу находится станция метро «Слуцкий гостинец».

Стоимость двушки — 80 тысяч долларов. Цена квадратного метра — 1 709 долларов.

Кстати, почти все квартиры на Realt, можно купить в кредит или лизинг. Получить индивидуальную консультацию от специалистов можно вот здесь.

Читайте также:

В этой минской студии с видом на парк классно уместили две спальни. Показываем, как так получилось

От 75 тысяч долларов. Как выглядят полноценные однушки в новых домах в Минске

Читать:
Лента новостей
Опрос
Как вы считаете, покупать квартиру лучше сейчас или следует подождать?