Регистрация

От 75 тысяч долларов. Как выглядят полноценные однушки в новых домах в Минске

15.08.2025 22751

Подобрали несколько однокомнатных квартир в Минске, которые находятся в новостройках — в домах не старше 10 лет. Их цена не превышает 90 тысяч долларов — на данный момент это бюджетная стоимость на рынке. Рассказываем, где они находятся и сколько стоят. Кстати, все их можно купить в лизинг, а получить бесплатную консультацию можно здесь.

Улица Колесникова (Фрунзенский район)

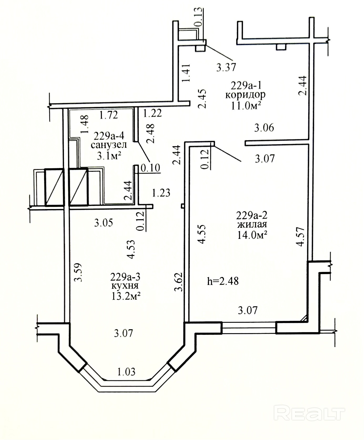
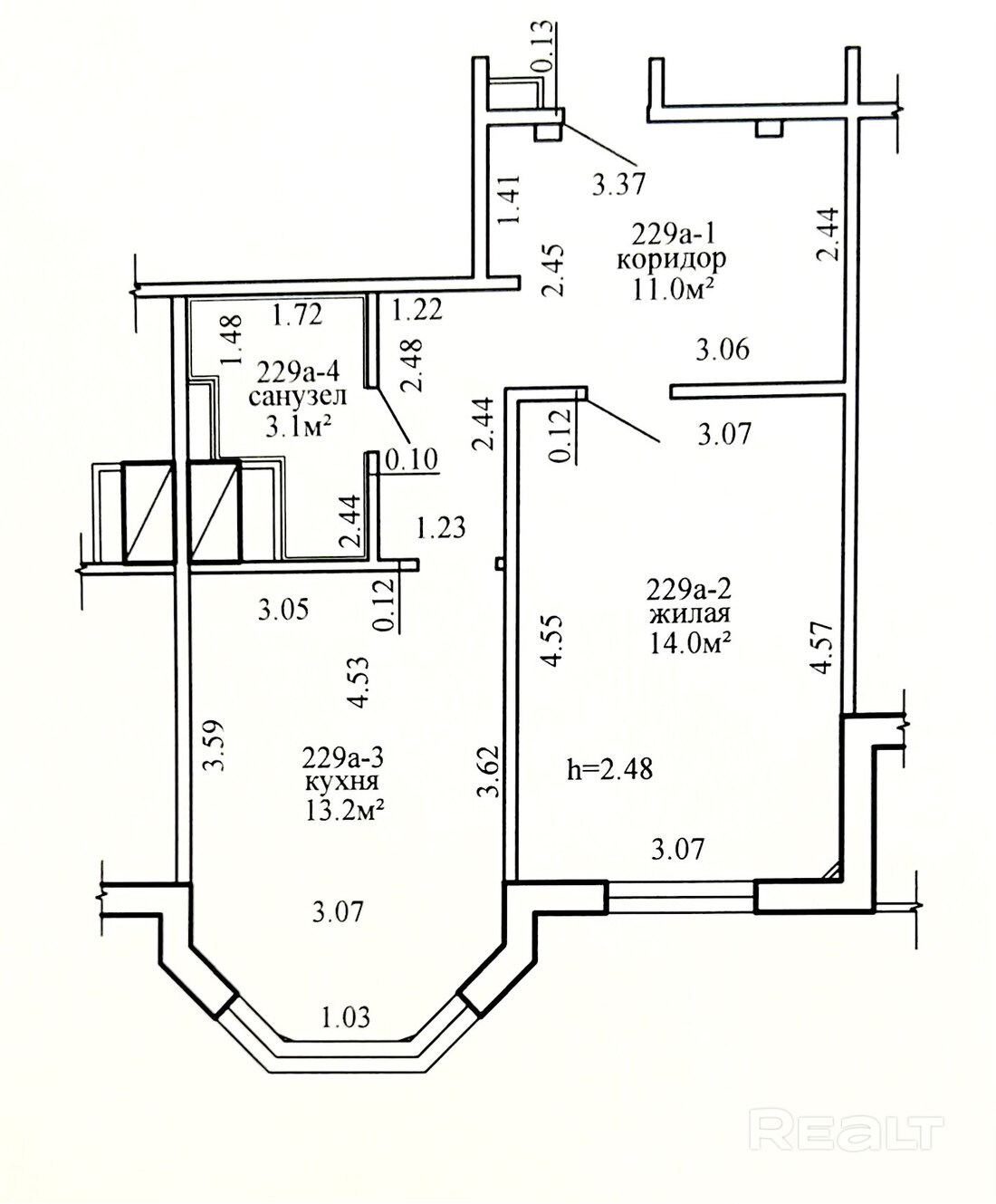
Десятиэтажный дом на Колесникова, 37 был построен в 2015 году. Здесь на первом этаже продается квартира в 41,3 м². Кухня — мечта хозяйки — 13,2 м².

Жилье готово к проживанию. Тут сделан хороший ремонт. На полу преимущественно лежит плитка, в комнате — ламинат. Жилую часть обустроили под спальню. Балкона тут нет.

Санузел — совмещенный.

Рядом есть несколько больших продуктовых. До станции метро «Каменная Горка» несколько остановок. 

Квартира стоит 77 900 долларов. Таким образом, метр обойдется в 1 886 долларов.

Улица Шаранговича (Фрунзенский район)

Квартира продается в 16-этажном доме на Шаранговича, 84. Его возвели в 2022 году. Сама однушка располагается на первом этаже и занимает 48,7 м², а на кухню отведено 13,3 м².

В квартире сохранился ремонт от застройщика. В кухне нет гарнитура. На полу лежит линолеум, в окнах установлены стеклопакеты с замками.

Санузел тут раздельный. Из кухни есть выход на застекленную лоджию.

Рядом — магазины, недалеко находится лесопарк. До станции метро «Каменная Горка» около 15 минут езды на транспорте.

Цена однушки — 75 900 долларов. Метр — 1 559 долларов.

Улица Пилотная (Минский район)

Эта девятиэтажка в Новой Боровой по улице Пилотная, 6 была построена в 2025 году. Однушка в 39,9 м² располагается на пятом этаже. На кухню приходится 9,09 м².

Квартира идет с отделкой. Покупателю нужно будет привезти лишь мебель и технику. Кстати, из кухни есть выход на застекленную лоджию. 

Санузел тут раздельный. 

Рядом работают кафе и магазин. Поблизости находятся остановки транспорта. 

Стоимость квартиры составляет 88 тысяч долларов. Цена метра — 2 206 долларов.

Улица Лопатина (Минский район)

Последняя квартира в подборке находится также в деревне Копище, на Лопатина, 15Г. Дом в 11 этажей был построен в 2017 году. Жилье продается на девятом этаже и занимает 41,2 м². Площадь кухни — 10,3 м².

Жилье полностью готово к проживанию. Тут сделан хороший ремонт. Кухня с гарнитуром и бытовой техникой. Имеется лоджия.

Санузел — раздельный.

Поблизости есть большие продуктовые магазины, напротив — лес. За 10 минут можно доехать до станции метро «Уручье».

Цена однокомнатной квартиры — 84 900 долларов. Получается, что за метр покупатель отдаст 2 061 доллар.

Кстати, найти недорогие квартиры в новых жилых комплексах поможет наш обзор по новостройкам Минска. Этот продукт подготовлен аналитиками Realt и точно пригодится тем, кто сейчас изучает рынок новостроек столицы.

Читать:
Лента новостей
Опрос
Как вы считаете, покупать квартиру лучше сейчас или следует подождать?