Регистрация

А помните про такие малоэтажки рядом с Цнянкой? Тут уже предлагают жилье с ремонтом

08.06.2025 14470

Два года назад в Минске (в частном секторе рядом с Цнянским водохранилищем) построили три жилых дома. Возводил малоэтажки УКС Советского района. Квартиры в домах еще во время строительства предлагали очередникам и всем желающим. Метр тогда считали по 1000—1150 долларов (эх, где такие цены сейчас?). Мы решили вспомнить про жилой комплекс в районе тихой улочки Кольцова и узнать, что тут продается.

Напомним, что ранее на этом месте располагалась автостоянка. Госзастройщик, которому передали этот участок, не стал «уплотнять» территорию частной застройки высотками, а возвел здесь три малоэтажных дома.

Один дом вышел двухэтажным на 16 квартир, второй − двух-трехэтажным на 20 квартир, третий — трехэтажным на 24 квартиры. Изначально предполагалось, что все квартиры (а в домах запроектировали только большие квартиры) заселят многодетные семьи. Однако позже жилье неподалеку от Цнянки предложили всем желающим.

Каждая малоэтажка в 4-м переулке Кольцова состоит из двух подъездов. Интересно, что во всех домах есть собственные лифты. Комплекс ввели в эксплуатацию в 2023 году. Так как квартиры сдавались без отделки, в некоторых жилых помещениях еще продолжаются ремонты.

Во дворе комплекса есть детская площадка, баскетбольное поле и оборудованная спортивная зона для тренировок, теннисный корт находится в 10 минутах ходьбы. Места для парковки автомобилей можно найти рядом с подъездами.

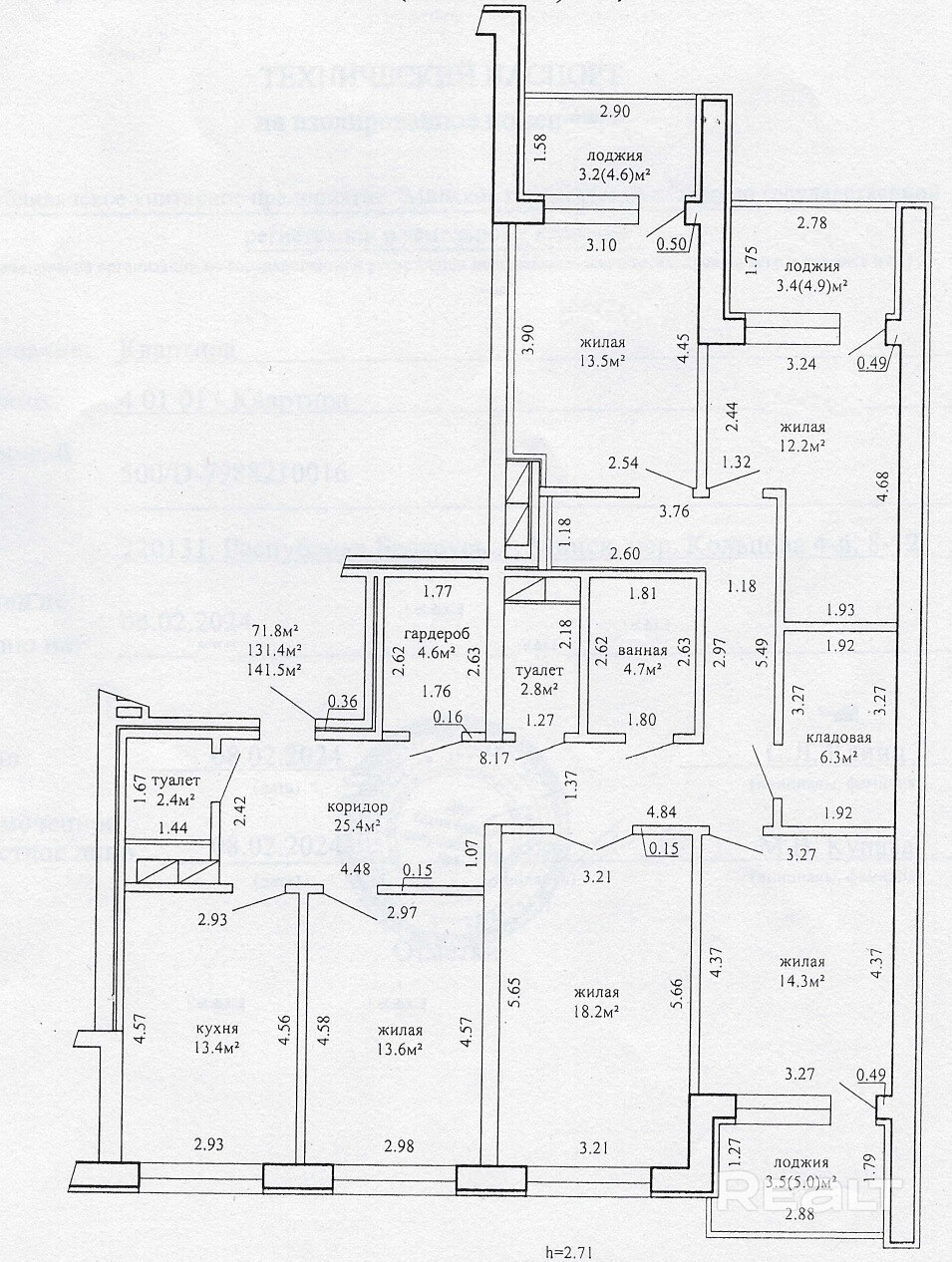
Сейчас в одном из малоэтажных домов продается просторная квартира площадью 141 квадратный метр. Жилье состоит из пяти изолированных комнат и просторной кухни. В квартире также предусмотрены два санузла, отдельная ванная, три лоджии, а также гардероб и кладовая.

В квартире выполнена стандартная отделка (похоже, что от застройщика). Из материалов — обои, линолеум, плитка. На кухне можно заметить электрическую плиту. Мебели и техники в комнатах нет. Зато все санузлы уже готовы к эксплуатации.

Продается жилье за 261 тысячу долларов (1846 долларов — за метр).

Стоит сказать, что квартал малоэтажных домов расположился в тихом месте. С одной стороны он граничит с автобусным парком, с другой − с частными коттеджами. Совсем рядом находится Цнянское водохранилище с песчаными пляжами, велодорожками и зонами для барбекю. От новостроек до водоема можно дойти за 5−10 минут. Вся инфраструктура (сады, школы, поликлиники) тоже находится относительно недалеко.

Отметим, что на стадии строительства трешки площадью от 90 квадратных метров предлагались по 93−122 тысячи долларов, а четырешки площадью от 121 квадратного метра − по 125−140 тысяч долларов.

Если вы выбираете квартиру в новостройке, то изучите свежий обзор по новостройкам от Realt. Здесь собрана вся нужная информация о новых жилых комплексах.

Читайте также:

Этот ЖК рядом с метро в свое время удивил недорогими квартирами. А сколько они стоят сейчас?

Большие площади, необычные планировки, свой паркинг. Рассказываем про еще одну элитку из нулевых

В свежей минской новостройке продается квартира с социальной отделкой. По какой цене?

Читать:
Лента новостей
Опрос
Как вы считаете, покупать квартиру лучше сейчас или следует подождать?