Регистрация

Большие площади, необычные планировки, свой паркинг. Рассказываем про еще одну элитку из нулевых

24.05.2025 11826

В свое время эти дома считались максимально престижными. Тихое местечко недалеко от Института культуры, большие площади, необычные планировки, закрытый двор, свой паркинг — что еще нужно для жизни? За прошедшие 20 лет рядом появилось метро, а вместо старого аэропорта вырос Минск-Мир. Мы решили вспомнить про комплекс «Изумрудный» (его первую часть) и рассказать, почем в нем сейчас продают квартиры.

Дома № 35 и 37 на улице Быховской были сданы в 2006 году. Территорию в районе улиц Воронянского, Авакяна и Быховской в те годы осваивал застройщик «Промекс». Новые дома выросли на месте частного сектора и старых двухэтажек, в которых раньше жили работники железной дороги.

Комплекс из двух домов построен по каркасно-блочной технологии и имеет переменную этажность (от 7 до 9 уровней). Спустя несколько лет тот же застройщик возвел рядом еще одну жилую многоэтажку и объединил довольно разные по архитектуре дома в жилой комплекс «Изумрудный».

Здания середины «нулевых» получили все, сопутствующие той эпохе атрибуты: подземный паркинг, «французские» балконы, полукруглые лоджии и окошки-бойницы на верхних этажах. Что касается планировок, то жилье в домах запроектировали исключительно больших размеров. Поэтому в одной девятиэтажке разместилось 70 квартир, а в другой — всего 39. Из-за небольшого количества квартир дома даже называли клубными.

В подъездах установлены бесшумные лифты финского производства.

На цокольных этажах домов открыты офисные помещения. Здесь работает несколько салонов красоты, а также художественная студия, школа массажа и другие сервисы.

Общий двор у домов — небольшой. Территория огорожена, на въезде — шлагбаум, по периметру — видеонаблюдение. Во дворе есть гостевая парковка, также жильцы могут парковать машины в подземном паркинге.

Интересно, что напротив элитки сейчас располагается обычный частный сектор, в котором по утрам еще поют петухи. В перспективе частные усадьбы на прилегающих улицах снесут и возведут на их месте многоквартирные жилые дома.

В шаговой доступности от комплекса находится несколько общеобразовательных школ и детских садов, также неподалеку можно найти магазины, торговые центры, спортивные и медицинские учреждения. Еще один большой плюс — близость к станциям метро «Ковальская слобода» и «Институт культуры».

Что тут продается?

Сейчас в домах на Быховской выставлены на продажу две квартиры.

Первый вариант — трехкомнатная квартира, расположенная на шестом этаже. Площадь этой трешки составляет 119 квадратных метров. Окна квартиры выходят на разные стороны дома, что визуально делает пространство больше и светлее. У жилья — рациональная планировка: раздельные жилые комнаты, два санузла (в один из которых можно попасть из спальни), просторная кухня, две застекленные лоджии.

Квартира предлагается со всей мебелью и техникой. Дизайн жилья выгодно подчеркивают «французские» окна с широкими подоконниками. За квартирой закреплено арендованное авто место в подземном паркинге. Стоимость — 210 тысяч долларов (1763 доллара — за метр).

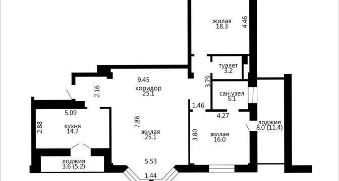
Еще одно предложение — большая четырехкомнатная квартира на 6-м этаже. Отмечается, что квартира расположена в подъезде клубного типа. Здесь всего 7 квартир: по одной квартире на этаже. Общая площадь этого жилья составляет 166 квадратных метров. Тут четыре раздельных жилых комнаты и отдельная кухня.

В квартире сделан добротный ремонт с использованием качественных материалов. Потолки − 2,7 метра, 3 застекленные лоджии, два санузла, гардеробная. Стоимость — 291 тысяча долларов (1753 доллара — за метр).

Читайте также:

Этот квартал для очередников почти готов. Почем тут продают жилье на вторичке?

У меня 20-30 тысяч долларов, хочу квартиру-студию с хорошим ремонтом. Вот варианты

Яркая мебель и cтильная техника. Посмотрите, какая сталинка продается рядом с вокзалом

Читать:
Лента новостей
Опрос
Как вы считаете, покупать квартиру лучше сейчас или следует подождать?