В Минске презентовали новый бизнес-центр прямо возле метро и с видом на парк. Сколько стоит аренда?
21 марта в Минске прошла презентация нового бизнес-центра Prizma. Руководителей и специалистов агентств недвижимости, экспертов по коммерческим площадям, а также представителей Realt встретили в конференц-зале. Сотрудники компании-застройщика «Сигмаполюс» рассказали о ключевых особенностях бизнес-центра, ответили на вопросы гостей и провели экскурсию по доступным для аренды этажам. Гостям встречи показали пространства для работы площадью от 80 до 1700 м² на этаже, с возможностью аренды для крупных компаний и 12 000 м². Все приглашенные смогли полюбоваться видами из окон и с балконов БЦ Prizma — они увидели парк 50-летия Октября, новый Национальный футбольный стадион, жилые и деловые кварталы города в радиусе 6−7 километров вокруг. Рассказываем, что сейчас предлагают арендаторам площадей в новом бизнес-центре.
7 скоростных лифтов, минимум расходов на уборку и планировочные решения от дизайнеров
Встреча представителей ООО «Сигмаполюс» и более 50 экспертов рынка недвижимости началась в конференц-зале на 5 этаже БЦ Prizma (Партизанский проспект, 79). Гостей ждали фуршет, подарки от компании-застройщика, получасовой нетворкинг с коллегами. Презентация бизнес-центра состояла из нескольких этапов.
Кирилл Счаснович, заместитель директора по строительству ООО «Сигмаполюс», рассказал о принципах зеленого строительства, которые были соблюдены при возведении бизнес-центра. Он отметил, что в проекте реализован опыт работы с крупными арендаторами — IT-компаниями, имеющими повышенные (относительно действующих нормативов) и специальные требования к организации арендуемого пространства.
В частности:
- при проектировании применены повышенные требования к объему и качеству подаваемого воздуха (10 м³/1 м², по нормативным документам 6 м³/1 м²);
- климатические системы рассчитаны исходя из размещения 1 человека на 6 м² (нормативно 1 человек на 10 м²);
- предусмотрены резервные мощности по электроснабжению помещений, места для организации серверных;
- инженерными системами предусмотрена возможность реализации планировочных решений как коридорного типа, так и Open Space (с потолками высотой в 3,3−3,6 метра, в зависимости от этажа);
- разделены грузовой и пассажирский потоки (6 скоростными лифтами, 1 грузопассажирским и режимом работы 24/7);
- пассажиропоток рассчитан с коэффициентом запаса 1,3;
- на этажах предусмотрены дополнительные с/у, душевые, а так же с/у для людей с дополнительными потребностями;
- системы автоматике осуществляют постоянный мониторинг и обеспечивают климатические параметры (температуру, количество и качество воздуха) в помещениях, согласные с арендатором.
Большое внимание уделили экологическим требованиям и комфорту сотрудников на местах:
- внедрили умные системы управления энергопотреблением;
- установили приборы для рекуперации тепла и вентиляции с фильтрацией воздуха, датчики контроля уровня СО2 в помещениях;
- предоставили возможность зонирования с индивидуальным контролем температуры.
Специалисты компании-застройщика позаботились об IT-инфраструктуре — это и высокоскоростной интернет, и видеонаблюдение, и система контроля и управления доступом, и пожарная сигнализация.
Бизнес-центр Prizma строился по стандартам LEED & BREEAM. Это подтверждает, что объект и пространства внутри экологичны, безопасны, сделаны с вниманием к здоровью специалистов. Например, комплекс мер для минимизации попадания грязи внутрь офисов даст возможность сэкономить время, средства и ресурсы на уборке.
Помещения доступны для людей с ограниченными возможностями — компания-застройщик предусмотрела пандусы, тактильную навигацию.
Кирилл Счаснович поделился предложением от ООО «Сигмаполюс»: девелопер, у которого есть договорные отношения со всеми необходимыми подрядчиками, сможет выполнить ремонт перед заездом арендаторов. Специалисты возведут перегородки, уложат напольное покрытие, поклеят обои и выкрасят стены.
Татьяна Долгая, менеджер по аренде офисной недвижимости ООО «Сигмаполюс», рассказала о коммерческих условиях аренды и типовых планировках в БЦ Prizma. С компанией-застройщиком можно обсудить возможность арендных каникул, получение помощи от дизайнеров в зонировании и расстановке мебели.
О правовых аспектах договора аренды недвижимости напомнила Светлана Романова, руководитель юридического отдела ООО «Сигмаполюс». Эксперт отметила: договор — это фундамент деловых отношений, при формировании которого важно учесть интересы всех сторон сделки и сохранить гибкость.
Также гостям представили специалистов компании TENGO. Команда дизайнеров, инженеров, строителей и руководителей проектов презентовала планировочные решения для типовых этажей БЦ Prizma. Ориентируясь на потребности арендаторов, эксперты продумали размещение офисов формата open space, переговорных, кабинетов руководителей, зон отдыха, кухонь и других необходимых помещений. Решения специалистов можно будет взять за основу перед возведением перегородок и ремонтом пространств.
22 маршрута общественного транспорта и паркинг на 700 машино-мест
После презентации гостей пригласили на экскурсию по БЦ Prizma. Специалисты компании-застройщика презентовали свободные пространства, места общего пользования, скоростные лифты.
Они рассказали о том, как обслуживается бизнес-центр — уже сейчас в холле работают служба охраны и администраторы. Доступ посторонних лиц в БЦ ограничен.
Вместе с экспертами ООО «Сигмаполюс» гости встречи поднялись на лифтах до 13 этажа. Из окон с панорамным остеклением они увидели Партизанский проспект, парк 50-летия Октября, новый Национальный футбольный стадион.
Также убедились в транспортной доступности бизнес-центра — в паре шагов от него расположена станция метро «Партизанская», остановки автобусов, троллейбусов и трамваев. Всего рядом с БЦ проходит 22 маршрута общественного транспорта.
Для тех, кто решит добираться на работу на личном авто, а также для клиентов и партнеров компаний-арендаторов будет работать многоуровневый паркинг на 700 машино-мест. Кстати, сделать все необходимые покупки до или после работы, сходить в кафе, кино или салон красоты, провести время с семьей в активити-парке сотрудники смогут с максимальной экономией времени — ведь БЦ Prizma является частью одноименного многофункционального комплекса.
Какие площади доступны для аренды?
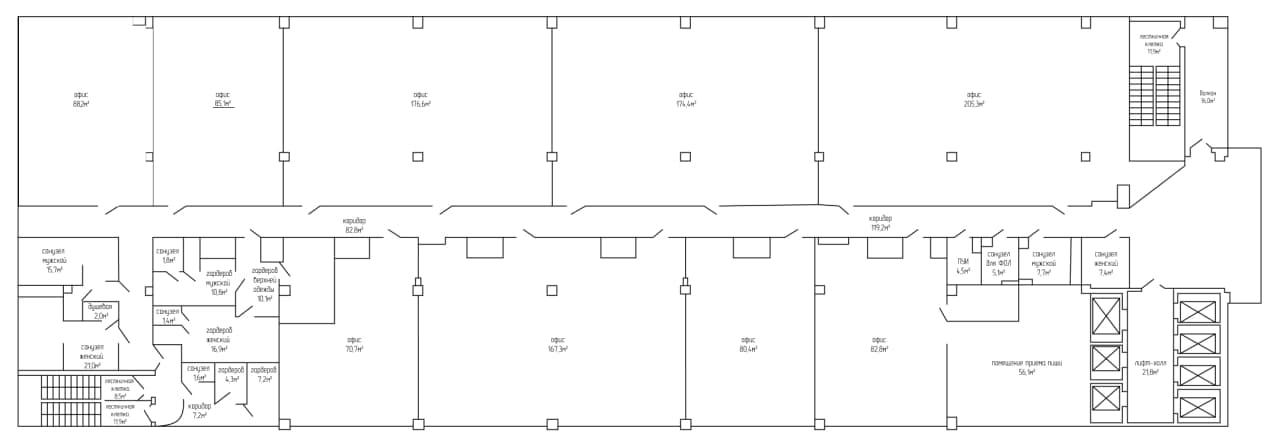
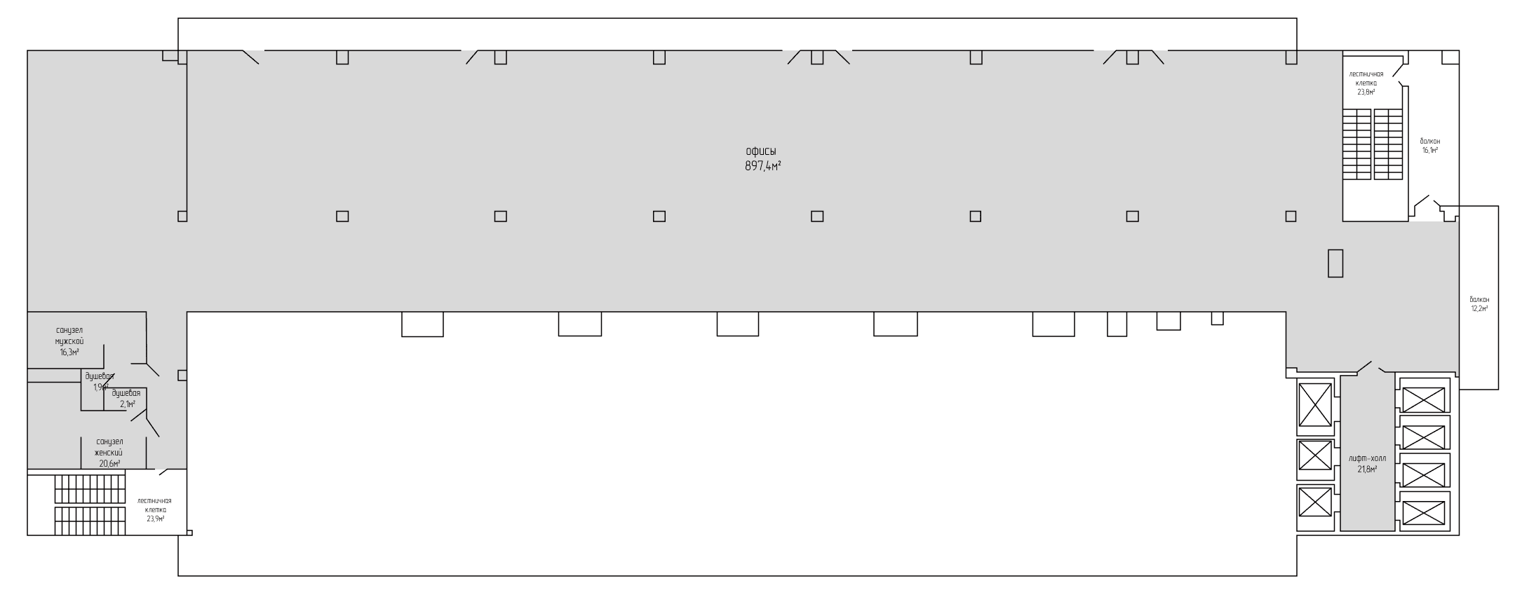
Сейчас в бизнес-центре Prizma для аренды доступны помещения на 5−13 этажах. Арендаторам предлагают следующие типовые планировки:

- 5−6 этажи

- 7−12 этажи

- 13 этаж
Квадратный метр с ремонтом в бизнес-центре стартует по стоимости от 35 белорусских рублей включая НДС. Эксплуатационные расходы при этом составят порядка 7 рублей/м², коммунальные платежи — 4−5 рублей/м².
Телефон для связи и обсуждения всех условий — +375 (29) 334−01−01. Для обратного звонка от представителей компании-застройщика вы можете оставить свой номер в форме ниже.
Нажимая кнопку «Отправить заявку», вы понимаете, что указанные в заявке персональные данные будут предоставлены ООО «Сигмаполюс» (УНП 800 006 663) для их обработки на основании абз.15 ст. 6 Закона Республики Беларусь № 99-З «О защите персональных данных» с целью заключения и исполнения договора.