Регистрация

Ресторанный бизнес — рентабельное направление для инвестиций

13.02.2014 2660

Одним из наиболее модных и популярных направлений для инвестиций сегодня является ресторанный бизнес. Известные артисты, бизнесмены, телеведущие, певцы и спортсмены постоянно открывают собственные заведения. Как показывает практика, минимальная рентабельность в ресторанном бизнесе составляет 20%, средняя — около 25%, а в случае успеха она может достигать и 50%.

На сегодняшний день рентабельность ресторана не зависит от его классности, будь то элитный ресторан, мидл-класс или распространенный фаст-фуд. Но открытие ресторана — это серьезный бизнес и важно подойти к нему ответственно. В современном мире инвестор, имея идею, старается найти под нее помещение, но на практике чаще получается наоборот: если человек хочет войти в ресторанный бизнес, то он сначала находит помещение, а потом думает, какую идею там можно реализовать.

Как выбрать помещение под ресторан?

В настоящее время на рынке недвижимости столько предложений, что невольно возникает мысль об их переизбытке. Но стоит внимательно присмотреться к ним, и становится понятным, что далеко не все предложения подходят. Опытные специалисты будут говорить о людском потоке, платежеспособности потенциальных клиентов, конкурентном окружении, концепции, дизайне, работе персонала, удобстве подъезда и парковки.

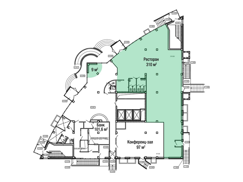
Так с чего же начинают, чем руководствуются при выборе помещения под ресторан? Предлагаем разобраться на примере помещения в бизнес-центре класса «А» «Империал», расположенного недалеко от Национальной библиотеки, в одном из самых престижных и экологически чистых районов Минска. Ресторан общей площадью 310 м2 на 100 посадочных мест расположен на 1-м этаже бизнес-центра и имеет отдельный вход с главного фасада. Помещение с высотой потолка 4 м2, витражными окнами, рампой и современными коммуникациями оснащено передовым инженерным оборудованием.

Место как определяющий критерий успеха

Среди главных критериев, по которым выбирается место для ресторана, можно выделить следующие: проходимость — сколько людей проживает или приезжает в данный район; средний уровень доходов будущих клиентов; тенденции развития района; удобство и доступность транспортного сообщения; возможность парковки; запоминающаяся архитектура здания, в котором расположен ресторан; привлекательность — насколько гостеприимным, гармоничным и красивым запомнится посетителям ресторан.

Район, в котором расположен бизнес-центр «Империал», активно развивается во всех направлениях, формируется, как деловой центр, в нем сосредоточено множество известных брендов международного значения. Среди них Национальная библиотека; современный мультикомплекс «Маяк Минска», включающий в себя элитную жилую застройку, гостиницы, торгово-развлекательные и офисные центры; гостиничный комплекс «Белтрансгаз»; православный комплекс республиканского значения «Дом Милосердия». Район обрамляют Минская кольцевая автодорога и проспект Независимости, с которыми БЦ «Империал» напрямую связывают Староборисовский тракт и улица Жасминовая. Близость станций метро «Восток» и «Борисовский тракт», автобусные остановки, просторные улицы делают ресторан максимально доступным для посетителей.

Класс «А» бизнес-центра предполагает ряд качественных характеристик и изысков, которые могут себе позволить только успешные компании среднего и крупного бизнеса, среди которых представители зарубежных компаний и предприятий. Именно они, их партнеры и клиенты при грамотно построенных взаимоотношениях и «правильных» предложениях обеспечат достойную величину «среднего чека» не только в дневное время.

Уже сейчас при готовности бизнес-центра в 85% здание заметно выделяется. Архитектурное решение бизнес-центра с дорогостоящей ультрасовременной отделкой подчеркивает его престижность и индивидуальность. Окружающая зеленая зона делает внешний вид здания выразительнее и легче. Панорамные окна и золотые фасады стиля «хай-тек» в окружении вечнозеленых сосен запомнятся посетителям своей естественностью и гармонией. Свежий воздух и обширная парковая зона будут весомым дополнением к кухне и интерьеру ресторана.

Удобный паркинг — дополнительное преимущество

Существенным недостатком для многих ресторанов в проходимых местах или в центре города является отсутствие паркинга или неудобства парковки, связанные с малым количеством мест и сложными въездами-выездами на прилегающие улицы.

Для посетителей ресторана в БЦ «Империал» перед центральным входом предусмотрена гостевая стоянка на 35 мест. Вместительный паркинг с удобными подъездами и выездами, разметкой, расположенный недалеко от входа, оставит благоприятное впечатление у любого гостя. Для компаний, работающих в бизнес-центре, предусмотрен охраняемый паркинг на 95 мест.

Постоянные клиенты обеспечат основную прибыль ресторана

Не бывает одинаковых ресторанов — они различаются концепцией, площадью, величиной среднего счета и т. д. Но всех объединяет потребность в как можно большем количестве гостей.

А как же человеческий поток, спросите Вы? В современном ресторанном бизнесе человеческий поток играет основополагающую роль только в фаст-фуде. Это не наш случай. Не имея большой проходимости фуд-кортов, бизнес-центры отличаются другим значимым фактором и главным аргументом — постоянными клиентами.

13-этажное здание БЦ «Империал» общей площадью около 8500 м2 только сотрудников по средним нормам предполагает 500−700 человек. Прибавим партеров и клиентов фирм, оказывающих услуги. Это и есть человеческий поток, ежедневная проходимость Вашего ресторана на 100 мест. Сумеете изучить их вкусы и потребности, сумеете организовать работу персонала — они Ваши без применения сложных и дорогих рекламных инструментов.

Различные схемы обслуживания ресторана повысят рентабельность

Рестораны бизнес-центров имеют существенные отличия в схемах обслуживания своих клиентов. Это завтраки, бизнес-ланчи, обеды, в т. ч. с доставкой в офисы, вечерние программы, ужины, банкеты.

Ресторан в БЦ «Империал» имеет техническую возможность реализовать любые программы и идеи, разработанные Вашими специалистами.

Приятным дополнением, а возможно даже и популярным направлением развития бизнеса, станут совместные мероприятия с запланированным на 1-ом этаже конференц-залом площадью 97 м2 и общей вместимостью до 100 человек.

Особую популярность в ресторанном бизнесе Беларуси завоевывает кейтеринг — «еда на вывоз».

Удобные подъездные пути, своя рампа делают в этом случае ресторан в БЦ «Империал» еще более привлекательным.

При желании реализовывать выездные мероприятия компания «ГородСтрой-Инвест» предложит ресторатору в собственность дополнительные помещения в цоколе с отдельными входами, окнами и необходимыми инженерными коммуникациями. Помещения общей площадью до 340 м2 располагаются непосредственно под рестораном рядом с рампой, что делает их еще более функциональными и полезными. Кроме того, Вы всегда сможете здесь организовать уютный бар, бильярдную, небольшой клуб с живой музыкой или с экранами для просмотра спортивных мероприятий.

Повысить рентабельность ресторана позволит организация летнего кафе. В БЦ «Империал» имеется возможность для реализации этого направления ресторанной деятельности в теплое время года. В жаркую погоду здесь можно выпить чашку кофе за просмотром новостей на завтрак, вкусно пообедать и поужинать на свежем воздухе, любуясь видом на лесопарковую зону. Ничто не мешает расслабиться после утомительного дня, провести время в непринужденной обстановке за обсуждением итогов рабочей недели.

Одним из способов повышения доходности ресторана в БЦ «Империал» является размещение торговой точки в главном холле бизнес-центра площадью 9 м2. При покупке ресторана у Вас будет первоочередное право на ее приобретение. Вы сможете организовать здесь кафе-бар, продажу прохладительных напитков, установить кофе-машины или витрину с продукцией ресторана. Эта доходная позиция в проходном месте в любое время года будет востребована посетителями.

Помещение под ресторан должно соответствовать техническим нормам

Класс бизнес-центра и его месторасположение, наряду с факторами, описанными выше предполагают исключить на месте ресторана фаст-фуды. В остальном планировка помещения и архитектурное решение ресторана в БЦ «Империал» дает уникальную возможность выбора своей концепции и дизайна. Это один из редких случаев универсальности продаваемого в собственность помещения с изначальным назначением «ресторан». Ресторан запланирован на первом этаже БЦ «Империал» с соблюдением всех норм и правил на стадии строительства. Важно помнить, что помещение ресторана имеет ряд дополнительных требований в части соблюдения пожарных и санитарно-гигиенических норм, повышенных мощностей электрических и водопроводных сетей, вытяжной вентиляции и канализации. Расчет посадочных мест предполагает планирование пропорционального количества вспомогательных и технических помещений.

Ресторан в БЦ «Империал» имеет и ряд других преимуществ. Подача электричества осуществляется от собственной трансформаторной подстанции, питающейся от двух независимых источников, что предполагает бесперебойность электрической сети. Отопление здания бизнес-центра осуществляется от собственной котельной, работающей на газовом топливе. Система отопления разводится по полу поэтажно, устанавливаются стальные радиаторы Purmo (Финляндия) и алюминиевые радиаторы Fondital (Италия), используются индивидуальные приборы учета на этаже. Канализация имеет несколько входов и выходов, что гарантирует бесперебойность ее работы при любых нагрузках. Сети горячего и холодного водоснабжения подведены ко всем техническим помещением. Система принудительной вентиляции с рекуперацией воздуха Systemair (Швеция) рассчитана для обеспечения комфортной работы и общей жизнедеятельности сотрудников и клиентов ресторана. Зал ресторана оснащен мультизональной системой кондиционирования с использованием кондиционеров Hitachi (Япония). Современная оптоволоконная сеть дает возможность подключения неограниченного количества телефонных линий, цифрового телевидения и сети Интернета.

Аренда или помещение в собственность?

В настоящее время часто помещения под ресторан берутся в аренду. Аргументами арендаторов является возможность смены места, в случае неудачи бизнеса, или отсутствие финансовых возможностей. Действительно, покупка ресторана сопровождается высокими расходами и определенным риском. Но существуют и ряд важных преимуществ приобретения ресторана в собственность.

Во-первых, помещение планируется и оформляется по собственному вкусу в соответствии с выбранной Вами концепцией. При аренде помещения владелец может не разрешить перепланировку или переустройство своего помещения.

Во-вторых, при аренде помещения существует вероятность в самый неподходящий момент для бизнеса в случае окончания или расторжения договора аренды искать новое помещение, что влечет за собой дополнительные расходы.

Ресторан также может быть приобретен с целью вложения средств в недвижимость для последующей сдачи в аренду. Сегодня средняя арендная ставка по Минску в бизнес-центрах класса «А» составляет 15−25 евро/м2. В данном случае инвестиции в ресторанный бизнес во всем мире расцениваются не только как респектабельное, но и одно из самых надежных направлений инвестирования.

Кредит от 6,5% годовых на покупку помещения по ресторан

Компания «ГородСтрой-Инвест» и один из крупнейших банков в стране ОАО «Белгазпромбанк» разработали специальную программу кредитования строительства помещений в бизнес-центре «Империал». Данная программа позволяет значительно уменьшить финансовую нагрузку на этапе строительства и предусматривает получение неограниченной суммы кредита в валюте до 4 лет от 6,5% годовых с возможностью залога строящегося помещения.

По вопросам приобретения помещений в бизнес-центре «Империал» можно проконсультироваться в отделе продаж СООО «ГородСтрой-Инвест» у Геннадия Игоревича Воробьева по телефонам:

+375 (29) 364−11−11

+375 (17) 268−80−78

Адрес офиса отдела продаж: ул. Белинского, д. 54, 1 этаж, оф. 261

Сайт застройщика: www.gorodstroy.by

Читать:
Лента новостей