Регистрация

«Четырешка» по $ 335 за «квадрат». Подборка квартир в Гомеле, которые уже снизили цену

16.04.2020 6696

* На правах рекламы

Способность просчитать ситуацию на несколько ходов вперед и умение своевременно реагировать на изменяющиеся экономические условия — необходимые качества успешного продавца недвижимости. Именно такие продавцы есть в АН «Твой риэлтер» в Гомеле. Вместе с директором риэлтерской компании Игорем Сонкиным мы сделали подборку самых выгодных предложений в этом областном центре сейчас.

«Выиграют те собственники квартир, кто уже снизил цену»

— Сейчас рынок недвижимости стал своеобразной лакмусовой бумажкой, которая чувствительна ко всем мировым событиям, — рассказал директор АН «Твой риэлтер» Игорь Сонкин. — По итогам работы за последний месяц могу сказать, что на предстоящие трудности в экономике страны, в первую очередь, отреагировали покупатели: они заняли выжидательную позицию и рассматривают только наиболее выгодные предложения на рынке. На первый план вышли те объекты, которые выставляются сейчас по наиболее разумной цене. Сегодня рынок не прощает завышенных цен и надежды на «своего» покупателя. В итоге выигрывают те собственники квартир, которые уже снизили цену. Потому что они смогут продать недвижимость сейчас.

Мы сделали подборку выгодных предложений квартир в Гомеле, продавцы которых сумели вовремя сориентироваться и выставить разумную цену, соответствующую рынку на данный момент.

Однокомнатная квартира за $ 13 тысяч

В Гомеле по ул. 60 лет СССР продается однокомнатная квартира общей площадью 28,8 кв.м. Это малосемейка, расположенная на 9 этаже девятиэтажного дома. Общая площадь кухни — 5,5 кв.м., совмещенного санузла — 2,4 «квадрата». В квартире сделан косметический ремонт.

Первое, чем привлекает этот объект, — это расположение. Дом находится в уже обжитом районе с хорошо развитой инфраструктурой. Здесь есть школы, поликлиники, магазины, хорошо налажена система общественного транспорта. Рядом с домом есть большая зеленая зона и парк, в пешей доступности — Любенское озеро.

Однокомнатная квартира за $ 15,5 тысячи

В Западном микрорайоне продается квартира общей площадью 36,58 кв.м. Это малосемейка улучшенной планировки, которая расположена на 7 этаже девятиэтажного дома. Общая площадь жилой комнаты — 18, 76 кв.м., кухни — 9,18 кв.м. На кухне есть застекленный балкон.

Дом находится в обжитом районе со сложившейся инфраструктурой. Рядом с домом есть несколько больших продуктовых магазинов, небольшой рынок, детские сады, школа и поликлиника. Квартира готова к проживанию: в комнате сделан косметический ремонт, есть встроенная кухня, межкомнатные двери МДФ.

Двухкомнатная квартира за $ 22,5 тысячи

На одной из главных улиц города — ул. Барыкина — продается двухкомнатная квартира по очень привлекательной цене — $ 445 за «квадрат». Апартаменты общей площадью 50,6 кв.м. с двумя раздельными комнатами оценены собственником в $ 22,5 тысячи.

Рядом с домом есть продуктовые и хозяйственные магазины, рынок Черноморский. Здесь хорошее транспортное сообщение: неподалеку находится остановка общественного транспорта, на личном автомобиле можно за 10−15 минут доехать до Центрального парка им. Луначарского.

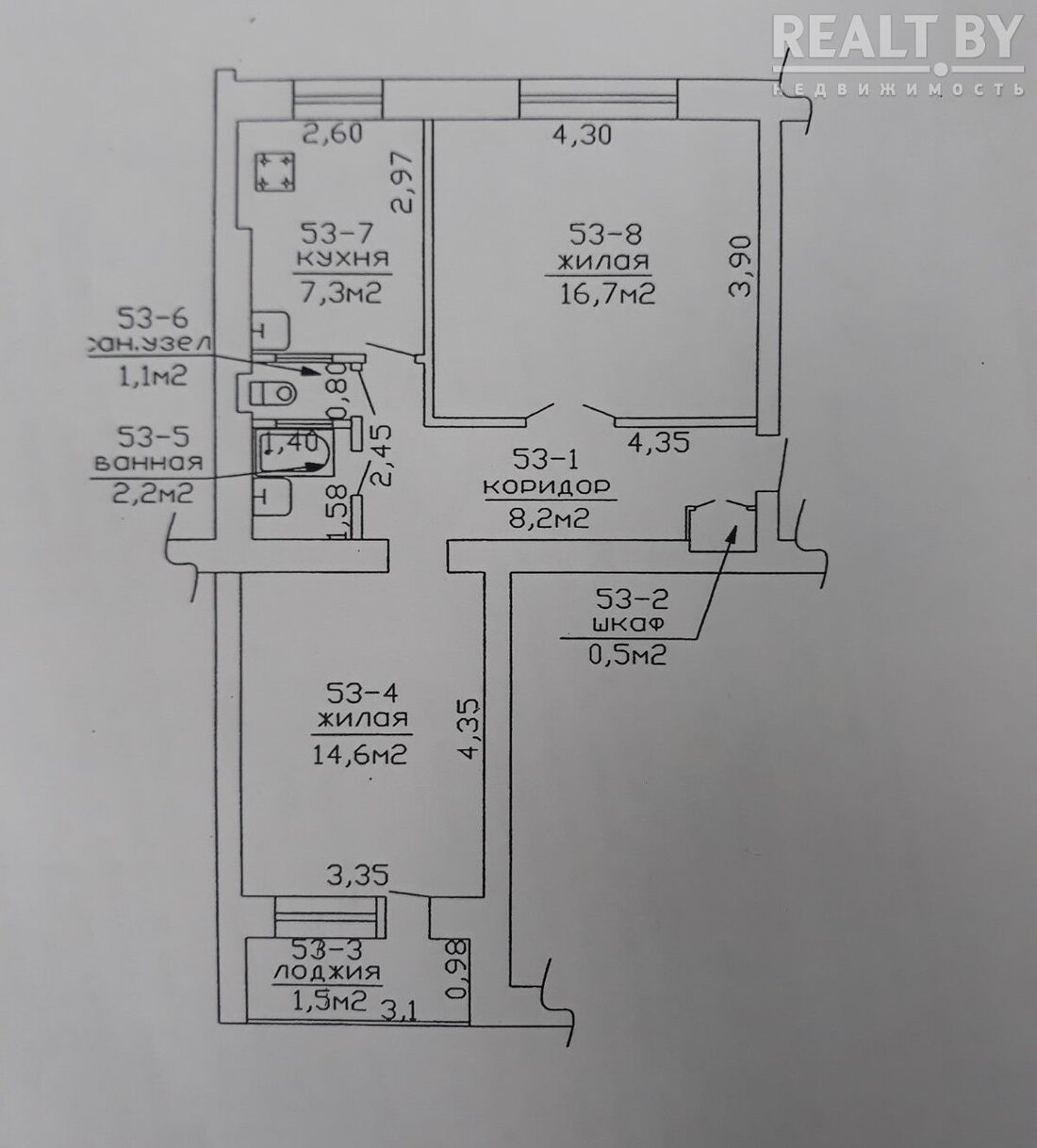
Квартира расположена на 4 этаже пятиэтажного кирпичного дома. Окна жилых комнат общей площадью 16,7 кв.м. и 14,6 кв.м. выходят на разные стороны дома. Санузел раздельный.

Четырехкомнатная квартира за $ 29,5 тысячи

В Новобелицком районе продается четырехкомнатная квартира общей площадью 79,6 кв.м. Это, пожалуй, одно из самых выгодных предложений, потому что стоимость «квадрата» здесь составляет всего $ 371. За эти деньги предлагается 4 изолированные комнаты с большим коридором и кухней на 9,4 «квадратов». Кроме того, в квартире есть две большие лоджии, общей площадью примерно 12 кв.м., площадь которых не включена в общую площадь жилого помещения. Поэтому, если пересчитать стоимость квадратного метра с учетом площади этих лоджий с применением понижающего коэффициента для остекленных лоджий (составляет 0,7), то получается площадь квартиры по СНБ 88 кв.м. Исходя из этого стоимость квадратного метра этой квартиры составляет всего $ 335.

— Безусловно, это далеко не все квартиры, собственники которых уже снизили цену предложения. Уверен, на такие выгодные предложения покупатели найдутся довольно быстро, — рассказал Игорь Сонкин. — Сейчас мы готовы предложить гомельчанам бесплатные консультации по стоимости квартир или частных домов, подобрать наиболее выгодные объекты для покупателей и проконсультировать по ценообразованию продавцов. За любой информацией можно обращаться по телефонам: +375 (29) 153−80−19 +375 (29) 189−13−91. Офис нашей компании расположен в центре города по адресу: ул. Интернациональная, 13 (второй этаж),. Звоните и приходите — мы будем рады помочь.

Читать:
Лента новостей
Опрос
Как вы считаете, покупать квартиру лучше сейчас или следует подождать?