Регистрация

В модном квартале на окраине города. Рассказываем о самой дорогой квартире, проданной на Брестчине

15.10.2025 3561

В таунхаусе на улице Вересковой в Бресте в сентябре продали* квартиру за 165 тысяч долларов. Она оказалась самой дорогой из купленных в прошлом месяце во всей Брестской области. Рассказываем подробности.

Квартал модных таунхаусов под названием «Скандинавское предместье» начали возводить в 2020 году. Застройщиком комплекса выступила компания «БрестКАДпроект». Жилой массив занял участок общей площадью 4 га на улице Вересковой (микрорайон Плоска). Вокруг — частный сектор с престижной коттеджной застройкой. До ближайшей инфраструктуры придется подъехать.

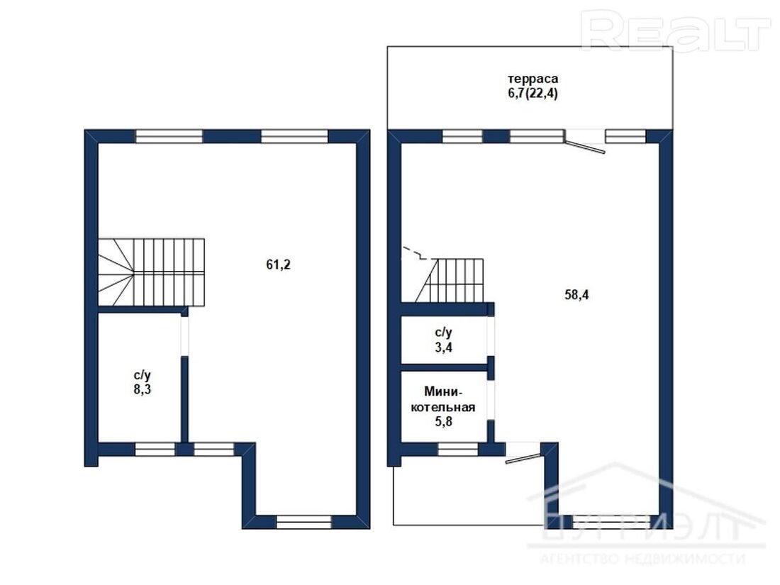
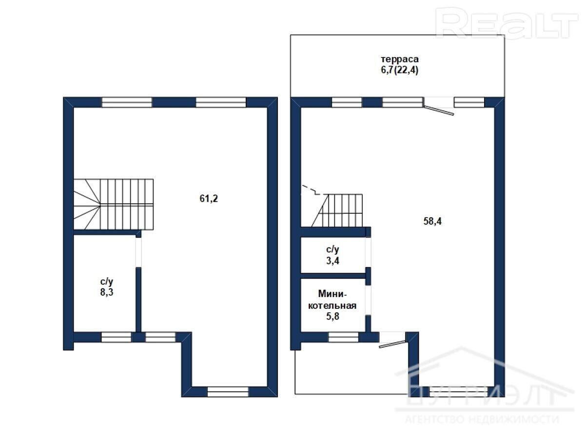
Общая площадь одного блочного таунхауса в комплексе составляет 110−150 квадратных метров. На первом этаже обычно располагается кухня-гостиная, мини-котельная, гостевой санузел и одна жилая комната, на втором этаже — еще несколько жилых комнат. Как раз в одном из таунхаусов 2022 года постройки и продали самую дорогую квартиру сентября. Жилье площадью 125 квадратов обошлось покупателю в 165 тысяч долларов, то есть метр в нем оценили в 1318 долларов.

Сейчас в «Скандинавском предместье» в Бресте продается еще несколько квартир стоимостью от 176 до 205 тысяч долларов. К примеру, таунхаус на Вересковой без отделки площадью 143 квадратных метра обойдется покупателю в 180 тысяч долларов.

А вообще на Realt продается и много других интересных квартир в Бресте и области. А еще на Realt легко и просто продавать свое жилье.

*Подготовлено на основании информации, полученной из Реестра цен на земельные участки pr.nca.by/.

Читайте также:

На бывшем болоте, в 10 минутах от центра. Рассказываем о самом дорогом доме, купленном в Бресте в сентябре

В новостройке, но на улице 19 века. Рассказываем о самой дорогой квартире, проданной на Брестчине

Читать:
Опрос
Как вы считаете, покупать квартиру лучше сейчас или следует подождать?