Регистрация

Как построить сэкономив?

20.06.2011 332

Сегодняшнее подвешенное состояние на рынке недвижимости заставляет многих отказываться от планов возведения собственного жилья. И это понятно — одни застройщики, пользуясь «теневыми» курсами, выставляют заоблачную цену, другие и вовсе приостанавливают продажи.Но квартирный вопрос всегда остаётся актуальной проблемой. На этом фоне более чем выгодным предложением является долевое строительство комплекса жилых домов в посёлке Колодищи.

Одним из основных преимуществ является возможность фиксирования стоимости квадратного метра в белорусских рублях, сегодня это большой плюс — нет риска, что цена изменится к моменту сдачи дома в эксплуатацию, который запланирован на IV квартал текущего года.

Стоит отметить, что на сегодняшний день стоимость квадратного метра в комплексе жилых домов в поселке Колодищи составляет 4 950 000 рублей.

Рассматривая местоположение комплекса жилых домов, стоит отметить Колодищи как развивающийся район с хорошей транспортной доступностью, незначительное отдаление от кольцевой дороги и метро.

Кроме того, сами дома расположены недалеко от лесного массива, что позволяет соединить в одном месте уединение от городского шума, при незначительном отдалении от Минска.

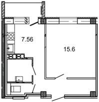
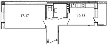
Строящиеся квартиры отличаются одной положительной особенностью — все они имеют небольшую площадь. Возможность выбрать уже изначально рациональную планировку и не переплачивать за дополнительные квадратные метры длинных коридоров и больших кладовок, по сравнению с другими вариантами, это отличный способ сэкономить, что актуально в настоящее время. Например, по тому же метражу «однушки» в Минске, вы сможете себе позволить компактную двухкомнатную квартиру в пригороде всего в 10-ти минутах езды от метро «Уручье».

В последнее время застройщики отмечают тенденцию к отказу покупателей от отделки, объясняемое как раз желанием сэкономить. Это существенное обстоятельство (отсутствие отделки) также учтено Застройщиком.

Тип строящихся домов — каркасно-монолитный. Это является важным преимуществом, такие сооружения отвечают самым высоким стандартам качества, а относительно небольшая площадь застройки (дома односекционные, девятиэтажные) сводит к минимуму риск срыва сроков строительства.

На данном этапе ведется активное строительство двух домов. В ближайшее время планируется возведение ещё одного. В недалёком будущем также запланировано развитие элементов современной инфраструктуры.

Стоит упомянуть, что застройщик данного комплекса жилых домов — Представительство Национального олимпийского комитета Республики Беларусь в Минской области — имеет успешный опыт возведения жилой недвижимости.

Теперь у вас есть возможность построить своё жильё без страха за завтрашний день.

В процессе сотрудничества осуществляется индивидуальный подход к каждому клиенту.

Контактные тел. Застройщика: 8 017 296 63 08

8 044 539 39 97

8 029 396 63 08

Есть что сказать?
Читать:
Лента новостей
Опрос
Как вы считаете, покупать квартиру лучше сейчас или следует подождать?