Регистрация

Типовые планировки: вчера, сегодня, завтра.

12.04.2011 1 12006

«Сталинки», «хрущёвки», «малосемейки» — все эти и другие названия ассоциируются с определёнными домами, построенными в какое-то своё время. Но кроме внешнего архитектурного сходства эти определения объединяют и типы планировок, присущих тому или иному дому.Сегодня практически все дома можно разделить на 7 основных групп.Рассмотрим их в порядке появления:

Сталинки

Это 2−4 этажные дома, примерно 1945−1960 годов постройки.

Основной недостаток — в большинстве в своем деревянные перекрытия, с годами они не очень сохранились.

Преимущества же таких помещений — расположенность, в основном, в центре города. Также большинство квартир отличается просторной площадью и 3-метровыми потолками.

Хрущёвки

Эти дома, возведённые в период 60−70-ых годов, сегодня переживают свою реконструкцию. Наружное утепление, ремонт труб и крыш — всё это присуще стандартным кирпичным 5-этажкам.

Внутренне дома отличаются малыми площадями кухни (около 5−5,5 кв.м.), совмещённым санузлом и проходными комнатами. Как показывает практика, именно эти квартиры чаще остальных подвергаются перепланировке. Несмотря на то, что практически все стены считаются несущими.

Брежневки

Это поколение уже в основном панельных 5-этажных домов, примерно 1965−1975 годов постройки. Здесь мы видим в основном раздельный санузел и изолированные комнаты. Но площадь кухонь остаётся такой же маленькой (не более 6,2 кв.м.).

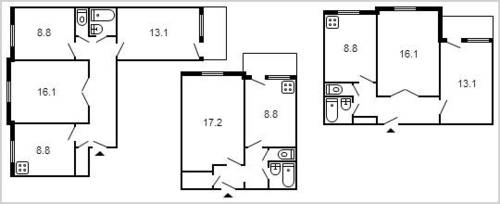
Стандартные

Распространённые панельные 9-этажки с 4 квартирами на этаже, по 2 в тамбуре. Возводились с 70-ых по 1990-ые года.

Дома обладают слабой звукоизоляцией и проблемами с температурой в зимний период — батареи зачастую встроены в стены. Это основные недостатки здешних квартир.

Примерный метраж квартир: однокомнатные — около 33 кв.м.; двушки — 48 кв.м.; трёхкомнатные — примерно 63 кв.м. общей площади. Санузел здесь раздельный, комнаты в основном — изолированные.

Малосемейки

Этакие бюджетные варианты квартир, построенные в 1985—1990 годах.

В таких домах на этаже находится по 12 однокомнатных квартир. Иногда попадаются «двушки».

К преимуществам можно отнести более-менее просторные прихожие и наличие лоджии.

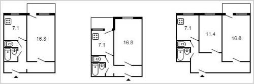
Чешки

Панельные многоэтажки, возведённые в период с 80-ых по 2000-ые года. По комфортабельности чуть лучше «стандартных». В подъезде, как правило, 2 лифта и изолированная лестница.

Приблизительные площади: 1-комнатная — 38 кв.м.; 2-комнатная — 50 кв.м.; «трёшка» — 60 кв.м.

Улучшенные

Сравнительно новые дома, построенные после 2000 года. Здесь мы видим более просторную площадь в отличие от остальных типов. Типы построек — самые разнообразные. Это и монолитные, и кирпичные, и панельные, и каркасно-блочные варианты. Так появляется возможность свободной перепланировки в некоторых из них.

Все эти дома отличаются хорошей звукоизоляцией.

Однако в последнее время появляется тенденция уменьшения площадей…

Данные предоставлены интернет-ресурсом iramara.com.

Realt.by Недвижимость

Есть что сказать?
Читать:
Лента новостей
Опрос
Как вы считаете, покупать квартиру лучше сейчас или следует подождать?