Регистрация

Продаётся здание 608 м² в г. Минске!

28.10.2010 502

ОАО «Белзаводстрой»

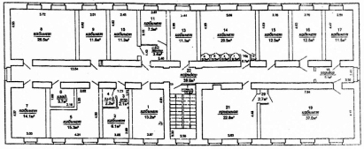
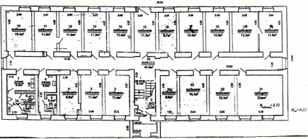
Собственник продаёт отдельно стоящее здание административно-хозяйственного назначения (офисы) площадью 608 м² на земельном участке 20 соток по ул. Передовая, 111а.

В здании разведены коммуникации, есть телефоны, электроэнергия, 2 санузла на первом этаже. Материал стен — кирпич, крыша — шифер, окна — стеклопакеты. Цена 1250 у.е. за 1 кв.м.

На участке так же находятся складские помещения — три разделённых бокса общей площадью 110 м2.

Контактные телефоны:

+375 29 664 75 31

+375 29 103 40 34

+375 29 673 85 95

Читать:
Лента новостей
Опрос
Как вы считаете, покупать квартиру лучше сейчас или следует подождать?