Регистрация

Помните про эти яркие панельки с недорогим квадратом? Вот сколько там сейчас стоят квартиры

21.04.2026 10654

Жилой комплекс «Антоновский квартал», который сдали больше года назад, заметно оживил район Пролетарки. Возведение панельного комплекса с коммерческими квартирами стартовало в 2020-м и продлилось около 4 лет. Кстати, несколько однушек, двушек и трешек в новостройках все еще ищут хозяев. Есть варианты без отделки от застройщика и с ремонтом от собственников. Посмотрим, почем тут предлагают жилье.

История квартала началась весной 2020 года, когда на площадку вышла первая строительная техника. Темпы работ оказались неплохими: первая очередь из трех домов была официально введена в эксплуатацию в декабре 2021 года, а к осени 2024 года комплекс приобрел свой финальный облик.

Яркие новостройки «Антоновского квартала» возводила компания «БелаТЭП», генеральным подрядчиком проекта выступал «МАПИД». Ранее на участке, спрятанном на тихой улице Рыбалко, располагались производственные здания.

Весь комплекс насчитывает 9 домов. Каждый жилой блок включает в себя три панельных здания высотой 10, 16 и 19 этажей. Стандартные столбики тут дополнили разными фишками: проходными подъездами, студиями, евродвушками и евротрешками, отсутствием несущих стен (в некоторых домах).

Каждая тройка новостроек получила и собственную цветовую гамму. Первая вышла зеленой, вторая − желтой, ну, а третья − оранжевой. Как и обещал застройщик, ЖК «Антоновский квартал» сдали с дворами без машин и разнообразными детскими площадками.

Надо сказать, что локация у ЖК — весьма перспективная, ведь город запланировал для этого микрорайона немало преобразований. Старая производственная застройка будет постепенно уступать место жилым и административным зданиям. А находящийся рядом с ЖК Антоновский парк уже подвергся обновлению. Также поблизости есть детские сады, школы, магазины, бассейн, кинотеатр и станция метро «Пролетарская».

Три года назад цены на квартиры в квартале начинались от 1130 долларов (в первых очередях они были даже еще ниже), но к окончанию строительства стоимость квадрата выросла.

Если вас заинтересовал этот комплекс, то свободные квартиры без отделки в сданных домах еще есть. Так, на сайте застройщика еще «висят» 3 однушки и 1 двушка. Однокомнатные квартиры площадью 38−45 квадратов предлагаются по 86−103 тысячи долларов (2300 долларов − за метр). Также в продаже есть двухкомнатная квартира площадью 60 квадратных метров. Ее предлагают за 138 тысяч долларов (2300 долларов — за метр).

Что тут продается на вторичке?

Сейчас здесь продается 4 квартиры от собственников. Все варианты с готовыми ремонтами, мебелью и техникой.

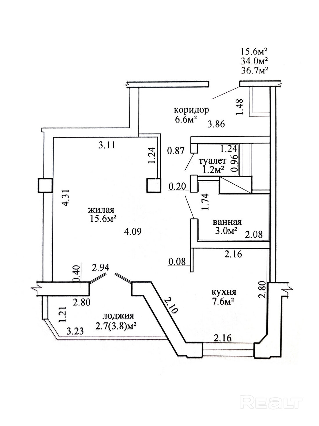
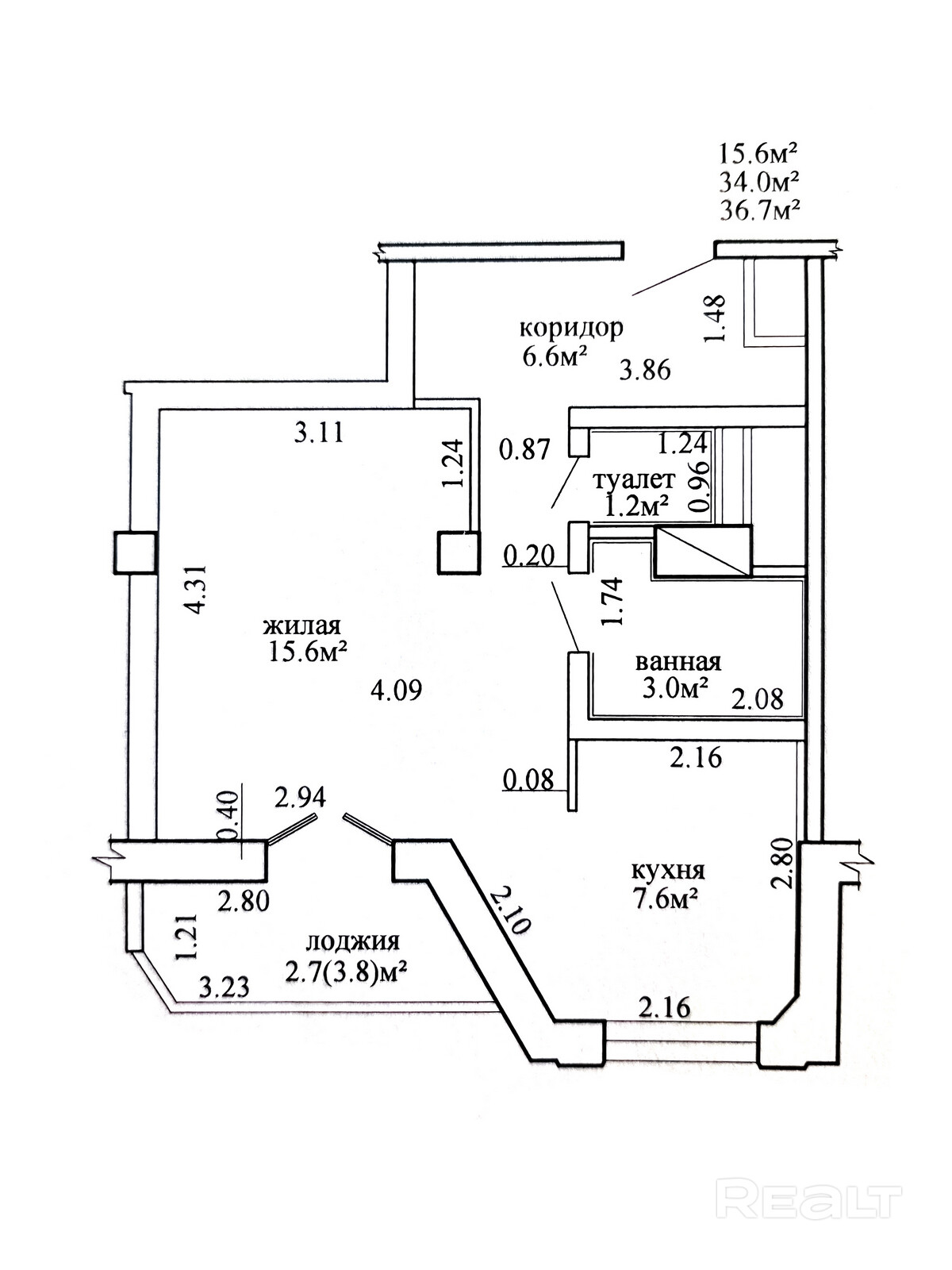
Самое недорогое предложение — компактная однокомнатная квартира площадью 36 квадратных метров. Жилье состоит из небольшой кухни и жилой комнаты, совмещающей функции гостиной и спальни. В квартире на 15-м этаже сделан современный ремонт, из панорамных окон открываются великолепные виды на окрестности. Стоимость — 297 тысяч рублей, или 104,9 тысячи долларов (8096 рублей, или 2858 долларов — за метр).

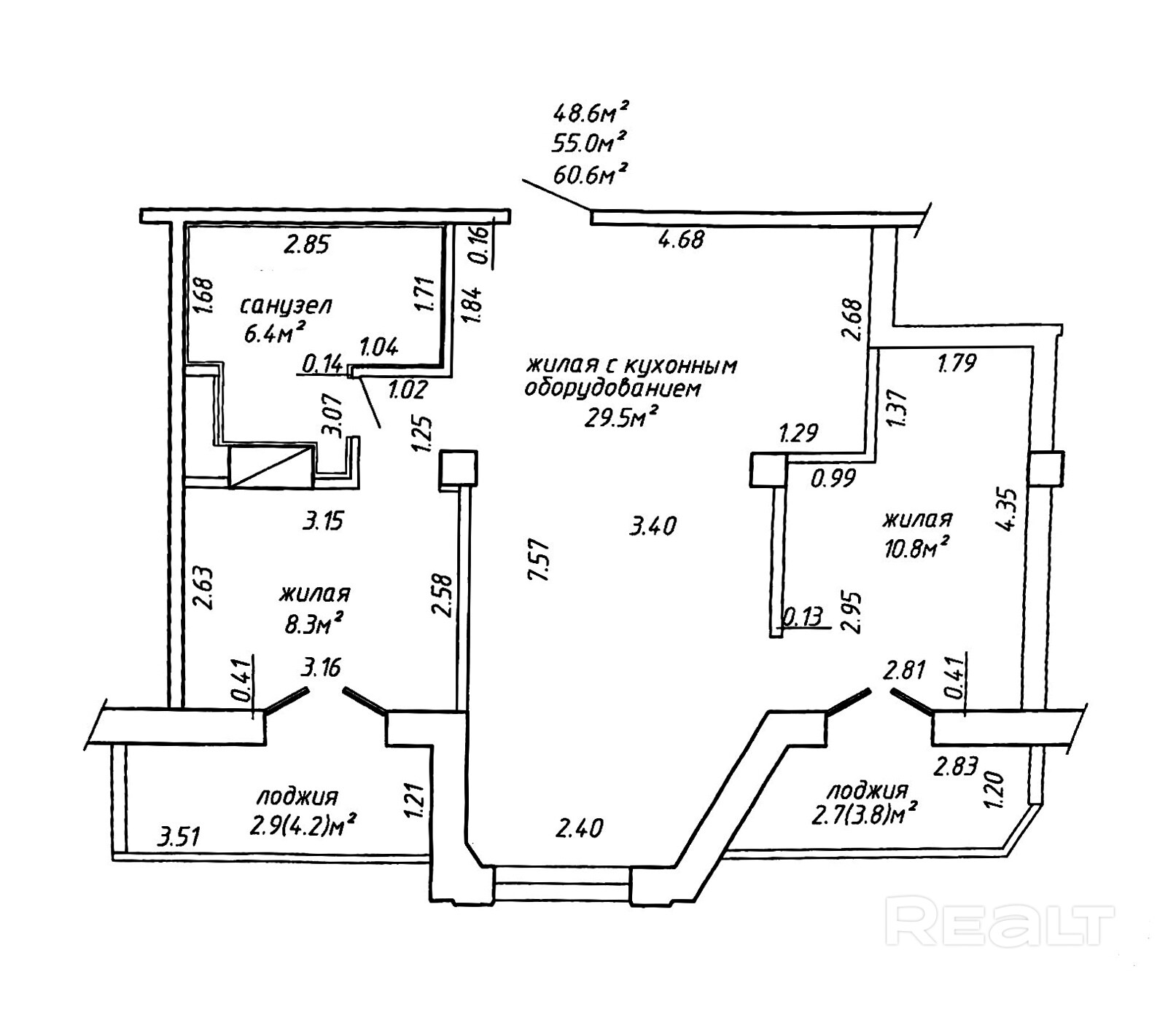
Следующее предложение — двухкомнатная квартира общей площадью 63 квадратных метра. Жилье находится на 5-м этаже. Двушка состоит из кухни-гостиной и двух спальных комнат. В жилье уже сделан ремонт. Стоимость — 381 тысяча рублей, или 134 тысячи долларов (5972 рублей, или 2108 долларов — за метр).

Еще одна квартира — евротрешка. Это жилье расположено на 4-м этаже и имеет площадь в 60 квадратных метров. Планировка в квартире такая: кухня-гостиная и две спальни. Внутри — качественный дорогостоящий ремонт, мебель, техника и санузел с мини-сауной. Стоимость — 461 тысяча рублей, или 163 тысячи долларов (7620 рублей, или 2690 долларов — за метр).

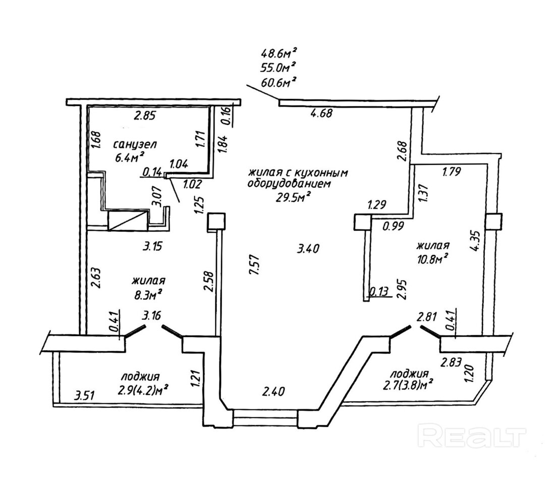
Самое дорогое предложение — трехкомнатная квартира площадью 75 квадратных метров, расположенная на 1-м этаже. В квартире сделан хороший ремонт и есть все необходимое для проживания. Жилье состоит из большой кухни, просторной гостиной и двух спальных комнат. В квартире продуманы вместительные шкафы и места хранения. Трешка продается с мебелью. Стоимость — 543 тысячи рублей, или 191,9 тысячи долларов (7219 рублей, или 2548 долларов — за метр).

Если вы семья с детьми, которая ищет квартиру для жизни, то Зеленая гавань — это место с огромным потенциалом. Здесь тихо, красиво, и с каждым годом инфраструктура продолжает развиваться.

Уже сейчас здесь есть детский сад «Птичий дом», кафе и магазины, а в будущем здесь появится еще больше удобств. 3-комнатная квартира с общей площадью чуть больше 57 м² — идеальный выбор для вашей семьи. Сейчас здесь достаточно места для вас, а с расширением семьи будет комфортно и вашим детям. Другие предложения от застройщика — по ссылке на Realt.

Читайте также:

Нашли пять классных квартир, в которые уже можно заезжать. Вот как купить их, если на руках — только 10% от стоимости

Этот дом на окраине Минска только начали строить, но за квартирами в нем уже стоит очередь. О чем речь?

Бизнес там, где есть спрос: на аукцион выставили 10 коммерческих помещений в свежих новостройках

Читать:
Лента новостей
Опрос
Как вы считаете, покупать квартиру лучше сейчас или следует подождать?