Регистрация

До 70 тысяч долларов. Нашли бюджетные однушки в пределах 2-го кольца Минска

05.04.2026 6597

Мы нашли бюджетные однушки в пределах 2-го кольца Минска. Они находятся недалеко от парков и станций метро. Жилье нуждается в обновлении, некоторые подготовлены к ремонту. Показываем, как выглядят эти варианты и сколько за них просят.

Улица Ольшевского (Фрунзенский район)

Пятиэтажный дом на Ольшевского, 13 был построен в 1965 году. В 2010-м здесь прошел капремонт. На четвертом уровне выставлена на продажу однушка в 30,2 м². Кухня занимает 5,17 метра.

Кстати, эту квартиру, как и остальные квартиры на Realt, можно купить в лизинг. Получить индивидуальную консультацию от специалистов можно вот здесь.

Квартира местами нуждается в обновлении. На полу лежат ламинат, плитка и доски. В окнах установлены стеклопакеты. 

Санузел – совмещенный. Балкона нет.

Рядом находятся остановки транспорта. В шаговой доступности располагаются сквер и станция метро «Пушкинская».

Обойдется однушка в 68 тысяч долларов. Цена метра – 2 252 доллара.

Улица Розы Люксембург (Московский район)

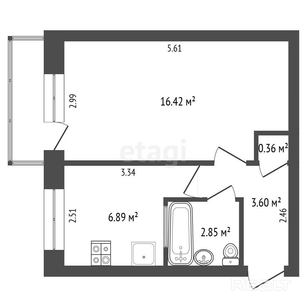
На третьем этаже пятиэтажки 1968 года постройки на Розы Люксембург, 197 продается квартира в 30,12 м² с кухней площадью 6,89 м². В 2017-м там провели капремонт. 

Жилье местами нуждается в обновлении, но выглядит неплохо. На полу лежит линолеум, стены оклеены обоями, в окнах стоят стеклопакеты. Остаются в квартире кухонный гарнитур, плита, холодильник, диван и шкаф. Из комнаты есть выход на застекленный балкон. В коридоре имеется ниша для хранения.

Санузел — совмещенный.

Дом расположен в районе с развитой инфраструктурой: здесь поблизости есть магазины, сквер, развит транспорт. До станции метро «Грушевка» — около 15 минут ходьбы.

Просят за жилье 69 900 долларов. Стоимость квадратного метра составляет 2 321 доллар.

Улица Розы Люксембург (Московский район)

Эта однушка тоже находится на улице Розы Люксембург. Она расположилась в пятиэтажном доме № 169 на последнем этаже. Площадь квартиры — 30,2 м², а кухни — 5,7 м². Здание возвели в 1964 году, а капремонт провели в 2018-м.

Квартира освобождена от мебели и техники. Она подготовлена к ремонтным работам. На полу тут лежат доски, в окнах стоят деревянные рамы. Из комнаты есть выход на балкон. 

Совмещенный санузел облицован плиткой. 

Станция метро «Грушевка» располагается в десяти минутах ходьбы.

Стоит квартира 62 900 долларов. 2 083 доллара выходит один квадратный метр.

Улица Розы Люксембург (Московский район)

На Розы Люксембург продается и четвертая квартира в подборке. Она находится в трехэтажной сталинке № 111/А. Его возвели в 1958 году. На однушку отведено 29,9 м², а кухня занимает 5,2 м².

Квартира выглядит хорошо, но требует обновлений. Здесь лежат доски, в окнах стоят стеклопакеты. Из кухни можно выйти на балкон.

Санузел — совмещенный.

Поблизости расположены остановки и кофейни. Меньше пяти минут потребуется, чтобы дойти до станции метро «Грушевка».

Цена квартиры — 67 тысяч долларов. Стоимость квадрата — 2 241 доллар.

Улица Рыбалко (Ленинский район)

Четырехэтажка на Рыбалко, 1 была построена в 1957 году. Однокомнатная квартира продается на последнем этаже. Ее площадь — 31,68 м². А кухня занимает 5,5 м². Капремонт прошел в 2020-м.

Жилье подготовили к ремонту: владельцы вынесли практически всю мебель и технику. Здесь установлены стеклопакеты и металлическая дверь.

Балкона в квартире нет, а санузел — раздельный.

Рядом с домом находится кинотеатр, несколько минут потребуется, чтобы добраться до Антоновского парка, где протекает водная система. Также пешком можно дойти до станции метро «Пролетарская».

За однушку просят 67 тысяч долларов. А цена одного метра — 2 115 долларов.

Читать:
Лента новостей
Опрос
Как вы считаете, покупать квартиру лучше сейчас или следует подождать?