Регистрация

Эти жилые башни в центре Минска строили почти 5 лет. Изучаем цены на первые квартиры «от собственников»

06.04.2026 21283

Минский ЖК «Маэстро» у площади Богушевича официально сдали осенью прошлого года, и сейчас комплекс только начинает обживаться. Пока новоселы завозят материалы для ремонта, на вторичке уже появились первые предложения — три квартиры без отделки. Рассказываем, почем продают квадратные метры в топовой локации (прямо у метро).

Напомним, что строила высотки повышенной комфортности компания «Гостевой дом», входящая в группу компаний «Стратег». Жилой комплекс из двух эффектных башен и стилобата с коммерческими помещениями вырос в самом конце улицы Немига. Минчане постарше еще помнят, что на этом участке долгие годы стояли два отселенных дома. Сейчас прямо рядом с домом находится относительно новая станция метро «Площадь Богушевича».

Первую декларацию по дому застройщик выпустил еще в декабре 2021 года. Тогда к долевому строительству предлагались квартиры стоимостью от 1600 до 1860 долларов за метр (сегодня их бы размели за считанные часы). В последующих декларациях стоимость метра только увеличивалась. Так, на финальной стадии стройки цены выросли до 2300−4000 долларов.

Весь комплекс на Немиге рассчитан на 141 квартиру площадью от 50 до 250 квадратных метров. Во время строительства мы делали репортаж про ЖК «Маэстро» и рассказывали про личные выходы к лифту, уникальное остекление, круглосуточный консьерж-сервис и другие фишки дома.

Первоначально «Маэстро» должны были сдать еще несколько лет назад, но из-за ряда корректировок дата приемки жилого комплекса в эксплуатацию неоднократно переносилась. Одной из причин называлось расположение ЖК на пересечении множества магистральных сетей. Закончить возведение башен с коммерческим стилобатом и подземным паркингом удалось осенью прошлого года.

Сейчас в элитном доме продаются три квартиры.

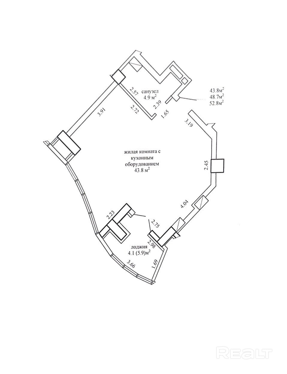
Самое недорогое предложение — двухкомнатная квартира площадью 52 квадратных метра. Это жилье распложено на 6-м этаже. Высота потолков — 3 метра. Панорамное остекление. Квартира предлагается без отделки. Стоимость — 743 тысячи рублей, или 253 тысячи долларов (14 079 рублей = 4794 доллара за метр).

В продаже есть квартира и чуть просторнее. Жилье площадью 76 квадратных метров расположено на 15-м этаже и имеет свободную планировку. На фото в объявлении, кстати, представлен один из вариантов установки перегородок. Цена квартиры — 792 тысяч рублей, или 270 тысяч долларов (10 394 рубля = 3539 долларов за метр).

Ну, а самый дорогой вариант — огромная квартира площадью 234 квадратных метра. Располагаются эти апартаменты на 16-м этаже 19-ти этажной башни. Внутри — панорамные окна, внутрипольные конвекторы, индивидуальный выход из лифта к квартире. Продают это жилье за 3,2 миллиона рублей, или 1,1 миллиона долларов (13 800 рублей = 4700 долларов за метр).

Читайте также:

Однушки с паркингом – от 100 тысяч долларов. Минчанам предлагают квартиры в комплексе «Петровские верфи»

Как строится «лесной» ЖК, за квартирами в котором стояли очереди. Тут еще остались двушки и трешки

Эта пятиэтажка раньше была общагой. Сейчас тут продается квартира с ремонтом и мебелью

Читать:
Лента новостей
Опрос
Как вы считаете, покупать квартиру лучше сейчас или следует подождать?