Регистрация

Есть и однушки по 60 тысяч долларов. Госзастройщик предлагает очередникам без направлений квартиры рядом с метро

31.03.2026 14158

В конце прошлого года недалеко от станции метро «Московская» снесли несколько частных усадеб и начали строить дом на 150 квартир. В феврале застройщик (УКС Советского района) предложил около 30 квартир квартиры всем желающим, а сегодня он выставил на продажу еще 20 квартир. В этот раз — для очередников без направлений. В ассортименте представлены однушки, двушки и трешки по 1350 долларов за квадрат. В отличие от прошлой партии жилья, большую часть квартир можно приобрести без обязательного паркинга! Рассказываем подробности.

Напомним, что стройка дома идет в границах улиц Волгоградской, Короленко, Ватутина и Кутузова. Будущую новостройку будет окружать частный сектор, а также многоквартирные дома. К примеру, именно тут находится некогда проблемный долгострой компании «Волынь».

Строит дом УКС Советского района Минска, генеральной подрядной организацией является Стройтрест № 1. Дом начали возводить в декабре прошлого года, а завершить планируют в первом квартале 2028 года.

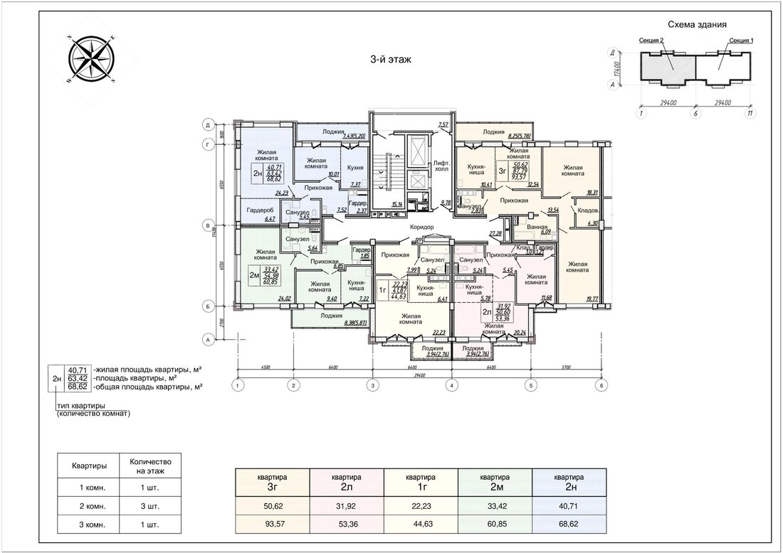
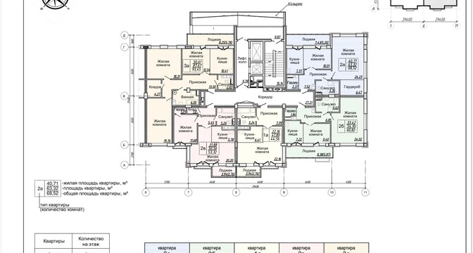
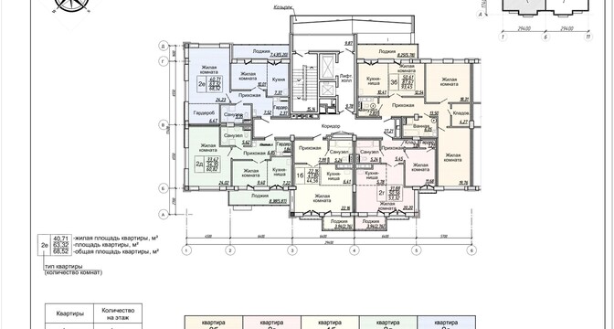
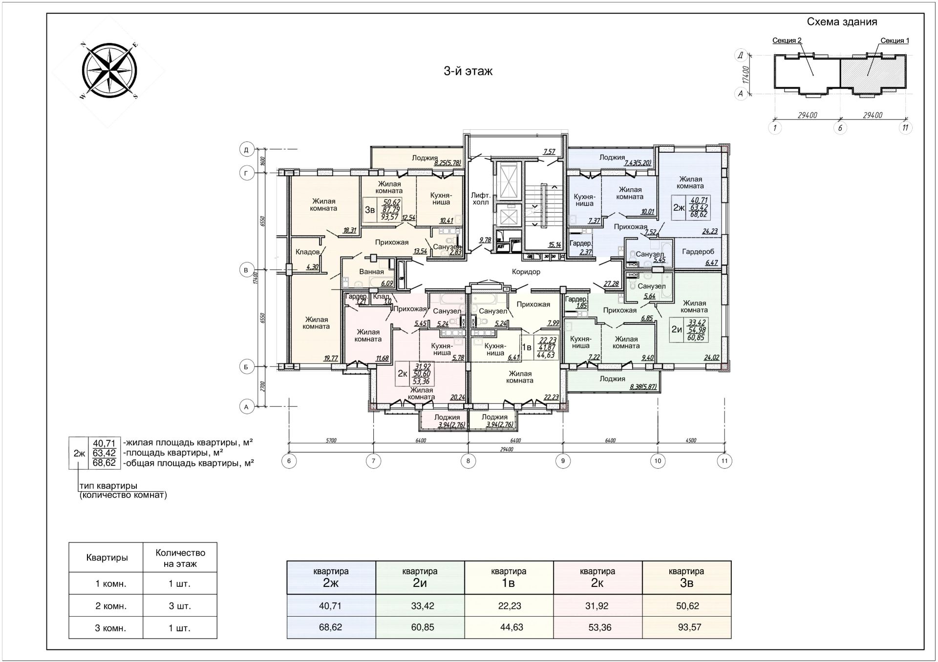
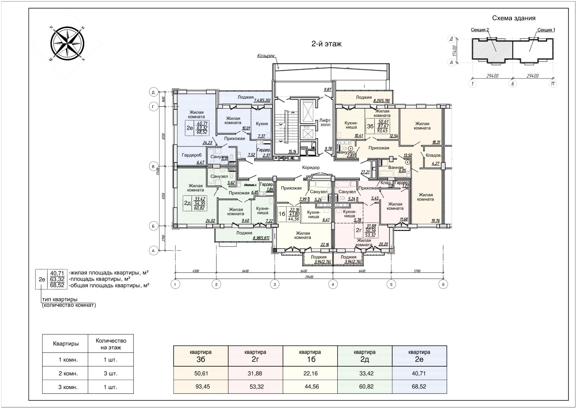
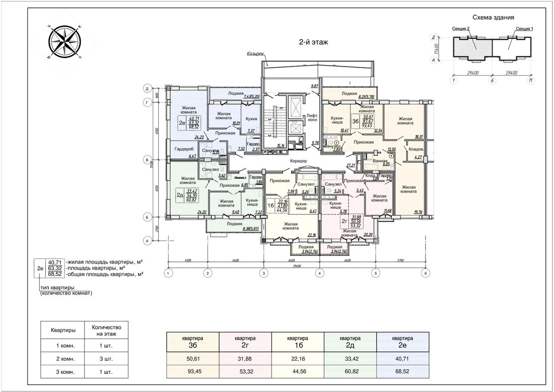
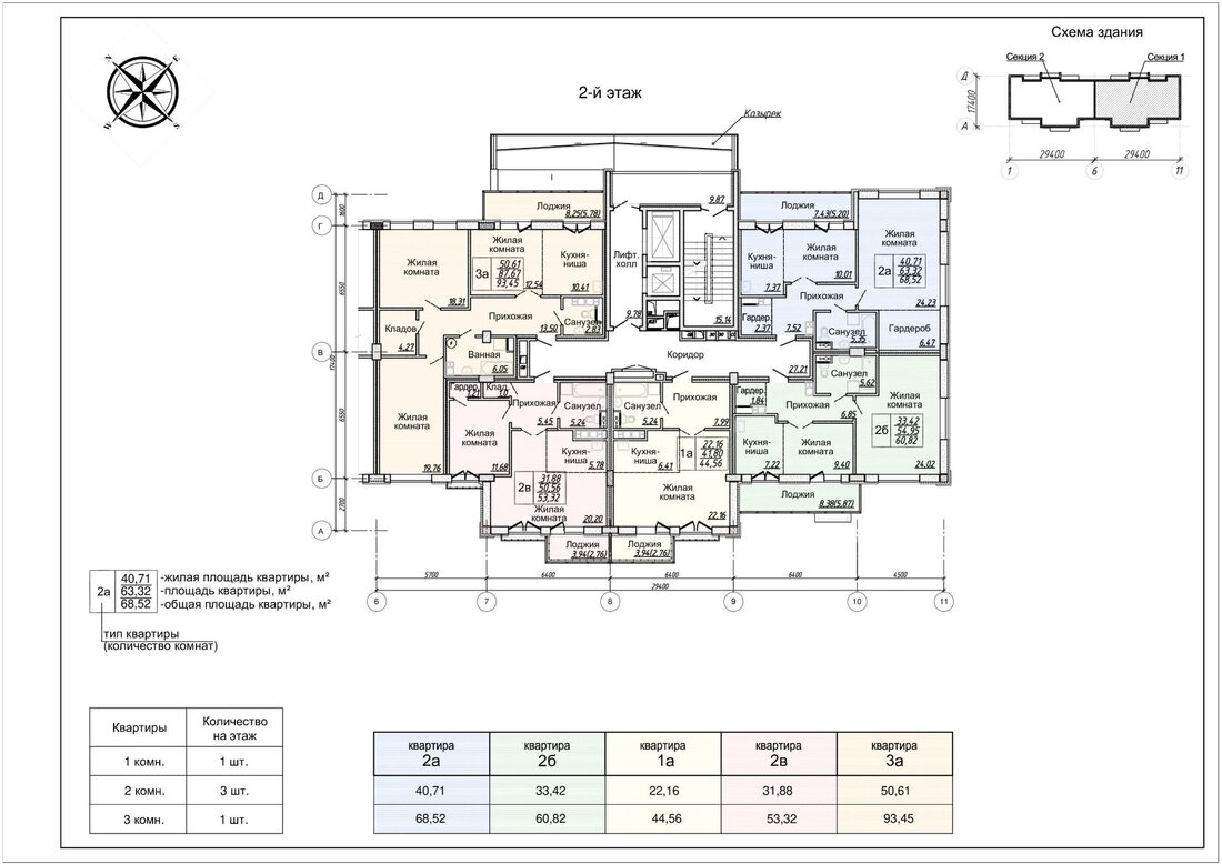
В запроектированной на месте частного сектора высотке будет 16 этажей, 2 подъезда и 150 квартир: 30 однушек, 90 двушек и 30 трешек. Первые этажи дома займут встроенные административные помещения, а также колясочные. Во всех квартирах кухни будут объединены с гостиными. Жилье в доме собираются сдавать без чистовой отделки, но с оштукатуренными стенами и стяжкой на полах.

Рядом с новостройкой появится четырехуровневый паркинг, рассчитанный на 96 легковых автомобилей, 15 велосипедов и моторных транспортных средств. Размеры парковочных мест будут составлять не менее 12,5 квадрата.

По второй декларации, опубликованной сегодня в газете «Минский курьер», нуждающимся в улучшении жилищных условий без направлений из районных администраций предлагается 20 квартир, расположенных на 2−3 этажах:

— 4 однокомнатные площадью 44 квадратных метра по стоимости 3989 рублей (1350 долларов) за метр;

— 12 двухкомнатных площадью от 53 до 68 квадратных метров по стоимости 3989 рублей (1350 долларов) за метр;

— 4 трехкомнатные площадью по 93 квадратных метра по стоимости 3989 рублей (1350 долларов) за метр с обязательным приобретением машино-места на втором уровне стоянки. Стоимость одного составляет 70 тысяч рублей (около 24 тысяч долларов).

Получается, за однокомнатную квартиру дольщику придется заплатить около 60 тысяч долларов, за двухкомнатную — 71−91 тысячу долларов, за трехкомнатную вместе с паркингом — около 150 тысяч долларов. Вносить денежные средства можно по графику платежей до ноября 2026 года (включительно). Первоначальный взнос — 40% от общей стоимости квартиры.

Заявления на участие в долевом строительстве будут принимать с 3 апреля по адресу: Минск, пр. Независимости, 46.

Для подачи заявления необходима справка о состоянии на учете нуждающихся в улучшении жилищных условий в администрациях Минска (либо по месту работы/службы) на имя заявителя со сверкой учетных данных, выданная не ранее дня опубликования настоящих изменений (дополнений) к проектной декларации. Осуществить строительство жилого помещения с ограниченной прибылью застройщика, предоставив справку, подтверждающую нуждаемость в улучшении жилищных условий, можно только один раз.

Читайте также:

Вы вряд ли слышали про эти новостройки на окраине Минска. В них уже продаются квартиры

В новом ЖК за кольцевой предложили еще 20 квартир. А что по стоимости?

Читать:
Лента новостей
Опрос
Как вы считаете, покупать квартиру лучше сейчас или следует подождать?