Регистрация

Квартира в свежей минской новостройке попала на аукцион. Вот по какой цене

10.03.2026 2913

В прошлом году в тихом уголке Минска закончилась стройка монолитного дома от госзастройщика. Многоэтажка на 86 квартир завершила формирование нового квартала в районе улиц Беды, Восточной и Белинского. Во время стройки жилье в доме могли приобрести как очередники, так и все желающие. А сейчас одна из квартир попала на аукцион. Рассказываем подробности.

Речь идет о новостройке по улице Восточной, 119. Многоквартирный дом возвели на месте бывших усадеб Сельхозпоселка, которые отправились под снос. Осваивал территорию УКС Советского района.

Первые три дома квартала заселились еще несколько лет назад, а финальную девятиэтажку сдали в эксплуатацию в 2025 году. Дом на 3 подъезда и 86 квартир оформили в той же бело-зеленой гамме, что и соседние. Квартиры в доме во время строительства предлагали как очередникам, так и все желающим. Стоимость квадратного метра для нуждающихся составляла 3352 рубля, для всех остальных — от 4800 рублей и выше.

Сейчас, когда новоселы уже заканчивают ремонты, УКС Советского района выставил на аукцион одну (видимо, невостребованную ранее) квартиру.

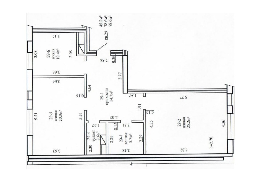
К покупке предлагается двушка площадью 78 квадратов. Отметим, что жилье расположено на первом этаже и не имеет балкона. В квартире нет отделки, но есть стяжка, штукатурка, электрика.

Начальная стоимость квартиры составляет 362 тысячи рублей (124 тысячи долларов). Получается, что метр в ней оценили в 4640 рублей (1590 долларов)

Торги назначены на 18 марта (11:00). Они пройдут по адресу: Минск, Карла Маркса, д. 39, пом. 7. Зарегистрироваться для участия можно до 16 марта включительно.

Читайте также:

Весь квартал сдадут уже в этом году. Рядом с метро «Могилевская» строят еще два дома

Квартиры разобрали за день. Показываем, как строят самый высокий дом в Брилевичах

На этот балкон вы засматривались с улицы. А сейчас эту квартиру на площади Победы продают

Читать:
Лента новостей
Опрос
Как вы считаете, покупать квартиру лучше сейчас или следует подождать?