Регистрация

«Прилично выиграли на распиле мебели». Показываем, какой ремонт сделали витебчане в квартире в центре города

09.03.2026 10071

Этот дом в центре Витебска стоит между двумя главными реками города. Кирпичную десятиэтажку с рестораном «Аврора» знают все местные жители. В этом доме Инне по наследству досталась трехкомнатная квартира. В прошлом году вместе с супругом они решились на ремонт: пригласили дизайнера, а большинство строительных работ взяли на себя, в том числе и сбор мебели. В итоге на все материалы у ребят ушло не более 7 тысяч долларов. Показываем результат и рассказываем, как забронировать эту квартиру с помощью сервиса Realt.Бронь.

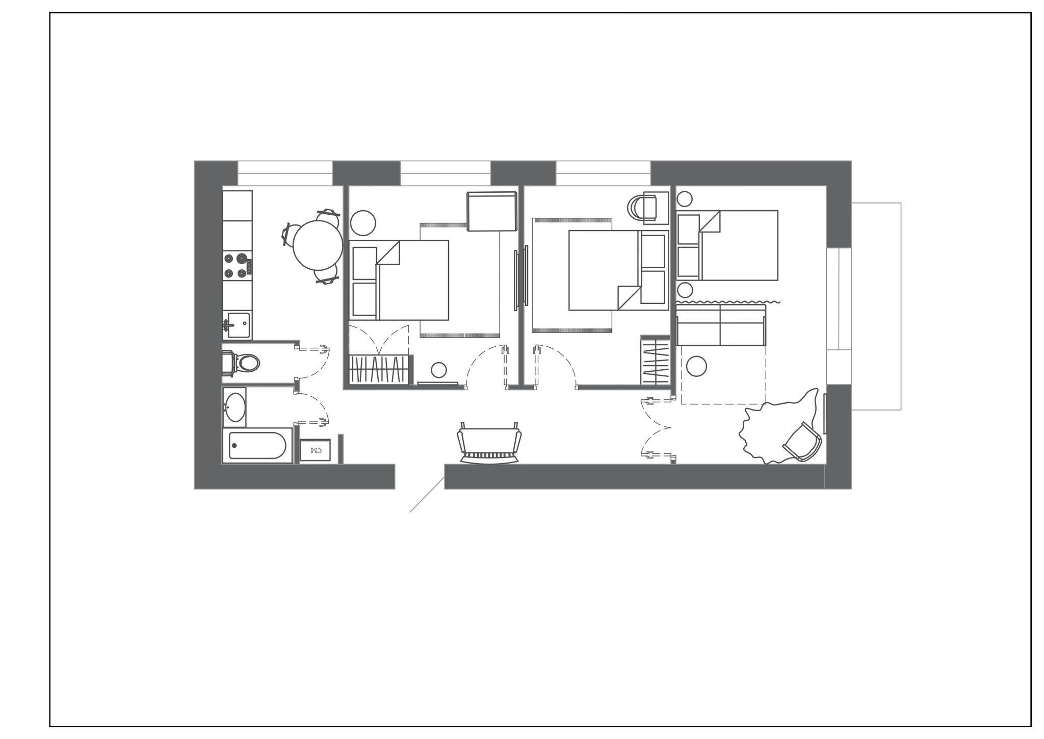
Этот кирпичный дом на Ленина, 53 построили в 1969 году в завидной локации Витебска: центр города, в шаговой доступности стоят Ратуша и Воскресенская церковь, недалеко протекает Западная Двина, еще ближе — парк на берегу Витьбы. Когда-то жилье здесь получали работники местного медицинского института. Завидная трехкомнатная квартира в 69 квадратов досталась Инне по наследству. Ее родителям когда-то удалось ее здесь купить. Два года назад девушка вместе с мужем решили подготовить трешку к посуточной аренде, ведь комнаты старого жилого фонда требовали обновлений. Основными работами по ремонту семья занималась самостоятельно, а вот создание интерьера доверили дизайнеру Юлии Жуковской.

Фото дома 1978 года из открытых источников

Заказчики сразу обозначали скромные рамки бюджета. Хотелось простых решений, которые можно реализовать своими силами. Поэтому сразу пришлось отказаться от идей с перепланировкой. На самом деле, изначальное расположение комнат достаточно хорошее: все они изолированные, окна выходят на парк и реку.

— Дизайн квартир под сдачу всегда связан с впечатлениями. Его создают, чтобы удивлять и заряжать. По сути, нужно упаковывать эмоции в квадратные метры, сделать жилье достопримечательностью, которую тоже захотят запечатлеть на фото, — объясняет дизайнер. — В таких ярких интерьерах немногие решаются жить каждый день, но «примерить» дизайн, остановившись на несколько дней — очень любопытно.

Владельцы хотели сохранить три спальных места, но не делать их одинаковыми. Юлия придумала окружить туриста гостеприимством, предложив комнаты с разным настроением.

— Для гостя это уникальный опыт, когда он выбирает локацию под свое состояние. Завтра у него может быть все иначе, и он найдет себя в другой обстановке, не выходя из квартиры.

В каждом жилом пространстве есть свой основной цвет и множество акцентов, которые принесли в квартиру нотки эклектики: перекрашенные винтажные зеркала, приобретенные на барахолке, советские люстры и картины, нарисованные местной художницей. Сюжеты работ подбирали в интернете.

Получилась спальня для яркой и эмоциональной натуры, которая ищет источник энергии. Комната безмолвия для уединения и восстановления сил. И спальня в стиле минимализма для уставшего от эмоциональной перегрузки.

Одну из комнат нужно было совместить с гостиной. Самое удобное расположение для этой задачи было у крайнего помещения с окном в торце здания. Естественный свет попадает и на кровать, и в общую зону.

Так как квартира для короткого пребывания, не нужно было создавать большие зоны хранения вещей. В комнатах стоят открытые вешалки и небольшие шкафы. Вообще, брендовые тут лишь кровати и диван. Остальное собственники трешки собирали сами.

— Детали для кухонного гарнитура, стола, тумб, шкафов и скамьи заказывали на распиле. По нашим расчетам, вышло в 3−4 раза дешевле, чем покупка готовой мебели. Таким образом, на обои, краску, плитку, пол и другие материалы ушло не более 7 тысяч долларов, — рассказывает Инна. — Реечные двери шкафа приобретали в обычном строительном магазине. Эту же основу брали для декоративных коробок под батареи. Лишь кухонные стулья пришлось везти специалисту на реставрацию.

Особым местом притяжения стала кухня. Она небольшая, но красочная. Для ее оформления была выбрана смелая цветовая палитра — голубые фасады и яркие ягодные швы на фартуке. На полу лежит плитка с геометрическим рисунком, которая плавно переходит в коридор, ванную и туалет, создавая ощущение целостности пространства.

— Такой прием увеличивает визуальные размеры помещения, — дополняет дизайнер.

Кухню сделали без верхних шкафов. Так она не перегружает пространство. Это достаточно прагматичное решение для собственников квартир посуточной аренды: исчезает главное место скопления жира и пыли. Когда все на виду, меньше шансов не заметить забытые продукты или пропустить грязь.

— Работая с подобными планировками в старом фонде, я всегда стремлюсь переделать ванную комнату, разместив раковину с зеркалом напротив входа. Тогда получается эстетичный вид с открытой дверью. Единственный вопрос в этом случае: куда поставить стиральную машину? В этом проекте мы выделили хозяйственный шкаф рядом с ванной комнатой. Сверху удалось повесить и бойлер.

Как забронировать эту квартиру?

Квартира Инны доступна в сервисе Realt.Бронь. Выбирайте желаемые даты для заселения! Дальше остается нажать кнопку «забронировать», оплатить услуги сервиса и готовиться к путешествию.

После оплаты сервиса с вами свяжется Инна — и с ней можно будет обсудить детали заселения. Никаких подводных камней и изменений условий.

И вы так же легко можете арендовать квартиру на сутки не только в Витебске, но и по всей Беларуси на сервисе Realt. Бронь.

Выбирайте нужные даты, выбирайте лучшее жилье — и бронируйте без рисков!

Читайте также:

Белорус сделал ремонт в 178-летней квартире. Посмотрите, как необычно получилось

Ремонт за 21 месяц и 41 тысячу долларов. Посмотрите, как преобразилась хрущевка после перепланировки

Читать:
Лента новостей
Опрос
Как вы считаете, покупать квартиру лучше сейчас или следует подождать?