Регистрация

Если на руках около 25 тысяч долларов. Смотрим бюджетные однушки недалеко от метро

28.02.2026 4430

Какие квартиры в Минске можно купить в лизинг, если на первый взнос есть около 25 тысяч долларов. Сегодня подберем под такой запрос однушки недалеко от метро, в которые можно заехать сразу после покупки. Это будут бюджетные по сегодняшним меркам варианты — 80−90 тысяч долларов. Просчитать условия лизинга можно в каждом конкреном объявлении, а оставить заявку на бесплатную консультацию по ссылке.

10 минут от «Академии наук» и «Площади Якуба Коласа»

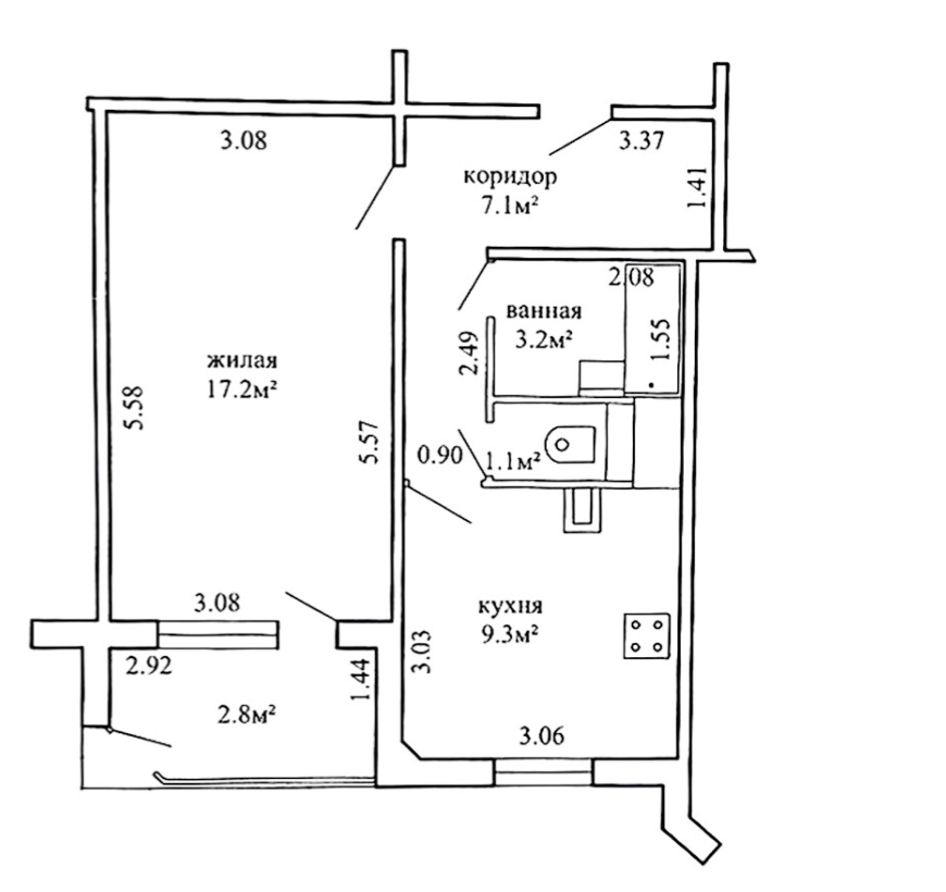
Эта однушка находится между двумя станциями метро — «Академией наук» и «Площадью Якуба Коласа». До любой из станций около 900 метров или 10 минут пешком.

Это девятиэтажка 1975 года по адресу Беломорская, 14. 

Квартира расположена на девятом этаже. Общая площадь — 33 квадрата. 17 их них прижодится на жилую, а кухня занимает 7 квадратов.

В кухне большое окно, в гостиной — выход на застекленную лоджию. Из мебели есть шкаф-купе, диван и комод. Санузел раздельный. Есть стиральная машина. Установлена ванна.

Квартиру оценили в 81 тысячу долларов (2 440 долларов). Минимальный первый взнос для покупки в лизинг — около 23 тысяч долларов. В объявлении — условия. 

13 минут до «Каменной Горки» 

Однокомнатная квартира на первом этаже девятиэтажки 1986 года по адресу Одинцова, 77 корпус 3. Это около километра или минут 13-15 до станции метро «Каменная Горка». 

Общая площадь — 37 квадратов, жилая — 17 квадратов, кухня — 7 метров. По словам продавца, в квартире сделали ремонт в прошлом году. В прихожей установлен шкаф-купе. В жилой комнате хватает места для дивана и кровати-трансформера. Санузел раздельный. Установлена ванна.

Такая однушка обойдется в 86 тысяч долларов, а метр в ней стоит 2 312 долларов. Минимальный первый взнос для покупки в лизинг — около 24 тысяч долларов. Какими будут ежемесячные платежи в таком случае, можно просчитать в объявлении.

10 минут от «Малиновки»

Однокомнатная квартира в десяти минутах пешком от станции метро «Малиновка». Девятый этаж девятиэтажки по адресу Наполеона Орды, 25. Над квартирой есть техэтаж. Дом построен в 2008 году. Выглядит вот так.

Общая площадь квартиры — 41 квадрат, жилая — 17 метров, а кухня — 9 метров. 

В жилой комнате стоит большая кровать, есть шкаф, стеллажи и рабочее место. Здесь же выход на застекленную лоджию.

В кухне из техники есть духовой шкаф с газовой плитой и холодильник.

Санузел раздельный. Установлена ванна и подключена стиральная машина с вертикальной загрузкой. 

На днях стоимость квартиры снизили, сейчас она продается за 87 тысяч долларов. Квадрат выходит 2 138 долларов. Желающим купить квартиру в лизинг на руках надо иметь 25 тысяч долларов. В объявлении — условия лизинга. 

5 минут от «Кунцевщины» 

Эта квартира находится на восьмом этаже девятиэтажного дома по адресу Бурдейного, 25 — до станции метро «Кунцевщина» меньше 500 метров. Дом 1981 дома. 

Квартира светлая — ней белые крашеные стены и ламинат в натуральном оттенке. Сантехника и электрика заменена. В жилой комнате есть выход на застекленную лоджию.

В кухне новая техника — холодильник, духовой шкаф, варочная панель и вытяжка.

Санузел раздельный. Установлена ванна и подключена стиральная машина.

Общий метраж квартиры — 36 квадратов, а жилая площадь — 17 метров.

Стоимость однушки — 88 500 долларов. Метр — 2 458 долларов. При покупке в лизинг минимальный первый взнос — чуть больше 25 тысяч долларов. В объявлении — калькулятор для подсчета условий лизинга.

8 минут до «Пушкинской»

Последняя квартира подборки — однушка на первом этаже девятиэтажного дома 1975 года на Одоевской, 30. До станции метро «Пушкинская» — 700 метров или минут 8 пешком. До «Спортивной» можно дойти за 15 минут.

Общая площадь — 34 квадрата, жилая — 17, кухня — 7 метров.

В прихожей установлен шкаф-купе. В жилой комнате стоит двуспальная кровать. Есть выход на лоджию. Кухонные фасады выполнены в сером цвете. Санузел раздельный. Продавец говорит, что в квартире недавно сделали ремонт.

Недавно квартира подешевела. Сейчас ее стоимость — 89 900 долларов. Метр — 2 611 долларов. В объявлении калькулятор, в котором можно просчитать комфортные условия лизинга. Минимальный первый взнос — чуть меньше 26 тысяч долларов.

Читайте также:

В первом доме Северного Берега продается квартира с дофаминовым интерьером. Что по цене?

«Метр в хрущевках доходит до трех тысяч долларов». Что творится с квартирами в Минске

В этом магазине продают только один продукт — и там постоянно очереди! Некоторые стоят по 40 минут

Читать:
Лента новостей
Опрос
Как вы считаете, покупать квартиру лучше сейчас или следует подождать?