Регистрация

До 70 тысяч долларов — столько стоят самые бюджетные двушки Минска. Как они выглядят?

01.03.2026 8031

Собрали двухкомнатные квартиры в Минске по самой бюджетной цене: сегодня это до 70 тысяч долларов. Есть варианты в трех районах города, в том числе и Центральном. Да, эти квартиры нуждаются в обновлении, но располагаются в локациях с развитой инфраструктурой. Показываем, как они выглядят.

Улица Гая (Центральный район)

Двухэтажный дом на Гая, 30 был построен в 1961 году, а в 2018-м тут прошел капремонт. На первом уровне выставлена на продажу двухкомнатная квартира в 31 квадрат. Кухня занимает 4,7 м².

Жилье нуждается в обновлении. На полу лежит линолеум, стены оклеены обоями, в окнах стоят стеклопакеты. Одна из комнат является проходной.

Санузел здесь совмещенный, с душем.

Около дома находятся остановки и магазины. Напротив — парк Дружбы Народов. Около 10 минут требуется, чтобы добраться до центра города.

Обойдется жилье в 69 900 долларов. Цена метра — 2 255 долларов.

Улица Щербакова (Партизанский район)

Продается квартира в пятиэтажном доме на Щербакова, 27. Он был построен в 1964-м, там уже провели капремонт. Двушка находится на первом этаже и занимает 44,1 м², на кухню выделено 5,7 метра.

Квартира под ремонт: на полу лежат доски и плитка, стены оклеены обоями. Одна из комнат — проходная. Балкона нет. В окнах стоят стеклопакеты.

.

Санузел — совмещенный.

Дом стоит около Антоновского парка. В 15 минутах ходьбы расположена станция метро «Тракторный завод».

Цена квартиры — 67 900 долларов. Один квадрат обойдется в 1 540 долларов.

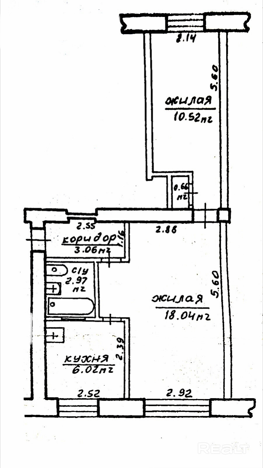
Улица Осипенко (Центральный район)

Пятиэтажный дом на Осипенко, 28 возвели в 1960-м. Капремонт прошел в 2020 году. На последнем этаже выставлена на продажу двушка площадью 41,3 м². На кухню отведено 6,02 метра.

Квартира под ремонт. На полу лежат линолеум и доски. Одна из комнат — проходная. Жилье идет без балкона. Санузел здесь совмещенный.

Недалеко от дома расположены остановки и магазины. В пешей доступности находятся кинотеатр «Киев» и Комсомольское озеро.

Цена квартиры — 70 тысяч долларов. Стоимость метра — 1 695 долларов.

Улица Ташкентская (Заводской район)

На Ташкентской 18/4 в 1968 был построен пятиэтажный дом. На предпоследнем уровне выставлена на продажу двушка в 40,19 м². Площадь кухни — 6,21 м².

Квартира нуждается в ремонте. На полу лежат доски, в окнах стоят старые деревянные рамы. Преимущество планировки в том, что обе комнаты тут изолированные.

Санузел — раздельный.

Дом стоит во дворах, в пешей доступности располагаются «Чижовка-Арена» и водохранилище.

Стоит жилье 67 тысяч долларов. Цена метра — 1 667 долларов.

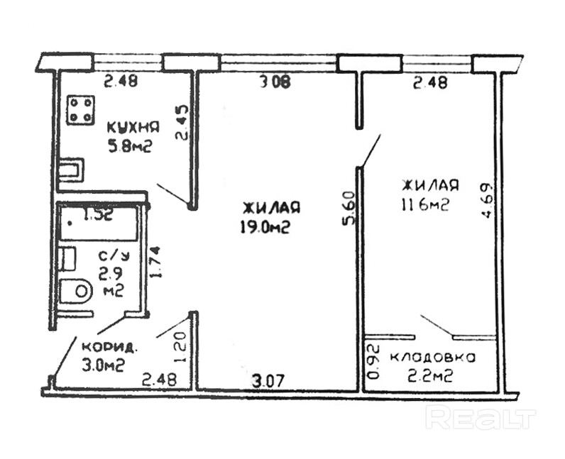
Улица Менделеева (Партизанский район)

Последняя квартира находится на первом этаже пятиэтажного дома 1964 года постройки на Менделеева, 21. Двушка занимает 44,5 м², площадь кухни — 5,8 квадрата. Капремонт прошел в 2018-м.

Жилье с одной проходной комнатой нуждается в обновлении. Здесь уже заменена проводка, стоят стеклопакеты в окнах. На полу лежат доски и линолеум. Балкона тут нет, но в крайней комнате имеется кладовая.

Санузел — совмещенный.

Дом стоит на возвышенности. В шаговой доступности располагаются парковая зона и водный кана, недалеко и Ботанический сад. В нескольких остановках находится станция метро «Академия наук».

Цена квартиры — 70 тысяч долларов. Метр стоит 1 573 долларов.

Хотите купить квартиру, но на руках нет всей необходимой суммы? С «Жилищным балансом» вы сможете отпраздновать новоселье после прохождения этапа накопления — без справок, поручителей и проверки кредитной истории. Калькулятор для предварительного расчета сроков и платежей вы найдете в объявлениях по всей Беларуси.

Читайте также:

Первыми провели онлайн-сделку и за пару недель купили квартиру для нового участника. Как кооператив из Минска стал известен всей Беларуси

Северный Берег, Лебяжий или Сухарево? Ищем идеальный ЖК для молодой пары

Читать:

Эксклюзив Realt.by

Лента новостей
Опрос
Как вы считаете, покупать квартиру лучше сейчас или следует подождать?