Регистрация

Самые бюджетные трешки в Минске. Как выглядят и сколько стоят?

22.02.2026 24914

В базе Realt нашли пять трехкомнатных квартир в Минске по бюджетной цене, а именно до 90 тысяч долларов. Все они находятся в пятиэтажных домах в трех районах города. Показываем, как выглядит это жилье.

Улица Пуховичская (Октябрьский район)

Пятиэтажный дом на улице Пуховичская, 17 построили в 1965 году. Квартира расположилась на первом этаже и занимает 57 квадратных метров. Площадь кухни — 5,4 метра. Дом после капремонта.

Кстати, эту квартиру, как и остальные квартиры на Realt, можно купить в лизинг. Получить индивидуальную консультацию от специалистов можно вот здесь.

Трешка идет с двумя изолированными комнатами. В окнах стоят стеклопакеты, стены оклеены обоями, на полу лежат ламинат и кафель. Также за квартирой закреплено подвальное помещение. 

Санузел тут раздельный.

В округе есть сады, школы и магазины. В десяти минутах ходьбы находится станция метро «Неморшанский сад».

Стоит квартира 85 тысяч долларов. Цена метра составляет 1 491 доллар.

Улица Козыревская (Ленинский район)

На четвертом этаже пятиэтажки на Козыревской, 33 продается трешка площадью 54,85 м² и кухней в 5,81 м². Здание возвели в 1962 году, а капремонт провели в 2023-м.

Квартира нуждается в ремонте. Все комнаты здесь отдельные. В центральной есть выход на балкон. Стены тут оклеены обоями, на полу лежат доски, в окнах стоят стеклопакеты.

Санузел — совмещенный.

В пешей доступности располагаются Лошицкий парк, остановки транспорта и стадион ФК «Минск».

Цена квартиры — 85 500 долларов. Стоимость метра — 1 559 долларов.

Улица Берута (Фрунзенский район)

Пятиэтажка на Берута, 9/3 была построена в 1967 году. Капремонт прошел в 2012-м. На первом этаже выставлена на продажу квартира в 50 квадратных метров. Кухня занимает 6,04 м².

Квартира нуждается в обновлении. Здесь две отдельные комнаты. В окнах стоят стеклопакеты, на полу лежит деревянное покрытие. Балкона тут нет, но имеется подвал для хранения.

Санузел в трешке раздельный. 

Рядом находятся школы, сады, а до станции метро «Пушкинская» — 10 минут ходьбы.

Обойдется квартира в 83 800 долларов. Цена метра — 1 676 долларов.

Проспект Рокоссовского (Ленинский район)

Пятиэтажный дом на проспекте Рокоссовского, 71 был построен в 1972 году. Трехкомнатная квартира продается на последнем этаже. Ее площадь — 50,23 м², кухня занимает 6,13 м².

Квартира выглядит неплохо. Одна из комнат — проходная. В окнах установлены стеклопакеты, на полу лежат доски.

Санузел — раздельный, есть застекленный балкон.

Недалеко находится парки и Чижовское водохранилище. Поблизости имеются магазины, сады и школы.

Стоит квартира 84 тысячи долларов. Цена квадрата — 1 672 доллара.

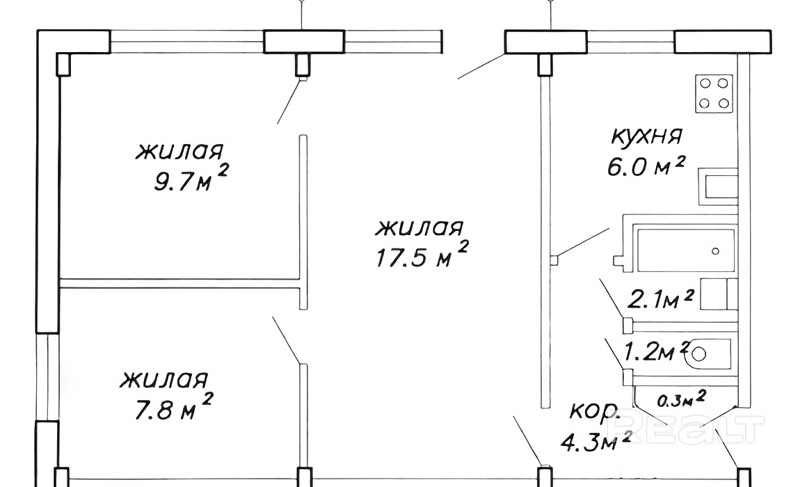
Проспект Пушкина (Фрунзенский район)

Последняя квартира в подборке располагается на четвертом этаже пятиэтажного дома на проспекте Пушкина, 79. Жилье возвели в 1968 году. Площадь трешки — 49,8 м². На кухню приходится 6 квадратных метров. Капремонт здесь провели в 2020-м.

Квартира выглядит неплохо. Тут тоже две отдельные комнаты. В проходной имеется выход на застекленный балкон. В окнах тут стоят стеклопакеты, на полу лежит разное покрытие.

Санузел — раздельный.

Дом находится в 10 минутах ходьбы от станции метро «Пушкинская». В нескольких остановках располагаются несколько торговых центров, поблизости есть школы и сады.

Обойдется квартира в 89 900 долларов. Получается, метр стоит 1 805 долларов.

Хотите купить квартиру, но на руках нет всей необходимой суммы? С «Жилищным балансом» вы сможете отпраздновать новоселье после прохождения этапа накопления — без справок, поручителей и проверки кредитной истории. Калькулятор для предварительного расчета сроков и платежей вы найдете в объявлениях по всей Беларуси.

Читать:
Лента новостей
Опрос
Как вы считаете, покупать квартиру лучше сейчас или следует подождать?