Как не прогадать с планировкой? Смотрим варианты от застройщиков вместе с дизайнером
Тренды берут свое: многие уже не готовы мириться с тесными прихожими, бесполезными метрами коридоров, наличием всего одного санузла на семью. Всем новоселам хочется как можно грамотнее распорядиться имеющимся пространством, не забыв и про эстетику. О том, как правильно выбирать квартиру по площади и другим важным факторам, как зонировать жилье, в чем должен помогать профессиональный дизайнер, какие интересные планировки предлагают застройщики — в нашем большом интервью с дизайнером, проектирующим жилые и общественные пространства по всему миру, специалистом из ТОП-100 2025 в Беларуси по версии KukhaAward Татьяной Скачковой. Кстати, доверить Татьяне свои квартирные хлопоты можно в пару кликов: заполните анкету для предварительной консультации и откройте для себя новые интерьерные возможности.

- Татьяна Скачкова
«Дизайнера лучше всего привлекать еще до момента покупки квартиры»
Татьяна сразу же обозначает: большой метраж — это не всегда возможность сделать хорошую, комфортную планировку:
— Очень сильно влияют изначальная форма квартиры и дома, расположение несущих конструкций (колонны, стены), количество окон и их расположение, в том числе и то, на одну сторону они выходят или на разные. Расположение коммуникаций — очень важный пункт. Порой очень хочется сделать мастер-спальню с личной мастер-ванной, но из-за коммуникаций не всегда есть возможность воплотить эту идею. В моей практике были большие квартиры на 150−200 м², но из-за особенностей расположения коммуникаций и несущих конструкций выбор по расположению помещений в них был ограничен.
Получается, что к дизайнеру нужно обращаться еще на этапе выбора квартиры? Именно так — специалист поможет не промахнуться с площадью, формой, найти решение, которое подойдет под жизненный сценарий семьи.
— Даже в ходе одной консультации, разобрав несколько вариантов и поняв ваш запрос, дизайнер выскажет свои аргументы «за» и «против». Вспоминаю случай из своего опыта: семье достались по наследству две квартиры, одну решили продавать, а другую ремонтировать, чтобы в дальнейшем там жить. Мы разобрали преимущества и недостатки обоих вариантов. Пришли к выводу, что даже большая по площади квартира не даст возможности сделать желаемую планировку — с двумя санузлами и отдельным кабинетом. Поэтому, повторюсь, что дизайнера лучше всего привлекать еще до момента покупки, чтобы не допустить ошибку.

- Интерьер, разработанный Татьяной Скачковой
Планировка может быть гибкой: бывает, что человек обустраивает квартиру для жизни одному, но появляется семья — и кабинет трансформируется в детскую.
— Например, если человек покупает трехкомнатную квартиру на себя одного, планировку мы с ним продумаем на 15−20 лет вперед, так, чтобы была возможность сделать и общие пространства, и отдельные спальни. Но, кстати, запросы на объединение кухни и гостиной я встречаю примерно в 50% случаев. Всё зависит от привычек людей. Если объединяем, то интегрируем кухню так, чтобы она стала частью пространства, не заметной, не акцентной, но удобной. Не теряет свою актуальность и отдельная кухня. В этом есть свои прелести: не нужно постоянно держать ее в идеальном порядке на случай внезапного прихода гостей, — улыбается специалист. — А вот объединять ванную и туалет, особенно если семья большая, однозначно не рекомендую. К этому решению я прибегаю в случаях, когда в санузле нужно разместить стиральную машину, оборудовать места для хранения, особенно в квартирах старого жилфонда.
Татьяна замечает, что сейчас она часто слышит запросы на уединенные пространства — каждому хочется хоть иногда побыть одному. При этом люди учитывают пожелания и других членов семьи:
— Мне нравятся такие запросы. Сейчас есть тенденция на саморазвитие, эмоциональный комфорт в отношениях. В проектах мы учитываем вопросы личного удобства каждого, что актуально и для людей, работающих удаленно.

- Интерьер, разработанный Татьяной Скачковой
Дизайнер экономит время заказчика: он подбирает материалы и связывает с проверенными подрядчиками
Многие собственники используют предложенную планировку от застройщика, хотя, по мнению эксперта, к вопросу нужно подходить индивидуально. Не зная правил перепланировки, люди могут нарушить закон. К тому же, без помощи специалиста, просто упускают лучшие для своей ситуации решения.
— Я в проектах очень люблю архитектурный подход. Работаю с объемами, связывая планировку сразу с дизайном и отделкой, — объясняет Татьяна. — Добавлю еще здесь, что за проектом скрывается огромное количество технических особенностей, которые не видны заказчикам, но становятся каркасом для грамотной планировки и красивого, уютного интерьера. Плохая же планировка дает ощущение хаоса.
Получается, что дизайнер — это не только про красоту, но и про функциональность, эргономичность. Татьяна перечислила весь объем задач, которые решает опытный специалист:
- учитывает индивидуальность каждого заказчика, интегрируя его запросы в проектирование;
- помогает даже самому творческому заказчику не создать интерьер, как набор картинок из Pinterest, а аргументирует свой выбор и логически осмысляет интерьер;
- продумывает планировку и функционально, и эстетически;
- подбирает материалы для чистовой отделки;
- интегрирует инженерные системы (вентиляция, кондиционирование, сантехника) сразу с двух сторон;
- экономит время на поиски всего необходимого для реализации;
- помогает решить вопрос с проверенными подрядчиками — дизайнер не посоветует на свой проект неответственных людей.
Благодаря дизайнеру вы не допустите целый ряд обидных ошибок:
- неправильное распределение бюджета;
- неверный выбор оттенков в интерьере и их соотношение с другими отделочными материалами;
- пропуск недочетов в строительстве.
Также работа со специалистом минимизирует споры по поводу интерьерных решений между членами семьи, показывает будущий интерьер максимально реалистично, помогает с направлением в нужные инстанции при согласовании перепланировки. В общем, дизайнер включен во все важные процессы, что экономит и время, и деньги заказчика, оставляя от процесса ремонта только приятные эмоции.

- Интерьер, разработанный Татьяной Скачковой
Можно уйти от стандартной истории с диваном перед телевизором — и смотреть фильмы на проекторе
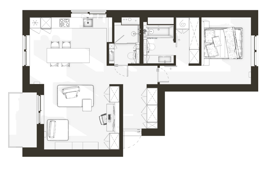
Мы предложили Татьяне разобрать несколько планировок квартир в популярных жилых комплексах Минска и пригорода. Начали с Зеленой гавани, с квартиры площадью 82,63 м², расположенной в ситихаусе.
— Это пример очень хорошей планировки, — говорит Татьяна. — Она расположена на первом этаже, есть выход на свою небольшую террасу. Входная зона стоит отдельно, она не проходная, то есть из нее не ходят в другие помещения и не разносят грязь от обуви. Сразу же есть вход в гостиную, где можно собрать друзей. И из этой же гостиной выйти на террасу. И еще один несомненный плюс — два санузла. При этом один из них можно спокойно присоединить к спальне.
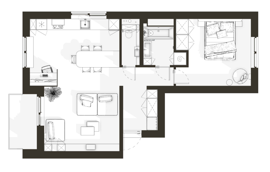
Еще один пример хорошей планировки в Зеленой гавани — квартира площадью 66,9 м², с двумя спальнями и кухней-гостиной на 22,57 м².
— Казалось бы, квартира совсем небольшая, но классно то, что выделены кабинет, прихожая, которая, как и в первом случае, не становится проходной и, как следствие, не превращается в грязную зону. Есть отдельная мастер-спальня с собственным санузлом сразу же от застройщика, даже проход предусмотрен сразу в мастер-спальню. В ней — два окна, что тоже очень здорово. И кабинет, куда можно войти из кухни-гостиной, сделан интересным образом. Если, допустим, человек покупает эту квартиру и ему не нужен отдельный кабинет, то можно интегрировать туда кухню. Это хорошо подойдет в случаях, когда семья не очень любит готовить и предпочитает еду в заведениях, то есть, когда у них нет запроса на огромную кухню. А если кабинет объединяется с гостиной, общая площадь помещения становится еще больше, это как вариант. Отлично еще и то, что окна выходят на три стороны.
Что касается интерьерных решений для этих двух квартир, здесь Татьяна напоминает: всё индивидуально и проект всегда разрабатывается под запрос. Но если обобщить, эксперт предлагает уйти от стандартной истории с диваном перед телевизором. Заменить это проектором, расположенном, например, в мастер-спальне. А гостиную обустроить для того, чтобы проводить время за общением всей семьей. Это еще и колоссально сэкономит пространство. Ванну предпочтительнее делать в санузле возле спальни, душ — в общем санузле. Хотя бывает и наоборот, особенно если в семье есть маленькие дети и им часто хочется плескаться в ванной.
Планировка является основанием для дальнейшей разработки дизайн-проекта. Для интерьерного креатива дизайнер предлагает использовать возможности не только самой квартиры, но и ЖК, вида из окна:
— Зеленая гавань сама по себе достаточно колоритная. В таких случаях хочется интегрировать дизайн квартиры с тем, что окружает дом. То есть, впустить внутрь какие-то природные, архитектурные оттенки или же, наоборот, уйти в нейтральный минимализм. Атмосфера этого ЖК настраивает на уединенный, спокойный стиль, без шума и вечеринок.

- Интерьер, разработанный Татьяной Скачковой
«Угловые квартиры, как правило, очень удобны»
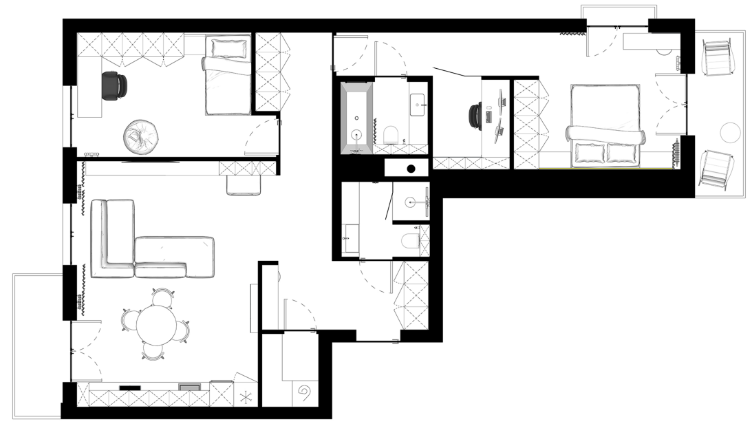
Перейдем к планировкам в другом известном жилом комплексе — в «Вершине». Здесь Татьяну заинтересовала квартира площадью 81 м² с лоджией и окнами на две стороны.
— Здесь мне очень понравилась идея, что через гардероб можно сделать собственный вход в ванную. Прекрасно, что есть большое место для хранения в коридоре, но отсюда и минус: коридор будет достаточно темным. Решение — впустить в него свет через прозрачные двери в гостиную. Или же вовсе не делать двери. Стиральную машину из угла я бы переставила, расширив таким образом проход в гостиную. Кстати, если кухню сделать прямой, не угловой, добавить остров, тоже будет классно. Света в гостиной и в кухне очень много. Детская здесь, скорее всего, только на одного ребенка, ее хотелось бы увеличить за счет коридора, но в санузле на 2,6 м² идет несущая стена и с ней ничего не сделать. Это угловая квартира — они, как правило, очень удобны.
Второй вариант, приглянувшийся Татьяне в ЖК «Вершина», это квартира на 114 м².
— Здесь много места, но это еще не всё. Один из огромных плюсов — возможность классно увеличить гостиную за счет детской на 18,3 м². Помещение на 12,4 м² можно превратить в кабинет. Или же в зоне предполагаемой кухни сделать кабинет, а саму кухню вынести в гостиную. Также будет удобно перенести постирочный блок в гостевой санузел. Так увеличится площадь основной ванной комнаты, куда в итоге поместятся и ванна, и душевая. В общем, это замечательная планировка с большим пространством для творчества.
Третье интересное решение из ЖК «Вершина» — квартира на 51 м².
— Это очень хороший вариант, в котором можно сделать отличную перепланировку. Поменять местами кухню с гостиной, сделать кухню с небольшим поворотом. Поставить небольшой угловой диван, развернуть барную стойку. Есть опция разделить санузел — на маленький гостевой и побольше. При желании мы можем увеличивать жилую площадь за счет санузла (не более чем на 25%). То есть, можно сделать там небольшую душевую, например, санузел, раковину. В гостевом санузле — нишу под стиральную машину, как раз там, где у застройщика нарисован душ. А если утеплить балкон, повесить там кондиционер, можно обустроить небольшое рабочее место. Получится отличное жилье для семьи из двух человек, будет удобно и с ребенком до трех лет.
Реальные кейсы: дизайн-проекты под индивидуальные запросы заказчиков
Для большей наглядности Татьяна решила поделиться с нами уже реализованными кейсами. Сначала расскажем о проекте, воплощенном в квартире в Зеленой гавани. Запрос заказчика был таким:
— Сейчас я живу один сейчас, планирую семью, то есть, появятся супруга, ребенок. Также хочу завести собаку — и зонирование, и отделка должны быть сделаны с учетом этого. Я социальный, часто принимаю гостей, от одного до 10−15 человек, так что кухню-гостиную нужно сориентировать на большие застолья и ночлег для друзей. По профессии — ученый, хирург, преподаватель, IT-консультант. Как результат — много чтения (бумажные книги), работа за компьютером, частые созвоны. Нужна зона с фото- и видеотехникой. Люблю готовить: нужна рабочая, удобная, продуманная кухня с большим количеством мест хранения, техники, где можно будет легко разминуться двум «поварам». Приоритет вложений такой: инженерия (электрика, система вентиляция, датчики), умный дом, водяные/коллекторные решения важнее декоративных изысков.
Обмерный план квартиры:
Исходя из этого запроса, Татьяна вывела философию проекта: функция формирует форму. Нужно было создать ощущение дома (тепло, уют, свет), в который хочется вернуться и откуда не хочется выходить. Было решено делать минимализм с душой: натуральные материалы, продуманная эргономика, отсутствие визуального шума. Планы «на вырост» тоже учли, квартира должна легко адаптироваться под пару с ребенком до трех лет, с запасом мест для хранения. С учетом неплохого качества панельного железобетона от застройщика специалист поняла, как сэкономить на декоре.
Решение дизайнера:
— Перепланировка и ключевая зона — мастер-блок, объединяющий небольшую уютную спальню, ванную, гардеробную / систему хранения, постирочную, технические коммуникации. Проход из спальни в гардеробную, а затем в ванную. Выбор раздвижных дверей, которые экономят пространство и минимизируют конфликты. В плане сантехники — инсталляции, подвесные элементы. Для хранения сезонной одежды большой шкаф в прихожей и кладовая на цоколе.
Так выглядели первые дизайнерские варианты:
— У заказчика были очень большие требования к эргономике. Самый важный запрос был именно на мастер-спальню с собственными гардеробом и ванной. Мы предложили несколько вариантов, один из них согласовали. Получилось выделить гардеробную систему и даже вход через гардероб в ванную комнату. Рабочая зона получилась большой, как и просил заказчик. Мы проработали всё буквально до сантиметра, сделали достаточно сложное подключение сантехники.
В гостевом санузле удалось расположить унитаз и небольшой душ. В будущем, когда у заказчика появится семья, будет удобно пользоваться кому-то душем, кому-то ванной. Также в этом же помещении располагается небольшая раковина, не глубокая, но она всё же есть. И маленькое пространство для хранения косметики и полотенец.
Что касается кухни и гостиной, по планам застройщика эти помещения подразумевались именно с этой стороны, потому что там есть маленькое окошко на кухне, которое можно использовать в зоне рабочего фартука. Это очень красиво, это такой архитектурный прием, перекочевавший из частных домов в квартиры. С левой стороны мы расположили всю пенальную группу. Это встроенная морозилка в пол, встроенный холодильник в пол. Рабочая зона получилась больше двух метров. И за поворотом у нас находится варочная панель с верхним хранением над ним. Долго обсуждали с заказчиком, что все-таки выбрать, стол или остров, но все-таки остановились на варианте стола, потому что к нему часто приходят друзья, ведь остров — это не мобильная история. В гостиной сделали проектор на потолке, диван в стилистике «а-ля 80-е». Обустроили читательский уголок, рабочую зону. В коридоре появилась ниша для постирочного блока, там даже расположился моющий робот-пылесос, где он и «запитался» к воде.
Кровать в спальне расположили классически. Уголок, где расположено кресло, с появлением ребенка можно будет трансформировать — и поставить кроватку.
Результат работы дизайнера:
Еще один кейс — проект для квартиры в жилом комплексе «Северный берег». Так выглядела изначальная планировка:
— Запрос был на квартиру с отдельным кабинетом, отдельной детской, мастер-блоком со своим санузлом, а также с объединенной кухней-гостиной. Сразу же появилась задача: где же разместить постирочную? В итоговой планировке мы предусмотрели для этого отдельное помещение. Благодаря длине стены, где стоит кухня, нам удалось это сделать. Получилось изолировать прихожую зону, сделать более приватной зону кухни-гостиной, чтобы она не просматривалась со входа. Сделали гостевой санузел с небольшой душем, потому что основную ванну расположили в мастер-спальне, как и просили заказчики. Также выделили отдельную детскую, где хватит места даже для двоих детей. По коридору у нас расположилась дополнительная система хранения, чтобы компенсировать отсутствие гардероба в спальне. И в спальне у нас появился довольно вместительный кабинет, со стеклянной перегородкой, чтобы туда проходил естественный свет.
Вот результат работы дизайнера:
Как связаться с Татьяной для предварительной консультации и работы с вашей квартирой?
Дизайнер Татьяна Скачкова работает с объектами в Минске, Витебске и других точках нашей страны. Как мы уже говорили, работу со специалистом лучше всего начинать еще на моменте выбора квартиры. Но даже если ваша ситуация иная — и вам нужны взгляд специалиста, перепланировка, дизайн-проект, воплощение ваших интерьерных идей с соблюдением всех законов и норм — запишитесь на консультацию к дизайнеру здесь.