Регистрация

Смотрите, какую стильную квартиру продают в Олимпик Парке. Цена — полмиллиона долларов

11.02.2026 5631

В ЖК «Олимпик Парк», что стоит около заказника, выставлена на продажу квартира в 120 квадратных метров. Жилье полностью готово к проживанию, обставлено техникой и дизайнерской мебелью. Просят за квартиру более полумиллиона долларов. Предлагаем узнать, как здесь распорядились площадью и какие интересные фишки применили в интерьере.

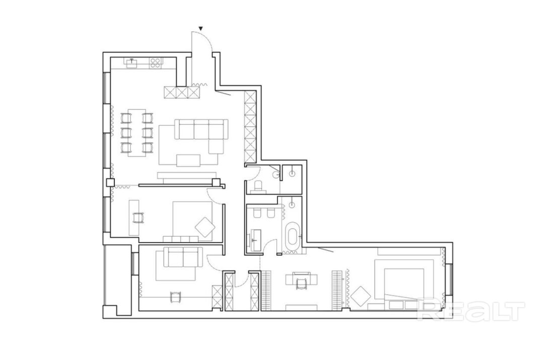
Дом на Тимирязева, 122 появился в ЖК «Олимпик Парк» в 2023 году. Его построили в пять этажей. На последнем уровне выставлена на продажу квартира в 122,5 м².

Метры разделили между кухней-гостиной, двумя комнатами, мастер-спальней, санузлом и кладовой.

Конечно, такая площадь позволила разместить все необходимое. При этом пространства не кажутся перегруженными, ведь объема комнатам дают и потолки в 3,5 метра. Изюминкой можно назвать стеклянные перегородки и зеркала во всю высоту, которые добавляют света. Например, такая перегородка между комнатой и гостиной.

На полу лежит паркет Coswick из натурального дерева, в санузлах и кухне — итальянская и испанская плитка. Стены отделаны декоративной штукатуркой и микроцементом.

Квартира укомплектована техникой бренда Bosch, установлена сантехника от BRUMA.

Квартира отличается большим количеством деревянных материалов в интерьере. Корпусная мебель выполнена на заказ из натурального шпона. Журнальные столы, столешницы, умывальники сделаны из кварцевого агломерата.

Украшает комнаты и дизайнерская мебель: диван &tradition Develius и стулья &tradition Pavilion AV2. Разное настроение помогают создать различные сценарии света.

В мастер-спальне удалось гармонично совместить место для сна, просторную гардеробную и санузел. Напомним, в квартире их два: с ванной и душем.

Это закрытый жилой комплекс с круглосуточной охраной, видеонаблюдением, детскими и спортивными площадками.

Рядом набережная Свислочи, пляж, кофейни, рестораны и магазины. Заказник Лебяжий — в шаговой доступности.

Просят за квартиру 565 тысяч долларов. Получается, что квадрат обойдется в 4 612 долларов.

Читайте также:

Студия в «Минск-Мире» по 5 137 $ за метр. ТОП подорожавших и подешевевших квартир

Строительство новой школы в Минск-Мире отложили на неопределенный срок. Почему?

Читать:
Лента новостей
Опрос
Как вы считаете, покупать квартиру лучше сейчас или следует подождать?