Регистрация

В сталинке около площади Победы продают квартиру писателя. Как она выглядит?

23.01.2026 43048

В доме на улице Захарова в нескольких минутах ходьбы от станции метро «Площадь Победы» на продажу выставили двухкомнатную квартиру со свежим ремонтом в классическом стиле. Квадрат в этой двушке оценили выше трех тысяч долларов. Рассмотрим эту квартиру подробнее.

Это четырехэтажная сталинка 1956 года по адресу Захарова, 23. Вы можете знать это здание на пересечении улицы Захарова и Войскового переулка. Вот оно на карте.

Раньше квартиры здесь получали непростые белорусы — в районе улиц Захарова и Пулихова селилась партийная и творческая элита БССР. И до сих пор этот квартал считается достаточно престижным для жизни. До метро от дома буквально полтора квартала или меньше пяти минут пешком.

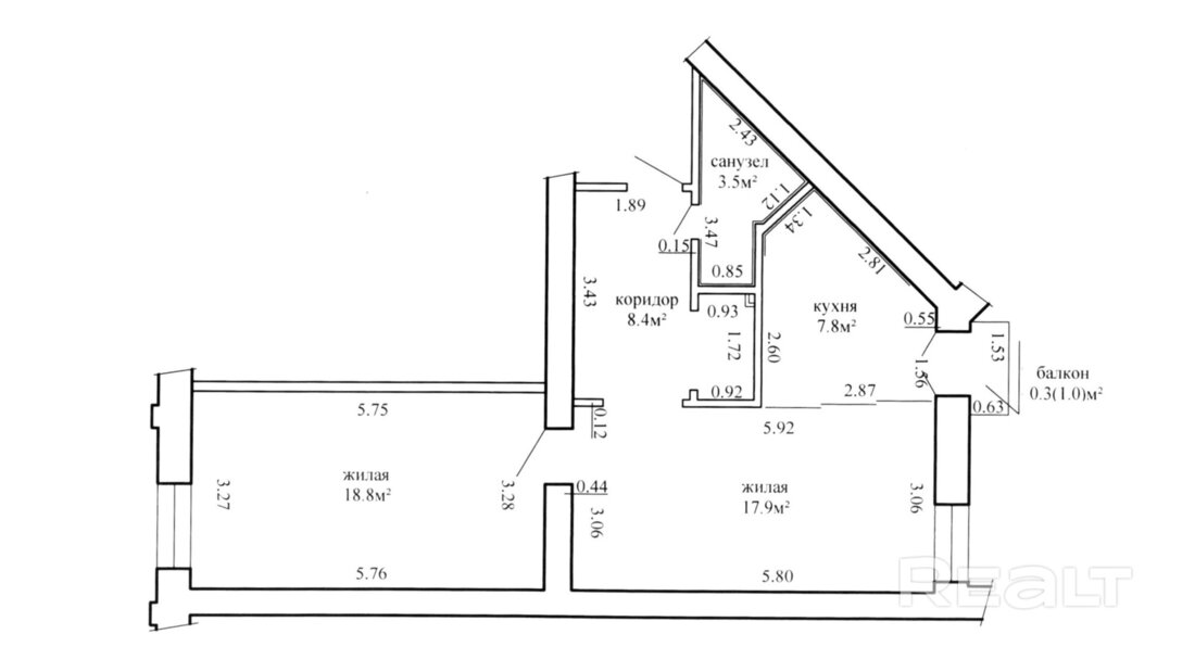
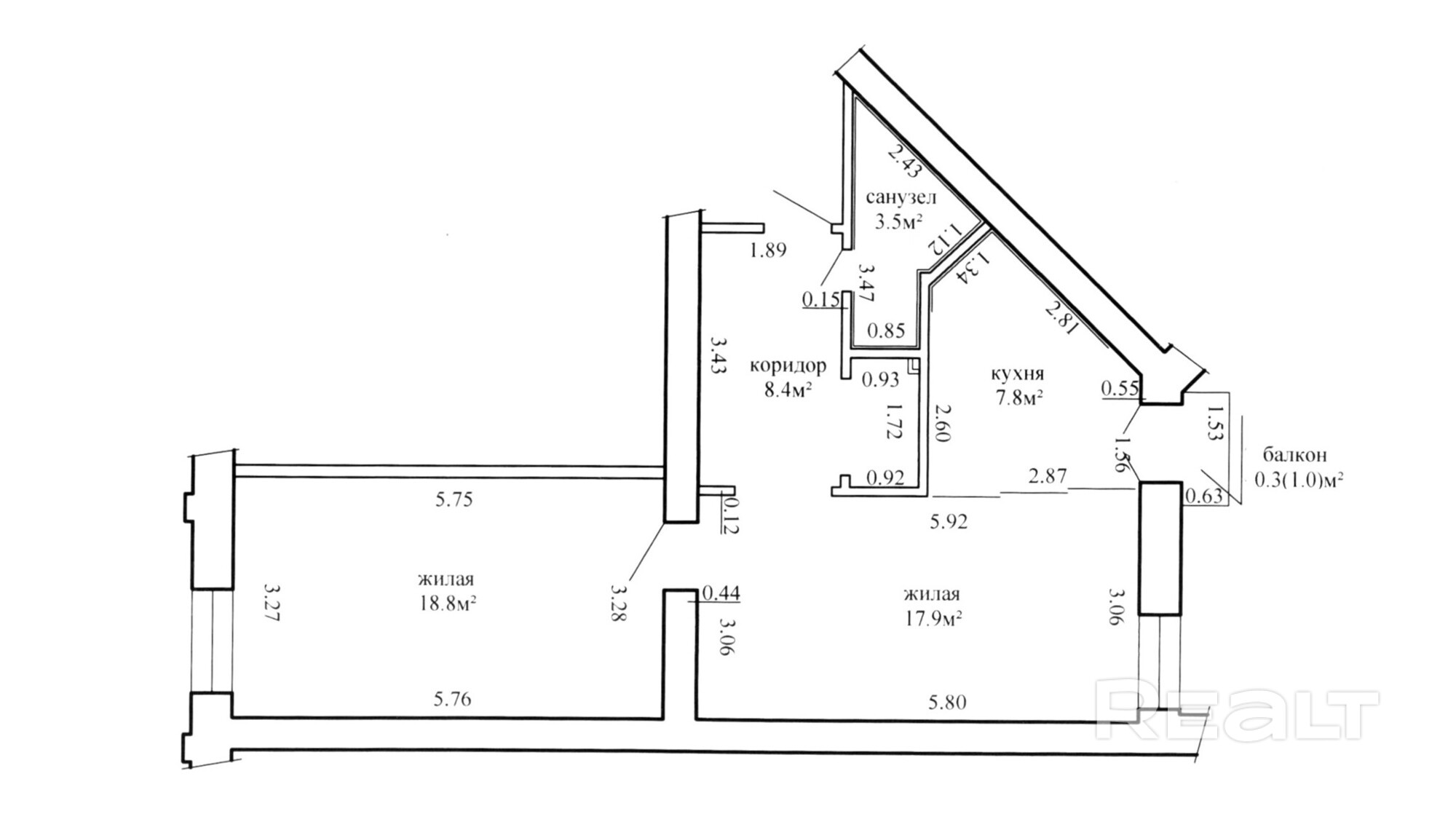
Квартира находится на последнем четвертом этаже. Общая площадь — 56 квадратов, жилая — 37. Кухня занимает 8 метров. Из-за конструкции дома планировка квартиры нестандартной формы. Потолки — трехметровые.

Ремонт в квартире выполнен в классическом стиле — паркетные полы, толстые двери из массива ольхи, на потолке сохранена лепнина. Электрическая проводка заменена на медную.

— Люстры, светильники, торшер, бра — авторской работы, сделаны мастером специально для этой квартиры. Звонок и кнопка звонка, люстра в санузле, картина в кухне — все ручной работы, — уточняется в объявлении. — Часть мебели отреставрирована, в том числе рабочее место писателя.

Realt подтвердили, что в квартире действительно жил писатель — Михаил Утевский.

После ремонта же в квартире никто не жил. Это видно в том числе по новой технике в кухне.

В квартире раздельный санузел. Установлена большая ванна и подключена стиральная машина. Есть гардеробная и балкон.

Оценили эту двушку в 175 тысяч долларов. Метр — 3 103 доллара.

Читайте также:

В Минске построят мост между Лошицей и Серебрянкой. Когда начнут?

Нашли в атмосферном районе квартиру с очень недорогим квадратом. И даже ремонт не нужен!

Не нужны ни справки, ни залог. Как купить жилье в лизинг по ставке 11%?

Читать:
Лента новостей
Опрос
Как вы считаете, покупать квартиру лучше сейчас или следует подождать?