Регистрация

Завершающая стадия строительства «Гранд Кристал». Какие квартиры можно купить по скидке?

19.01.2026 6583

Год назад в тихом месте микрорайона Лебяжий началась активная стройка нового жилого комплекса «Гранд Кристал». Сегодня на этом месте уже возведен монолитный каркас, а квартиры готовы к продаже. Наша редакция побывала на стройплощадке и узнала, как продвигается строительство, какие квартиры ждут будущих владельцев и какие акционные предложения доступны прямо сейчас.

Напомним, что многоэтажка появится по улице Мястровская, между домами № 16 и № 20. Это будет монолитный дом с тремя подъездами и переменной этажностью: 12, 16 и 25 этажей. В комплексе предусмотрены 422 квартиры, а также коммерческие помещения на первом этаже и двухэтажный паркинг на 68 мест. На данный момент завершен монолитный каркас здания, а наружные стены уже заполнены газосиликатными блоками. Внутри комплекса в большинстве квартир уже установлены межкомнатные перегородки, а работы по строительству продолжаются.

Сейчас рабочие переходят к следующему этапу — утеплению лоджий. Это напрямую влияет на будущий комфорт: тепло, тишина и энергоэффективность жилья.

Темпы строительства выглядят уверенно. Завершение всего жилого комплекса запланировано на ноябрь 2026 года, и на текущий момент все идет по плану.

Как могут выглядеть квартиры?

Пока техника и люди создают основу дома, дизайнеры уже показали, каким может быть будущий интерьер. Все квартиры сдаются с черновой отделкой — это оставляет покупателям свободу формировать пространство по собственному вкусу и задачам.

Например, студию площадью 40 м² дизайнеры предлагают оформить в стиле софт-минимализма с элементами ар-деко и джапанди. Несмотря на компактные размеры квартиры, они сделали грамонтное зонирование, поиграли с фактурам — и получили цельное и просторное пространство.

Особенности дизайна этой квартиры в теплой, сбалансированной цветовой палитре с контрастными элементами. Также можно выделить темные деревянные полы, натуральный камень, зеркальные и матовые поверхности, кухню-нишу с оригинальными деталями, обеденную группу с футуристической люстрой, гостиную с крупным диваном и акцентной стеной из полированной стали.

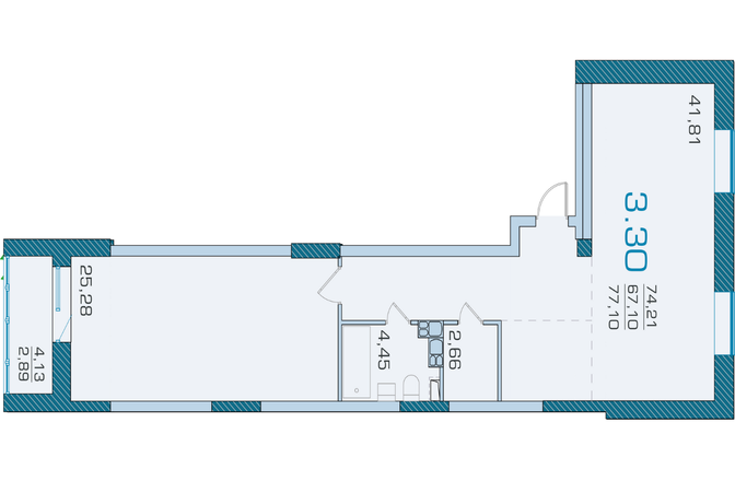
В более просторном формате — евро-трехкомнатная квартира площадью 77 квадрата и окнами на 2 стороны  — дизайнеры сделали ставку на баланс материалов и геометрии.

Холод мрамора гармонирует с теплыми текстурами кожи, а хромированные акценты добавляют современности. В центре — кухня-гостиная с минимальным визуальным шумом и гладкой, «чистой» отделкой. Обеденная группа здесь выглядит как арт-объект, объединяющий пространство. Спальня, напротив, решена максимально спокойно — мягкие оттенки, натуральные материалы, ощущение приватности и тишины. Квадрат в такой квартире начинается от 5 582 BYN.

Акционное предложение

На данные планировочные решения сейчас действует скидка до 320 рублей за квадратный метр. Для рынка новостроек это заметное предложение, которое делает покупку финансово выгодной и при этом эстетически привлекательной.

Доступная программа кредитования

В ЖК «Гранд Кристал» запущена партнерская программа кредитования Белинвестбанк — «Недвижимость от партнёра». Она рассчитана на покупателей, которые хотят зафиксировать выгодную цену и войти в сделку без серьёзной финансовой нагрузки на старте.

Основные условия программы:

  • Первый взнос от 10% — возможность начать покупку жилья без значительных накоплений;
  • Льготная ставка — 7,34% годовых действует в первые 12 месяцев;
  • С 13-го месяца ставка составит 16,5% годовых;
  • Отсрочка погашения основного долга;
  • Дифференцированный график погашения;
  • Досрочное погашение без штрафов и комиссий;
  • Срок кредитования — до 20 лет.
  • Стоимость квадратного метра при привлечении кредитных средств по партнёрской программе рассчитывается индивидуально.

Дополнительную информацию о партнерской программе можно узнать на сайте у застройщика.

С выбором квартиры вам помогут специалисты ЖК: +375 (44) 745−37−64. Также вы можете оставить свои контактные данные для связи и обсуждения деталей.

Заинтересовало предложение в ЖК «Гранд Кристал»? Оставьте свой номер телефона — и мы вам перезвоним

Нажимая кнопку «Отправить заявку», вы понимаете, что указанные в заявке персональные данные будут предоставлены ООО «РиэлтБай» (УНП 191 179 355) для их обработки на основании абз.15 ст. 6 Закона Республики Беларусь № 99-З «О защите персональных данных» с целью заключения и исполнения договора.

Читать:
Лента новостей
Опрос
Как вы считаете, покупать квартиру лучше сейчас или следует подождать?