Регистрация

А про такой элитный дом из 2000-х знали? Вот сколько тут сейчас стоят квартиры

26.12.2025 9480

Сегодня мы решили вспомнить про элитный дом из поздних «нулевых». Эта многоэтажка, построенная по индивидуальному проекту, получила все, о чем тогда мечтал каждый дольщик — закрытый двор, подземный паркинг, высокие потолки, большие метражи и вид на площадь перед Дворцом Железнодорожников. Несмотря на то, что дому уже почти 20 лет, квартиры тут по-прежнему стоят немало. Рассказываем.

Этот дом появился на пустыре напротив Дворца Железнодорожников в 2008 году. Монолитно-каркасную многоэтажку на улице Воронянского возводил застройщик «БМЕ-экспорт» (его правопреемником является компания «Инфореалт», которая строит жилой комплекс «Фарфоровый»).

Дом повышенной комфортности имеет переменную этажность (от 8 до 10 уровней), 3 подъезда и 87 квартир. На первом этаже дома работают различные магазины. Тут открыты «Мила», «Три цены», Оптика», секонд-хэнд и пункт выдачи маркетплейса.

Несмотря на то, что в те годы некоторые застройщики уже начинали предлагать дольщикам малогабаритные студии, в доме рядом с улицей Чкалова сделали ставку на большие квартиры. В итоге, дом нельзя назвать густонаселенным — на этажах тут расположено по 3−4 квартиры. Как следует из объявлений, у жильцов нет проблем с парковкой и кладовками — места хватает всем.

Большим плюсом дома является закрытая дворовая территория со шлагбаумом и постом охраны. Дополнительно имеются консьерж и видеонаблюдение. Управляет общим имуществом товарищество собственников.

Двор с детской площадкой у дома — небольшой, но зеленый и благоустроенный. Также тут есть собственный подземный паркинг на 68 машино-мест.

Отдельно отметим удачное расположение. Многоэтажка разместилась недалеко от центра, в микрорайоне с развитой инфраструктурой и большим количеством общественного транспорта. В шаговой доступности находятся детские сады, школы, магазины, спортивные и медицинские учреждения. За 5−7 минут можно добраться до станции метро «Институт Культуры» или станции «Ковальская Слобода».

Что тут продается?

Сейчас на продажу в доме выставлены три квартиры.

Самый «недорогой» вариант — это однокомнатная квартира без отделки, но с машино-местом в подземном паркинге. Жилье площадью 53 квадратных метра располагается на восьмом этаже. Высота потолков тут — 2,8 метра, есть вместительная гардеробная и панорамная лоджия. В тамбуре — всего 3 квартиры. На этаже есть кладовая для общего пользования. Продают квартиру за 130 тысяч долларов (2416 долларов — за метр).

Еще одно предложение — трехкомнатная квартира с красивым ремонтом в классическом стиле. Жилье расположено на четвертом этаже. На площади в 93 квадрата разместились 3 изолированные комнаты, большая кухня, прихожая, две лоджии и два санузла. На кухне — встроенная кухонная мебель из массива (вишня, по итальянскому проекту). Варочная панель электрическая (Zanussi), встроенный духовой шкаф, посудомоечная машина (Bosch). В гостиной установлен кондиционер Hokkaido. Предусмотрены места для хранения, в том числе вместительный шкаф-купе. На этаже есть кладовая для общего пользования. Стоимость — 248 тысяч долларов (2641 доллар — за метр).

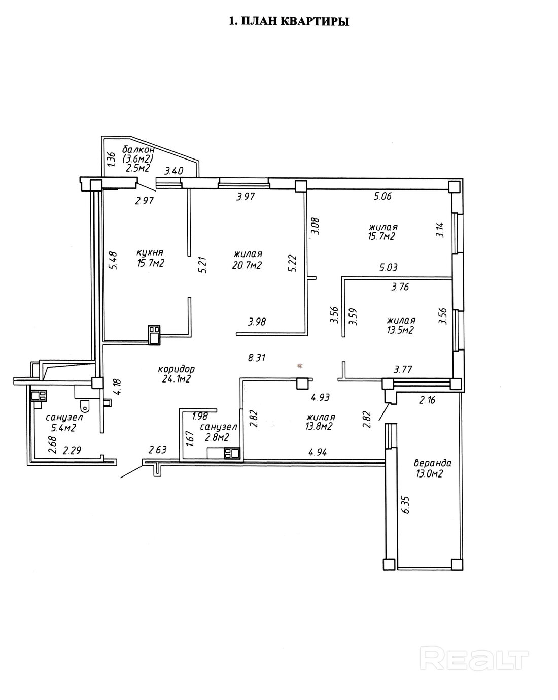
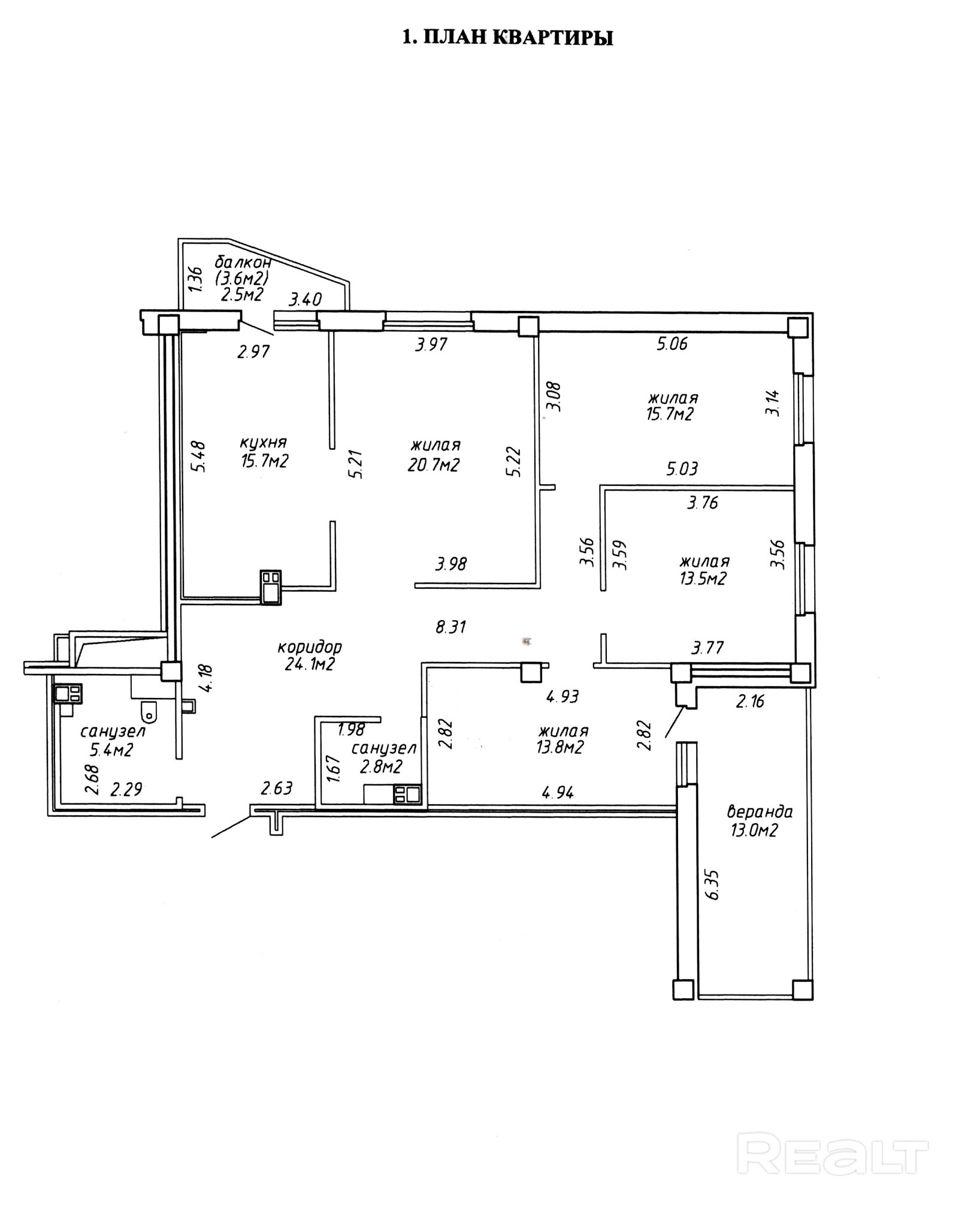
Также в продаже есть просторная трехкомнатная квартира на седьмом этаже. Площадь этого жилья составляет 127 квадратных метров. Она состоит из трех раздельных комнат и кухни-гостиной. Также в квартире предусмотрены два санузла, балкон и застекленная терраса. Новым жильцам останется вся встроенная мебель и встроенная техника. Стоимость квартиры — 250 тысяч долларов (1965 долларов — за метр).

Читайте также:

Показываем интересный клубный ЖК из 2010-х. Вот какие квартиры тут продаются

Эту новостройку для очередников в тихом уголке Минска только что сдали. Но тут уже продают квартиры с отделкой

«Очень шумно от детей во дворах». Как живется в Брилевичах возле метро «Малиновка»

Читать:
Лента новостей
Опрос
Как вы считаете, покупать квартиру лучше сейчас или следует подождать?