Регистрация

60 тысяч долларов за квартиру. Показываем самые бюджетные однушки Минска

05.12.2025 9104

В сегодняшней подборке можно найти бюджетную однокомнатную квартиру в Минске. Эти варианты располагаются в трех районах города и большинство рядом со станциями метро. Конечно, однушки нуждаются в обновлении. Показываем, как они выглядят и сколько стоят. Напоминаем, все квартиры на Realt можно купить в лизинг (бесплатная консультация тут).

Улица Пуховичская (Октябрьский район)

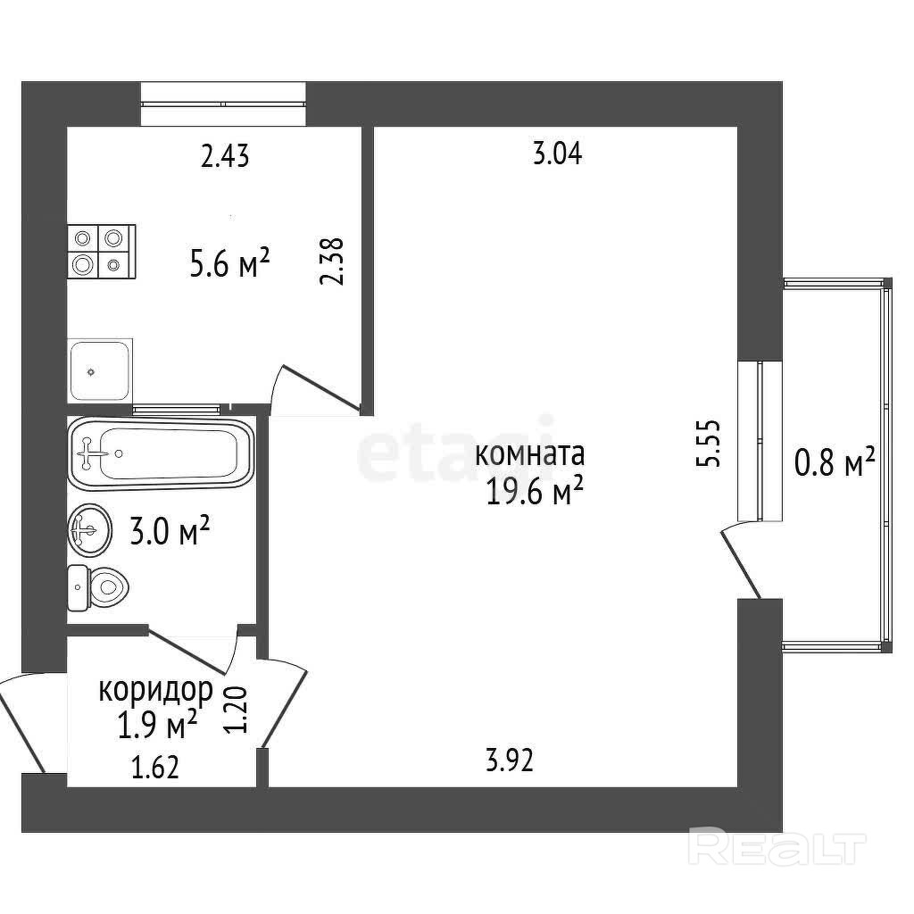
На четвертом этаже пятиэтажки на Пуховичской, 19 продается однушка в 30,9 м² с кухней в 5,6 метра. Дом построили в 1966 году, а в 2021-м в нем провели капремонт.

Квартира нуждается в ремонте. На полу тут лежат доски, а сверху — линолеум, санузлы облицованы плиткой. В окнах стоят стеклопакеты, а из комнаты можно выйти на балкон. Жилье практически освобождено от мебели.

Санузел тут совмещенный. За квартирой закреплено подвальное помещение.

Дом стоит во дворах, поэтому шум от дороги доноситься не будет. Поблизости есть остановки транспорта. Всего в 10 минутах ходьбы располагается станция метро «Неморшанский сад».

Квартиру оценили в 60 тысяч долларов, а метр получился — 1 942 доллара.

Улица Кабушкина (Заводской район)

Эту квартиру нашли в пятиэтажном доме на Кабушкина, 84. Здание возвели в 1970-м, а обновили в 2020 году. Однушка продается на четвертом этаже. Ее площадь — 20,4 м², а кухня — 5,1 м².

Квартира требует капитального обновления. Тут лежат доски на полу, стоят старые окна. Из комнаты имеется выход на балкон.

Санузел — совмещенный.

Около дома есть большой торговый центр, а до станции метро «Автозаводская» можно дойти пешком или подъехать несколько остановок на транспорте.

Цена квартиры — 59 тысяч долларов, а вот квадратный метр составляет 2 892 доллара.

Улица Райниса (Заводской район)

На Райниса, 19 стоит пятиэтажный дом 1965 года постройки. В 2020-м он прошел капремонт. Здесь на втором этаже выставлена на продажу однокомнатная квартира площадью 31,3 м². На кухню выделено 5,8 квадрата.

Квартира требует некоторых косметических вмешательств. А так, на полу тут лежат плитка и деревянное покрытие, в окнах — стеклопакеты. И комнаты есть выход на застекленный балкон.

Санузел совмещен с ванной.

Около дома находится парк имени Чингиза Айтматова, где протекает Слепянская водная система. С другой стороны, в 10 минутах ходьбы – ТРЦ Prizma и станция метро «Партизанская».

Стоимость квартиры составляет 60 тысяч долларов. Цена метра — 1 917 долларов.

Улица Голодеда (Заводской район)

На Голодеда, 11/2 в 1969 году прописался пятиэтажный дом. На первом этаже выставлена на продажу квартира в 32,6 м². Площадь кухни — 6,2 метра.

Эта квартира также нуждается в ремонте. На полу лежат плитка и ламинат, в окнах стоят деревянные рамы. В коридоре есть ниша под шкаф. Балкона тут нет.

Санузел — раздельный.

Дом стоит недалеко от парка Красная Слобода и Чижовского водохранилища. На транспорте можно быстро доехать до метро.

За жилье нужно отдать 60 тысяч долларов. Один квадратный метр выйдет в 1 840 долларов.

Улица Ольшевского (Фрунзенский район)

Последняя квартира находится тоже на первом этаже пятиэтажки на Ольшевского, 37/1. Дом построили в 1966 году. Капремонт прошел в 2022-м. На однушку отведен 31 квадратный метр. Из этой площади 6,3 м² — кухня.

Квартира — угловая, в комнате есть два окна. Старую отделку частично демонтировали. С гарнитуром и техникой осталась только кухня. На полу лежат доски, в окнах стоят стеклопакеты.

Санузел в однушке идет совмещенный.

Дом расположен в тихом зеленом дворе. Станция метро «Пушкинская» в 10 минутах ходьбы.

Стоит квартира 59 900 долларов. Получается, один квадрат обойдется в 1 932 доллара.

Читайте также:

Участок под строительство ЖК в Дзержинске неожиданно сняли с торгов. Что случилось?

В хрущевке, но с ремонтом и адекватным ценником. Нашли двушку около популярного района Минска

Читать:
Лента новостей
Опрос
Как вы считаете, покупать квартиру лучше сейчас или следует подождать?