Регистрация

Новый детский сад с бассейном на Грушевке. Показываем, как он устроен

04.12.2025 4397

В конце года в ЖК «Гранд Авеню» на проспекте Дзержинского заработает новый детский сад — один из самых современных в этом районе. Мы побывали на объекте и узнали, как устроено здание, на какой стадии строительство жилых домов и какие квартиры еще можно здесь купить.

Официальное открытие детского сада № 591, построенного в составе жилого комплекса «Гранд Авеню», назначено на 12 декабря. Это первый социальный объект в проекте компании-застройщика «Датч Стар». Здание уже полностью готово к приему детей: расставлена мебель, завезено оборудование, благоустроена территория.

Чем удивит новый детский сад? 

Садик рассчитан на 230 мест, что позволит разгрузить существующие учреждения в Московском районе. Главная особенность — собственная оздоровительная инфраструктура, которая редкость для городских садов.

В детском саду есть деление по возрастам: на первом этаже будут заниматься самые маленькие, на втором и третьем — дети среднего и старшего дошкольного возраста. Всего организовано 13 групп по 15-20 человек. Такой формат позволит воспитателям уделять больше внимания каждому ребенку. Для каждой группы — отдельный блок с игровой, спальней, буфетной и туалетной комнатами.

- Мы проектировали это здание как пространство для развития и укрепления здоровья детей, — комментирует представитель застройщика. — Поэтому здесь появились бассейн для занятий плаванием и физиотерапевтический кабинет, где можно проводить профилактические процедуры.

А что с жильем? Строительство на финишной прямой

Пока детский сад готовится к открытию, строительство самого жилого комплекса вышло на финальную стадию. Жилой комплекс «Гранд Авеню» — это четыре 20-этажных дома, объединенных общим стилобатом с коммерческими помещениями и подземным паркингом на 277 машино-мест.

- Работы идут строго по графику, ведется монтаж инженерных систем, остекление, отделка фасадов и общественных зон, — отмечают в компании.

Какие квартиры доступны?

Несмотря на то, что комплекс сдается в сентябре 2026 года, в домах №3 и №4 осталось всего несколько интересных лотов.

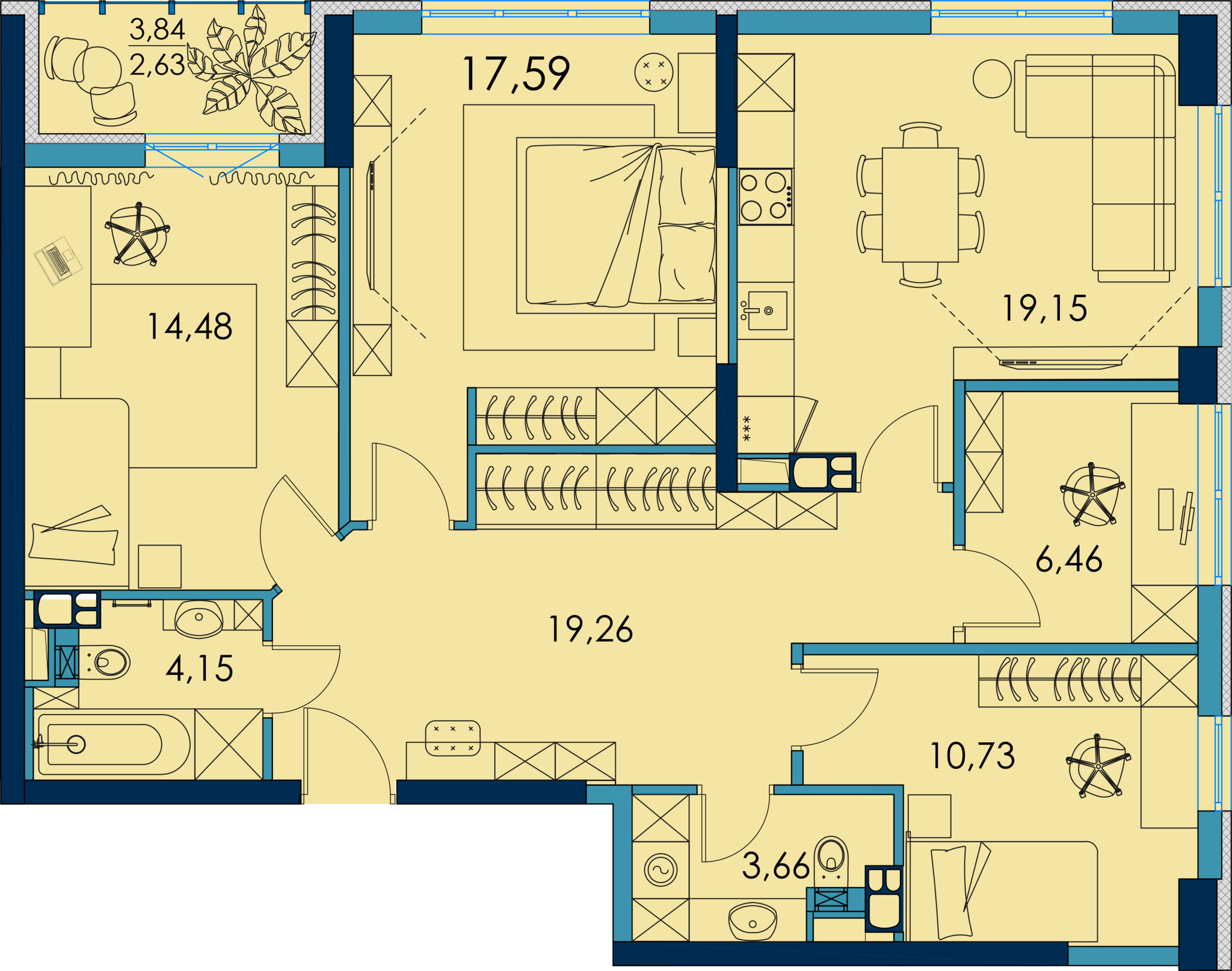
Особый интерес для семей представляют трехкомнатные квартиры площадью 98-101 кв. м. Их планировочные решения можно назвать ключевым преимуществом.

- В этих «трешках» свободная планировка, где можно реализовать разные сценарии, — объясняет менеджер по продажам. — Благодаря отсутствию несущих стен внутри квартиры, при желании здесь можно организовать и четыре изолированные комнаты. Для семей с одним или двумя детьми это идеальный вариант, особенно с учетом, что детский сад будет прямо во дворе.

Варианты перепланировок представлены ниже.

Покупателям таких квартир застройщик предлагает дополнительный бонус — скидку до 30% на машино-место в подземном паркинге.

Помимо «трешек», в продаже также осталось несколько компактных двухкомнатных квартир с французскими окнами. Во всех квартирах выполнена черновая отделка, высота потолков — 2,7 м, предусмотрены панорамные лоджии.

Условия покупки

Покупатели могут воспользоваться программой банка-партнера «Белинвестбанк» без увеличения стоимости: 

  • фиксированная цена в BYN;
  • первый взнос — от 10%;
  • ставка на первый год — от 7,34%;
  • срок кредитования — до 20 лет.

Открытие детского сада в ЖК «Гранд Авеню» — серьезный шаг в развитии инфраструктуры всего района. Для будущих жителей, особенно семей с детьми, это весомый аргумент при выборе жилья. Строительство близко к завершению, а выбор квартир, хотя и ограничен, еще позволяет найти интересный вариант.

Офис продаж «Гранд Авеню» по адресу: г. Минск, пр. Дзержинского, 19.

Контактный номер для связи: +375 29 387−60−21.

Также вы можете заполнить форму ниже, и с вами свяжется специалист.

Хочу купить квартиру в ЖК «Гранд Авеню»

Нажимая кнопку «Отправить заявку», вы понимаете, что указанные в заявке персональные данные будут предоставлены ООО «РиэлтБай» (УНП 191 179 355) для их обработки на основании абз.15 ст. 6 Закона Республики Беларусь № 99-З «О защите персональных данных» с целью заключения и исполнения договора.

Читать:
Лента новостей
Опрос
Как вы считаете, покупать квартиру лучше сейчас или следует подождать?