Регистрация

797 долларов за квадрат, 10 минут от Минска. Смотрим хорошую двухуровневую квартиру

26.11.2025 29862

В агрогородке в 15 километрах от Минска продается квартира под чистовую отделку, стоимость квадратного метра — всего 797 долларов. И это редкое предложение не только по стоимости, но и по планировке: 4 спальни, 3 санузла, гостиная-кухня и гардеробная распределены в двух уровнях. Изучили этот вариант подробно.

Агрогородок называется Слобода — та самая, что находится у Кургана Славы и трассы в аэропорт. Расстояние до Минска приемлемое — 15 километров до метро в Уручье. Тут хорошая инфраструктура — школа и детский сад, магазины, аптеки, кафе, рынок, Wildberries, амбулатория, фитнес-клуб, парикмахерская, музыкальная школа. Остановка общественного транспорта в 3 минутах от дома. Маршрутки и автобусы до станции метро «Уручье» каждые 10−15 минут.

Дом построен в 2017 году, это каркасно-блочная конструкция с керамзитобетонным заполнение проёмов. Квартира расположена на 7 и 8 этажах, 8 этажного дома, соседи только с одной стороны.

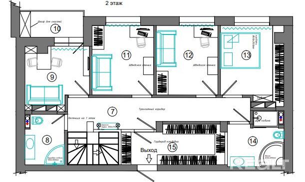
Общая площадь — 124,1 м2. Внутри уже выполнена функциональная перепланировка.

На нижнем этаже находятся просторная кухня-гостиная, отдельный санузел, облицованный современной плиткой.

На второй уровень ведет внутриквартирная лестница.

На верхнем этаже — приватная часть квартиры. Там находятся 4 жилые комнаты, 2 санузла и огромная гардеробная.

Продается квартира под чистовую отделку: сделаны стяжка пола, стены оштукатурены, разведены электричество и инженерные коммуникации.

В квартире индивидуальное газовое отопление — вы сами решаете, когда включать отопление и горячую воду.

Стоит же эта двухуровневая квартира в Слободе 98 900 долларов (797 долларов за квадрат).

Читать:
Лента новостей