Снесут офисы и автостоянку. Возле парка Дружбы Народов построят новое здание, жителей зовут на обсуждение
В Советском районе Минска скоро начнется общественное обсуждение строительства нового здания. Рядом с парком Дружбы Народов и рестораном «Друзья» хотят возвести диспетчерскую станцию. Связано это с необходимостью продления дороги в Северный Берег и переездом сюда действующей станции. Запланирован тут и точечный снос, который коснется автостоянки и коммерческих объектов. Рассказываем подробности.

- Новую диспетчерскую станцию возведут на месте автостоянки и старых построек.
Принять участие в общественном обсуждении проекта «Возведение здания специализированного транспорта в районе улиц Кульман, Кропоткина и Карастояновой в Минске» минчан приглашает Администрация Советского района. Заказчиком проекта выступает государственное предприятие «Гордорстрой».
Речь идет о небольшом участке рядом с парком Дружбы Народов — напротив бассейна «Орленок». По планам градостроителей в будущем, из-за продления улицы Карастояновой в Северный Берег, именно сюда должна переехать диспетчерская станция. Интересно, что конечная остановка автобусов и троллейбусов тут раньше уже была (она просуществовала вплоть до 2000-х), но потом ее перенесли на новое место.
Что изменится?
Согласно плану градостроителей, давно недействующая диспетчерская станция, чьи постройки сейчас занимает ветеринарная клиника, кофейня и другие бизнесы, пойдет под снос. Вместо нее рядом с рестораном «Друзья» построят новую автостанцию.
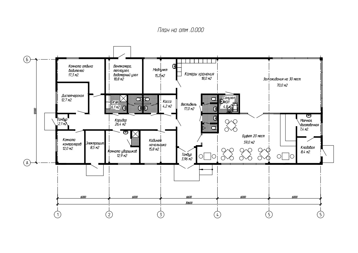
Новое здание автостанции будет прямоугольной формы. Внутри запроектированы зал ожидания, камера хранения, комната отдыха водителей, буфет, медпункт и другие помещения.
Проектной документацией также предусмотрена реконструкция разворотного кольца, примыкающих дорог и инженерной инфраструктуры в районе улиц Кульман, Кропоткина и Карастояновой.
Согласно плану исчезнет и большая автомобильная стоянка. Ее место займет разворотное кольцо для общественного транспорта.
Общественное обсуждение проекта будет проходить с 17 ноября по 1 декабря. Внимательно рассмотреть планы можно на сайте администрации Советского района, а также в фойе этого учреждения в период проведения общественного обсуждения. Замечания и предложения с пометкой «общественное обсуждение» принимают по адресу: 220 013, Минск, ул. Дорошевича, 8, (либо на электронный адрес sov.stroi@minsk.gov.by) с 17 ноября по 1 декабря. Итоги общественного обсуждения подведут на заседании архитектурно-градостроительного Совета при главном архитекторе города Минска.
Читайте также:
Уберут склады и автоцентры, построят 800 квартир. Окраины Минска ждут перемены
Рядом с проспектом Независимости, на месте недостроенного ТЦ, будут жилые дома. Рассказываем
Уберут усадьбы и автостоянки, построят высотки и развязку. Чижовку ожидают перемены