Регистрация

Об этом доме с непростой историей мало кто знает. Поинтересовались, почем тут продают квартиры

05.11.2025 14477

Трехэтажный дом из красного кирпича начали строить еще в 2010-х годах. Компактное здание на 21 квартиру выросло посреди частного сектора в районе улицы Есенина. Из-за проблем с застройщиком (тут были и суды, и обманутые дольщики) возведение малоэтажки растянулось на много лет. К счастью, все эти проблемы остались позади: в этом году дом, наконец, официально сдали в эксплуатацию. Несколько новых квартир в клубном доме сейчас продаются. Рассказываем, по какой цене.

Находится дом на улице Курганной, 35. Это — прямо напротив того самого «Английского квартала» от МАПИД. Рядом — частный сектор (остатки бывшей деревни Дворище) и парк Павлова, а до станции метро «Малиновка» при желании можно дойти пешком за 25 минут.

Дом в частном секторе на Курганной начали строить более 10 лет назад. Тогда группа коммерсантов выкупила стоящие тут деревенские хаты и решила посадить на их месте малоэтажный дом на 21 квартиру. Отметим, что в «нулевых» такая практика была распространенной. В те годы во многих уголках частного сектора Минска вырастали огромные коттеджи, поделенные на 5, 10 и более квартир. Эти строения удавалось зарегистрировать, а недвижимость продать.

Клубный дом на Курганной рос довольно бодро, у квартир появились дольщики, однако новоселья не случилось. В 2013-м году на массовое строительство «многоквартирников» под видом частных домов обратила внимание Генпрокуратура. Появились вопросы и к застройщикам трехэтажного дома в районе бывшей деревни Дворище. В итоге, бизнесменов обвинили в незаконной предпринимательской деятельности и судили.

Что касается малоэтажки, то к ее строительству вернулись в 2019 году, когда вышло распоряжение Президента № 257 «О строительстве жилого дома в целях защиты прав физических и юридических лиц, участвовавших в финансировании строительства». Курировал работы ЖСПК «Курганная, 35».

Завершить все работы и сдать трехэтажное здание в эксплуатацию удалось только в этом году. Сейчас дом выглядит полностью готовым. Квартиры в здании имеют высокие потолки, индивидуальное отопление (два электросчетчика) и систему управления «Умный дом». В цокольном помещении для каждой квартиры предусмотрены отапливаемые кладовые. Рядом с домом появились тротуары и парковка для автомобилей.

По словам риэлтеров, на данный момент цены в малоэтажке на Курганной — одни из самых низких по Минску, если говорить о подобных домах клубного типа. Косвенно это подтверждает и динамика количества объявлений. Если пару дней назад в доме продавалось 5 квартир, то сейчас их осталось только 3.

Сколько тут стоит жилье?

Сейчас новых жильцов ищут 3 квартиры — все они предлагаются без отделки.

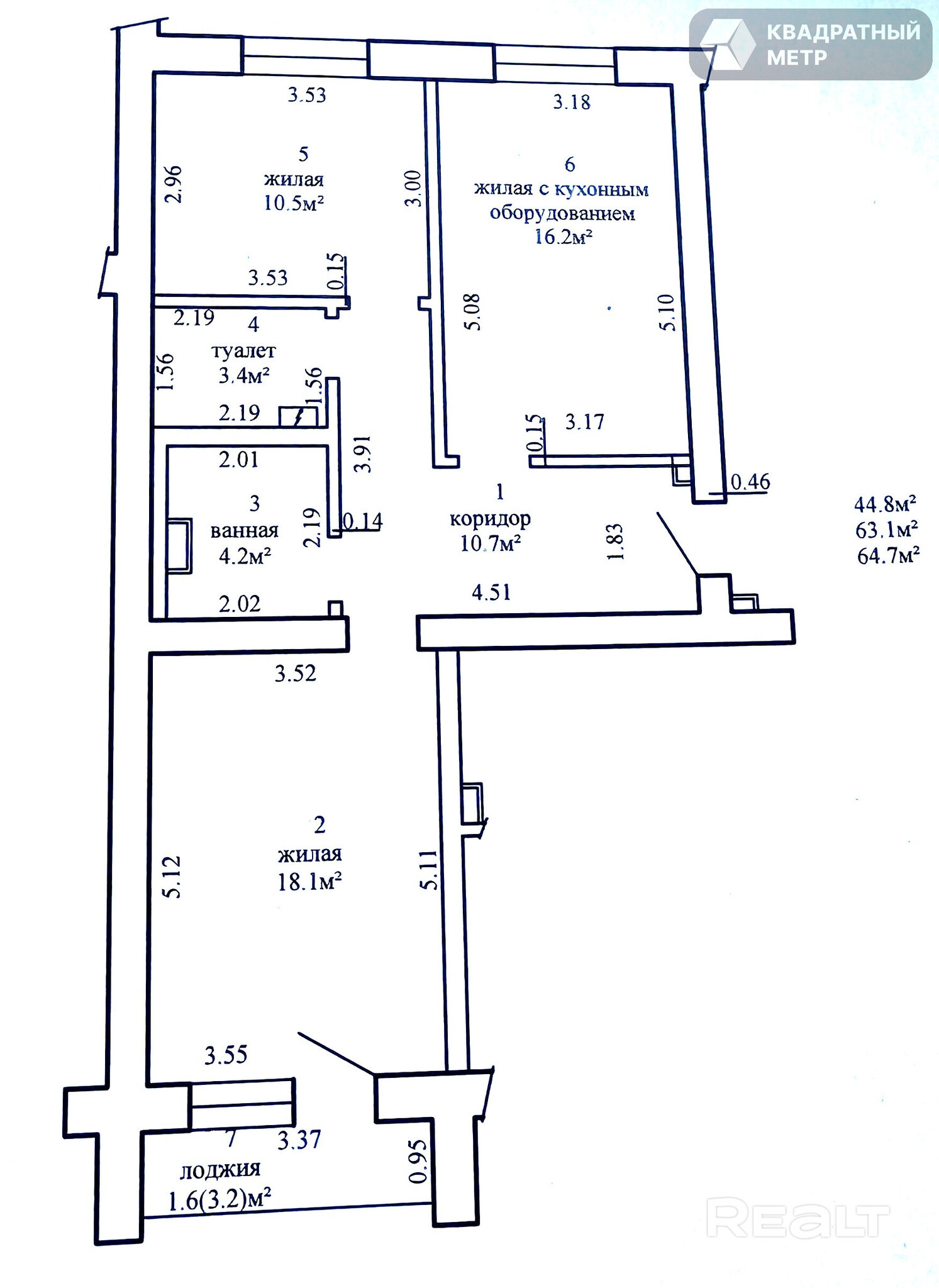
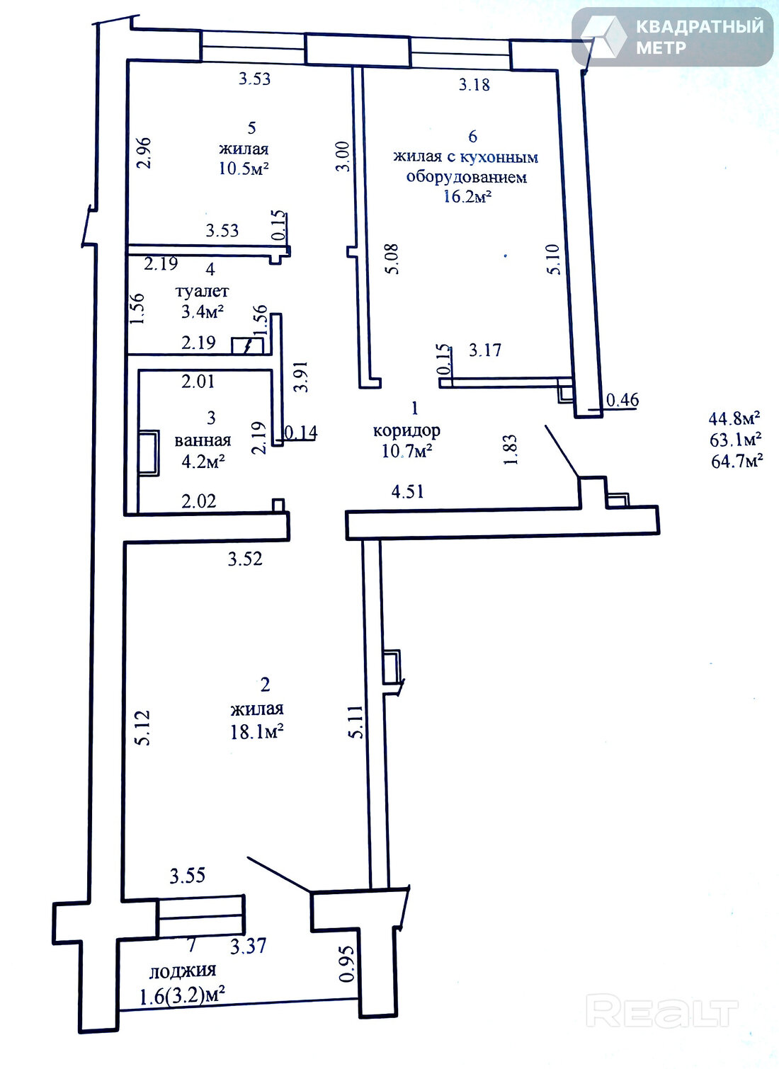
Самое экономичное предложение — трехкомнатная квартира на третьем этаже. Общая площадь этого жилья составляет 66 квадратных метров. Квартира состоит из двух жилых комнат и просторной кухни-гостиной. В евротрешке уже разведена электрика, пол выровнен (залита стяжка), установлен бойлер, унитаз и электрический котел. В жилье — высокие потолки и две лоджии. В самом доме реализована система умный дом, индивидуальное отопление. Стоимость — 115 тысяч долларов (1740 долларов — за метр).

Также в продаже есть аналогичная трешка на первом этаже. Площадь этой квартиры составляет 64 квадратных метра. Жилье также продается без отделки, но со всеми межкомнатными перегородками, унитазом, розетками. Стоимость — 124 тысячи долларов (1918 долларов — за метр).

Еще один вариант — 70-метровая евротрешка, расположенная на третьем этаже. В квартире — дистанционное управление отоплением, толстые стены, отличная шумоизоляция. За жильем закреплено подвальное помещение и машиноместо. В объявлении отмечается тихий и спокойный район, развитая инфраструктура, гипермаркеты и супермаркеты — в шаговой доступности. Продают квартиру за 129 тысяч долларов (1830 долларов — за метр).

Выбираете квартиру в новостройке? Тогда вам поможет наш обзор по всем новостройкам Минска и пригорода. Мы собрали в одном месте всю необходимую информацию: от наличия квартир до условий кредитования. А сейчас обзор стал еще информативнее: мы добавили цены реальных сделок по новостройкам от собственников. Эта информация сэкономит вам время и поможет сделать максимально рациональный выбор!

Читайте также:

Помните долгострой на берегу Комсомольского озера? Посмотрели, как его переделывают в элитный жилой дом

Что за яркий дом вырос рядом с Парком высоких технологий? Рассказываем подробности

В том самом экспериментальном доме в Новинках появились квартиры на продажу. По какой цене?

Читать:
Лента новостей
Опрос
Как вы считаете, покупать квартиру лучше сейчас или следует подождать?