Регистрация

«Здесь давали квартиры известным людям». Как живется в модернистском доме возле Раковского предместья

10.11.2025 18068

Ольга Корнеенко, фото: Дарья Бурякина

Недалеко от Раковского предместья, которое благодаря концентрации творческих мастерских в свое время получило название Минский Монмартр, находится дом, который также объединил творческих личностей. Квартиры в нем выделялись заслуженным и народным артистам Беларуси. Realt поговорил с местными жителями и узнал, влияло ли на них соседство с людьми искусства, и как с течением времени изменилась жизнь здесь.

Этот дом на Романовской Слободе в стиле модернизма второй волны спроектирован государственным проектным институтом «Минскпроект» под руководством архитектора Ситникова. Его возведение началось в 1968-м, а спустя два года в семиэтажку начали заселяться первые жильцы.

Как отмечают местные жители, изначально квартиры в нем выделялись артистам театра. Как напоминание об этом на фасаде дома сейчас установлена мемориальная доска. Она посвящена народному артисту БССР Юрию Владимировичу Сидорову, который проживал здесь с 1970-го по 2004-й. Есть здесь и еще одна памятная доска, посвященная Герою Советского Союза, участнику Великой Отечественной войны Михаилу Максимовичу Глебову. Он жил в этом доме с 1970-го по 2003-й.

Изначально на первом этаже этого дома размещались Центральная сберегательная касса, парикмахерская, фотоателье и «Союзпечать». Сейчас первый этаж дома также используется в коммерческих целях. Здесь можно увидеть отделение «Беларусбанка», салон красоты Mon Platin, магазин «Медок» и магазин аксессуаров для телефонов.

«Раньше люди были более интеллигентные, а теперь много приезжих, уже совсем не то»

Сразу после сдачи семиэтажки в эксплуатацию в него заселилась Валентина Георгиевна. Вспоминает, что в то время квартиру получали ее родители, сейчас их уже нет в живых, а жилье так и осталось домом для нее и ее детей.

— Я тогда была еще слишком молодая и сразу же влюбилась в это место. Центр, все рядом, до проспекта два шага. Теперь мне туда уже не дойти своими ногами. Сижу дома, а если куда-то надо, то зять с дочкой везет на машине. Но стараются провезти так, чтобы еще что-то в городе посмотрела. Раньше любила много гулять. Помню, мы с родителями, когда я маленькая была, даже ходили смотреть, как тут метро строилось. Все было интересно. Что касается дома, то он вроде не какой-то особенный, но в свое время жилье здесь давали известным людям. Как напоминание о них у нас на фасаде установлены памятные плиты. Могу сказать, что за все время я не особо замечала присутствие каких-то артистов рядом, вылетела из дома и побежала на работу. У всех же своя жизнь, особо на этом не зацикливаешься. А со временем контингент и вовсе сильно поменялся. Раньше люди были более интеллигентные, а теперь много приезжих, уже совсем не то, — обращает внимание местная жительница.

Женщина вспоминает, что в первые годы жизни на Романовской Слободе местные были полны энтузиазма, хотели как-то облагородить двор, в котором они живут. Так, собирались соседями, сажали деревья, кустарники, стремились, чтобы вокруг было чисто и красиво. «Сейчас я уже толком и соседей своих не знаю. Только тех, кто со мной на одной площадке живет, но мы и много лет вместе. Я вообще человек-интроверт, не стремлюсь к новым знакомствам», — отмечает она.

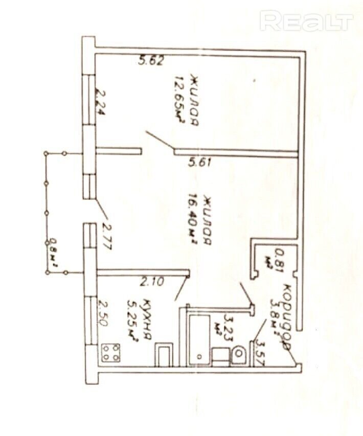
Говоря о доме, Валентина Георгиевна подчеркивает, что квартиры в нем с хорошей планировкой — в трехкомнатной, где она живет, есть два балкона, которые выходят на разные стороны. Также уложен паркет.

— Надо сказать, что, когда открываешь балкон со стороны Романовской Слободы, становится очень шумно и пыльно в квартире. Это и понятно, здесь активное движение, постоянный поток машин. И поначалу мне было сложно к этому привыкнуть. Со временем уже адаптировалась и особо на это внимание не обращаю. Еще замечу, что дом сам по себе требует ремонта. Это даже визуально по фасаду видно. Внутри подъезды тоже старые, — рассказывает местная жительница.

Несмотря на какие-то минусы, она уезжать отсюда не хочет. И за все время жизни здесь таких мыслей не возникало. «Дочка однажды спросила, может, продать эту квартиру и переехать в какую-то новостройку. Но я сказала: „Боже упаси, продавай, когда меня не станет“. Вообще не представляю себя в другом месте. Привыкла и к дому, и к району. Я знаю, что здесь на своем месте», — заметила Валентина Георгиевна.

«Говорят, в свое время тут жило семь народных и пять заслуженных артистов»

Александр Иванович переселился в этот дом в 1991 году. После развода с супругой он оставил предыдущую квартиру и вернулся жить к родителям, которые смогли заселиться сюда, обменяв прошлое жилье на это.

— Вообще, в этом доме давали квартиры довольно известным людям. Например, тут до сих пор живет народная артистка Беларуси Наталья Викторовна Гайда и Заслуженная артистка Беларуси Алена Сидорова. Ее отец — народный артист Беларуси Юрий Сидоров также тут жил. После его смерти на доме появилась памятная доска. Говорят, в свое время тут жило семь народных и пять заслуженных артистов. С годами, конечно, многие ушли из жизни, некоторые переезжали, передавали свои квартиры детям или продавали их, — вспоминает мужчина.

Местный житель обращает внимание, что дом находится в видном месте, но нуждается в серьезном ремонте. В 1997-м его уже делали. Тогда выборочно осуществили замену газовых плит и ванн, сделали косметический ремонт. Но спустя годы визуально состояние дома все равно ухудшилось.

— Квартира, в которой я живу, находится на втором этаже. Подо мной мусоропровод и банк, поэтому в жилье достаточно холодно. Тем более, в моем возрасте, 86 лет, приходится постоянно утепляться. Еще интересная особенность — когда проектировали дом, сделали так, что на кухне нет батареи и, соответственно, отопления. Эта комната всегда очень холодная, — рассказал он.

Что касается мусоропровода, то жильцы разошлись во мнениях — некоторые выступали за то, чтобы заварить его, но большинство все же хотело оставить. В итоге к согласию пришли только в четвертом подъезде, где теперь нет мусоропровода. В остальных — он функционирует.

Есть в доме и подвалы. Как говорит местный житель, в свое время с ними тоже претерпели много проблем. «Раньше вход в них по сути не закрывался, и там часто собирались бомжи, пили алкоголь, взламывали эти подвалы и крали все, что могли. Меня лично тоже два раза так обокрали. Хорошо, что кое-что ценное — лодку резиновую — хранил дома. Управу на них долго найти не могли, но потом решили закрыть вход на замок, чтоб никто не ходил. Тем более, помещениями уже не пользовались, потому что бомжи все разломали. Так от них только и смогли избавиться», — замечает он.

Александр Иванович с трепетом относится к месту, где живет, отмечая, что это район, с которого начинался Минск. «Мысли переехать куда-то никогда не было, место историческое. Тем более, кто захочет из центра города перемещаться на окраины? Да и дом меня полностью устраивает, я уже привык находиться здесь. Менять на что-то другое, даже более новое, совсем не хочется», — подчеркивает местный житель.

«Кажется, будет сложно отсюда перебираться куда-то подальше»

Последний год в доме на Романовской Слободе живет Валерия. Сюда она переселилась к родственникам. Те переехали за город, а ей разрешили пожить, чтобы жилье не пустовало.

— Место здесь очень удобное, самый центр, можно быстро добежать до любого транспорта, метро в пяти минутах. В общем, все очень близко и удобно. Думаю, мне прям повезло, что ситуация в жизни так сложилась. Пока тетя не говорит, что нужно переезжать, и я этому рада, потому что кажется, уже будет сложно куда-то подальше перебираться, — замечает девушка.

Она рассказала, что на площадке дома всего размещено две трехкомнатных квартиры, одна двушка и одна однушка. Квартиры не особо просторные, но ей одной места предостаточно. «В принципе, меня здесь все устраивает. Соседей особо не слышу, всегда спокойно. По ощущениям тут больше живет поколение постарше. Нравится, что летом можно выйти на балкон, выпить кофе и полюбоваться на природу во дворе. Я такое очень люблю», — обращает внимание Валерия.

Отмечает она и отличную инфраструктуру рядом. «Здесь далеко ходить не надо. Прямо через дорогу продуктовый, аптека, необходимые банки, магазины с одеждой, всевозможный транспорт. Реально все, что нужно для комфортной жизни. Если бы была возможность самой приобрести квартиру в этом доме, я бы с удовольствием осталась», — отмечает девушка.

Что продается рядом?

Конкретно в этом доме на продажу не выставлено ни одна квартира. Однако в базе Realt есть варианты в рядом находящихся домах.

Например, в сталинке 1958 года постройки напротив продается трехкомнатная квартира. Дом является исторической ценностью и охраняется государством. Общая площадь трешки — 72,1 квадрата, из них жилая — 46,5 метров квадратных. В квартире произведен полный демонтаж, включая межкомнатные перегородки, а также выполнен комплексный капитальный ремонт. Стильный интерьер был разработан по проекту дизайнера, входящего в топ-10 дизайнеров Беларуси. В квартире окна выходят на две стороны, там установлены тройные стеклопакеты, которые дают возможность полностью уйти от городского шума. Также есть кондиционер. Кроме того, жилье полностью укомплектовано всей необходимой мебелью и бытовой техникой. Хотят за нее 179 тысяч долларов (2 483 доллара — за квадрат).

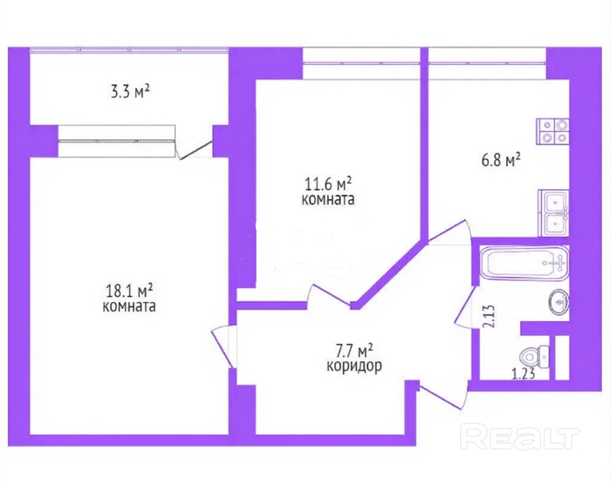
Еще одна трехкомнатная квартира предлагается по адресу Короля, 20. Ее общая площадь — 72,8 квадрата. Все комнаты в жилье просторные и раздельные, при этом окна выходят на две стороны. Есть большая лоджия с видом на двор, кладовая комната и раздельный санузел. В квартире уложен натуральный паркет, а также плитка. Сам дом, в котором она построена, — кирпичный, с хорошей звукоизоляцией. Был сдан в эксплуатацию в 1970 году. В 2022 в нем сделали капитальный ремонт. Трешка располагается на пятом из девяти этажей. Оценивается она в 129 тысяч долларов, то есть 1 772 доллара — за метр квадратный.

Предлагается и отличный вариант двухкомнатной квартиры общей площадью 49,4 квадрата. Находится она в кирпичном доме, построенном в 1969 году. В квартире интерьер сделан по индивидуальному дизайн-проекту с продуманной эргономикой. В ремонте использовался бельгийский кварцвинил и итальянская плитка. Столешница в кухне выполнена из кварцевого конгломерата. Также есть встроенная сантехника, выключатели soft touch, сценарное освещение и 3D-панели с подсветкой. Полный комплект мебели выполнен на заказ из премиальных материалов и голландских тканей. В гостиной установлен камин. Кроме того, есть видеодомофон и кондиционер. Стоимость такой двушки оценивается в 174 900 тысяч долларов (3 540 долларов — за метр квадратный).

Недалеко от Романовской Слободы, на Обойной, 10, выставлена на продажу двухкомнатная квартира, в которой сделан свежий ремонт. Здесь установлен кондиционер, есть мебель и необходимая техника. В квартире, расположенной на втором этаже четырехэтажного кирпичного дома, — светлая гостиная, компактная кухня, спальня в спокойных пастельных тонах и просторная ванная комната, отделанная современной плиткой. Общая площадь жилья — 42,41 квадрат. Просят за эту двушку 115 тысяч долларов (метр квадратный обойдется в 2 712 долларов).

Читать:
Лента новостей
Опрос
Как вы считаете, покупать квартиру лучше сейчас или следует подождать?