Регистрация

Кому сталинку с ремонтом на проспекте Независимости? Показываем эту однушку

04.11.2025 10546

На проспекте Независимости около главного здания «Беларусьфильм» продается отремонтированная однокомнатная сталинка. Тут есть мебель, хорошая техника — все, чтобы сразу заехать и жить. Показываем, как она выглядит и сколько стоит.

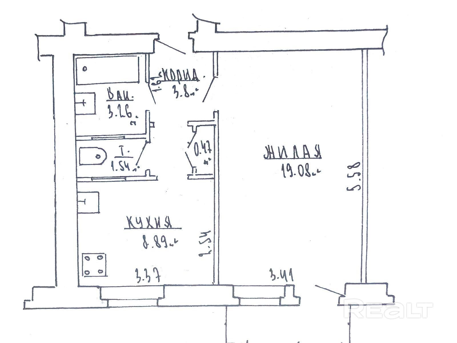
Дом на проспекте Независимости, 100 построили в четыре этажа в 1961 году. На последнем уровне сейчас продается квартира в 39 м² — однокомнатная сталинка с высокими потолками в 2,95 м и кирпичными стенами.

Кстати, эту квартиру, как и остальные квартиры на Realt, можно купить в лизинг. Получить индивидуальную консультацию от специалистов можно вот здесь.

Жилье полностью готово к проживанию. Как пишет автор объявления, тут был сделан дизайнерский ремонт. Кухня в квартире отдельная с гарнитуром и бытовой техникой: имеется встроенная индукционная варочная поверхность, духовой шкаф Bosch, холодильник, вытяжка, посудомоечная машина ELECTROLUX. На полу здесь, в прихожей и ванной уложен керамогранит с подогревом.

В жилой комнате на полу — паркетная доска. Светлый интерьер разбавляет яркая мягкая мебель.

Санузел изначально был раздельный, но пространства решили объединить. Тут стоит стиральная машина, установлена итальянская сантехника.

Из комнаты есть выход на открытый балкон. Достанется покупателю и оборудованный подвал площадью 4,5 квадрата.

Дом стоит рядом со станцией метро «Московская». В пешей доступности — парк Челюскинцев и ТРЦ Dana Mall.

Стоимость квартиры составляет 117 900 долларов. Квадратный метр — 3 023 доллара.

Читать:
Лента новостей
Опрос
Как вы считаете, покупать квартиру лучше сейчас или следует подождать?