Регистрация

Помните разноцветные таунхаусы возле МКАД от госзастройщика? Там сейчас продается один дом

16.10.2025 25471

Около четырех лет назад УКС Центрального района Минска завершил строительство большого квартала таунхаусов в микрорайоне Зацень, что рядом с МКАД. Эти яркие блокированные дома хорошо видны с кольцевой. Поначалу жилье тут предлагали всем желающим, а затем стали распределять среди очередников и тех минчан, чьи дома идут под снос. Сейчас большинство таунхаусов заселены, но один из домов собственник выставил на продажу. Смотрим, как таунхаус выглядит внутри, и рассказываем, сколько за него просят.

Строительство коттеджей в бывшей деревне Зацень началось в 2016 году. Участок был выделен госзастройщику без аукциона. Новые дома выросли на улицах Пильницкой, Лапоровичской и Банцеровской. Первоначально квартал собирались возвести за 2 года, но в итоге стройка продолжалась вплоть до конца 2021-го года. Весь квартал рассчитан примерно на 80 семей. Среди жилья — отдельные дома, блокированные коттеджи, а также разнообразные таунхаусы на 2,5 и 8 квартир.

Дома здесь строили из керамзитобетонных блоков. Площади квартир составляли от 120 до 150 квадратов. Некоторые дома сдавались с типовой отделкой, некоторые — без нее. В таунхаусах есть собственная котельная, газовое отопление, электроплиты, центральная канализация. В одних таунхаусах предусмотрены гаражи, в других — нет.

Также к каждой квартире прилагается земельный участок для обслуживания. Площадь огороженного участка варьируется от 2 до 10 соток.

На старте продаж метр в квартирах стоил 1000−1200 долларов. Часть жилья купили все желающие, а то, что осталось, распределили среди многодетных семей (для них цены были ниже). Последний ряд таунхаусов и вовсе передали городу — эти квартиры достались тем, чьи дома пошли под снос. Отметим, что школ и детских садов в квартале нет. Ближайший торговый центр − All на Долгиновском тракте.

Почем тут продается жилье?

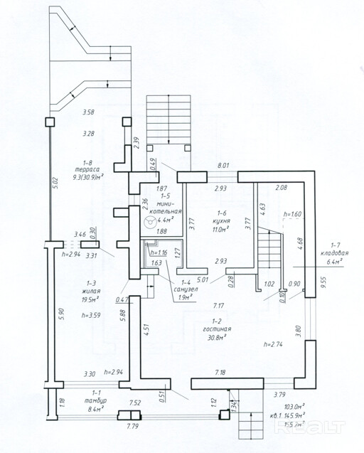
Сейчас в Зацени продается всего 1 квартира в таунхаусе. Располагается жилье на улице Пильницкой, 10. Общая площадь этого двухэтажной квартиры — 145 квадратных метров (площадь всего здания — 310 квадратов). Внутри дома полностью выполнена отделка, установлены стеклопакеты.

Квартира состоит из четырех жилых комнат. Судя по фотографиям и отделке, дом использовался под бизнес. Здесь — просторные комнаты, профессиональное кухонное оборудование. Исходя из планировки, на первом этаже можно обустроить столовую с выходом на террасу, гостиную, кухню и санузел. На втором этаже могут расположиться спальные комнаты и еще один санузел.

На участке есть техническое здание — хозблок. Дом стоит на участке 4,7 сотки.

Рядом — ухоженная улица с достойными соседями, современная спортивная площадка, детская площадка, хорошее транспортное сообщение, удобный выезд на МКАД.

Стоимость таунхауса — 299 тысяч долларов.

Читайте также:

Вместо трешки – новый дом у озера. Смотрим вариант «под ключ» в 17 км от Минска

По цене трешки. Посмотрите, какой современный дом с баней продается на Логойщине

Сауна, бассейн и стильный интерьер. Смотрим классный дом возле Заславля

Читать:
Лента новостей