Регистрация

До 100 тысяч долларов. Вот как выглядят бюджетные двушки в нестарых домах Минска

05.10.2025 7623

Собрали самые бюджетные двухкомнатные квартиры в Минске в домах не старше 25 лет. Есть варианты в Ленинском, Московском, Партизанском и Фрунзенском районах — это жилье около парков, недалеко от метро и остановок транспорта. Показываем, как они выглядят и напоминаем, что все квартиры на Realt можно купить в лизинг — бесплатная консультация тут.

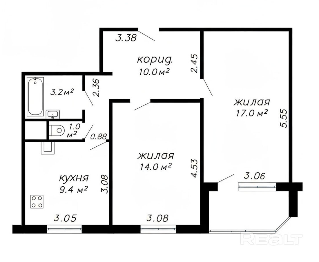
Улица Янки Лучины (Ленинский район)

На Янки Лучины, 36 в 2001 году была построена шестиэтажка. На четвертом этаже продается двушка в 55,6 м². Из них 8,8 м² приходится на кухню.

В квартире две изолированные комнаты. Она выглядит аккуратной: на полу везде лежит линолеум, на стенах — обои, в окнах стоят деревянные стеклопакеты. 

Имеется и длинный застекленный балкон.

Санузел тут раздельный.

Поблизости находятся остановки, в пешей доступности — набережная Свислочи.

Квадратный метр стоит 1 763 доллара. Жилье выставляют за 98 тысяч долларов.

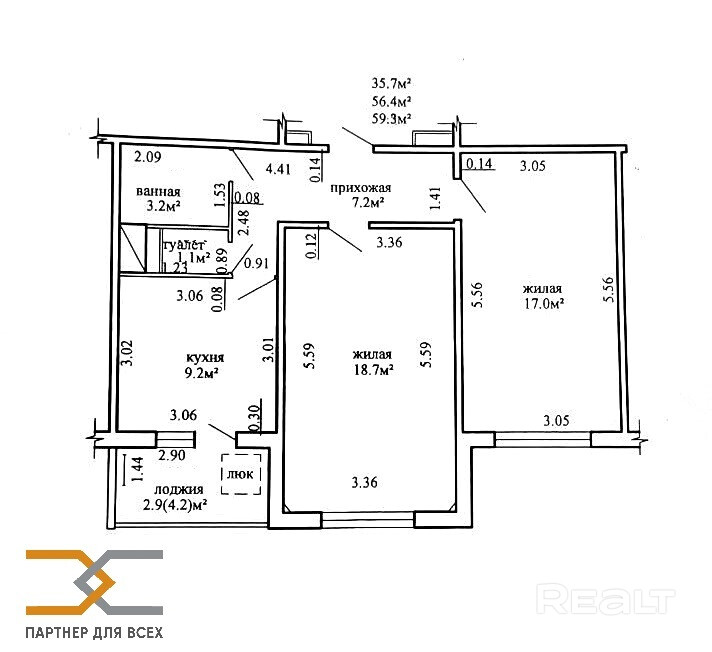
Улица Станислава Монюшко (Ленинский район)

Девятиэтажку на Станислава Монюшко, 20 возвели в 2023 году. На седьмом этаже продается двушка. Ее площадь — 59,3 м², кухня занимает 9,2 квадратного метра. 

В квартире сделан нормальный ремонт от застройщика. На полу — линолеум и плитка в санузлах, установлены стеклопакеты, застеклена и лоджия, что граничит с кухней. Стены оклеены обоями. Обе комнаты тут изолированные. В кухне висит гарнитур.

Туалет и ванная — раздельные.

Этот дом стоит чуть ближе к парку, где протекает Свислочь. Поблизости есть магазины, остановки и кофейни.

Стоимость метра составляет 1 636 долларов. Цена двушки — 97 тысяч долларов.

Выбираете квартиру в новостройке? Тогда вам поможет наш обзор по всем новостройкам Минска и пригорода. Мы собрали в одном месте и понятном виде, всю необходимую информацию: от наличия квартир по площадям и ценам, до условий кредитования. А сейчас он стал еще информативнее и полезнее: мы добавили цены реальных сделок по новостройкам от собственников. Наш обзор сэкономит вам время и поможет сделать максимально рациональный выбор!

Улица Шаранговича (Фрунзенский район)

Девятиэтажка на Шаранговича, 45 появилась в 2005 году. Квартира находится на четвертом и занимает 57,5 м². Площадь кухни — 9,4 метра.

Здесь раздельные жилые комнаты. На полу уложен линолеум, выровнены стены, потолок — натяжной, установлены стеклопакеты.

Кухня идет с гарнитуром, некоторой бытовой техникой. В одной из комнат имеется выход на лоджию. Она утеплена, совмещена с комнатой. Сейчас там оборудован кабинет.

Санузел — раздельный.

Рядом много магазинов, детских учреждений. В шести остановках находится станция метро «Каменная горка».

Цена метра — 1 690 долларов. Квартира обойдется в 97 200 долларов.

Улица Высокая (Партизанский район)

Эта квартира также продается в девятиэтажке на улице Высокая, 11/В. Дом возвели в 2010 году. Двушка располагается на втором этаже и занимает 55,2 м². На кухню выделено 10,2 м².

Комнаты тут раздельные. На полу лежат ламинат и плитка. В кухне имеется гарнитур и встроенная техника. В коридоре стоит шкаф-купе.

Из комнаты есть выход на застекленный балкон.

Санузел — раздельный.

Недалеко от дома находится магазин, чуть дальше — автобусные остановки. За 10−15 минут можно добраться до метро «Восток» и «Московская».

Квадратный метр стоит 1 793 доллара. Двухкомнатная квартира обойдется в 99 тысяч долларов.

Улица Щорса (Московский район)

Последняя квартира в подборке прописалась в семиэтажном доме на Щорса, 3. Его сдали в эксплуатацию в 2008 году. Двушка находится на первом этаже. Ее площадь — 63,1 м². Кухня — 10, 8 метра.

Комнаты — раздельные, выходят на разные стороны. В кухню можно попасть двумя способами: из коридора и комнаты. На полу лежит линолеум. В оконных проемах установлены деревянные стеклопакеты.

Из кухни есть выход в кладовую. В квартире имеется и балкон.

Санузел здесь раздельный.

Во дворе стоит шлагбаум. Пешком можно дойти до станции метро «Грушевка». Поблизости есть кофейни и магазины.

Цена квадратного метра составляет 1 577 долларов. За двушку нужно отдать 99 500 долларов.

Кстати, эту квартиру, как и остальные квартиры на Realt, можно купить в лизинг. Получить индивидуальную консультацию от специалистов можно вот здесь.

Читайте также:

До 58 тысяч долларов. Как выглядят самые дешевые однушки в Минске

В 40 минутах от Минска продается новый дом с сауной по цене двушки. Не в СТ, участок — 25 соток

Читать:
Лента новостей
Опрос
Как вы считаете, покупать квартиру лучше сейчас или следует подождать?