Регистрация

В центре и с хорошим ремонтом. Какие сталинки сейчас можно купить в Минске?

24.09.2025 22272

Одно из серьезных опасений тех, кто хотел бы купить сталинку, это ремонт, который предстоит делать после покупки. Мы нашли варианты, чтобы можно было заехать сразу и не тратить при этом время и деньги на переделки. Показываем квартиры — есть однушки, двушка и трешки — до 200 тысяч долларов, которые сейчас продаются в центре Минска или недалеко от него. Кстати, все их можно купить в лизинг — бесплатная консультация вот тут.

Однушка около Немиги

Начинаем нашу подборку с аккуратной однокомнатной квартиры недалеко от площади Богушевича на первом этаже семиэтажной сталинки на Немиге, 34.

Общая площадь — 38 метров, из них 21 квадрат жилой. Площадь кухни — 7 метров.

В квартире полностью заменены коммуникации и проведены новые инженерные системы и только недавно сделан ремонт. Стены выкрашены в белый цвет. На полу в прихожей и кухне лежит плитка. 

В жилой комнате на полу лежит дубовый паркет. 

Санузел совмещенный. 

Стоимость этой аккуратной однушки102 900 долларов. Метр — 2 708 долларов

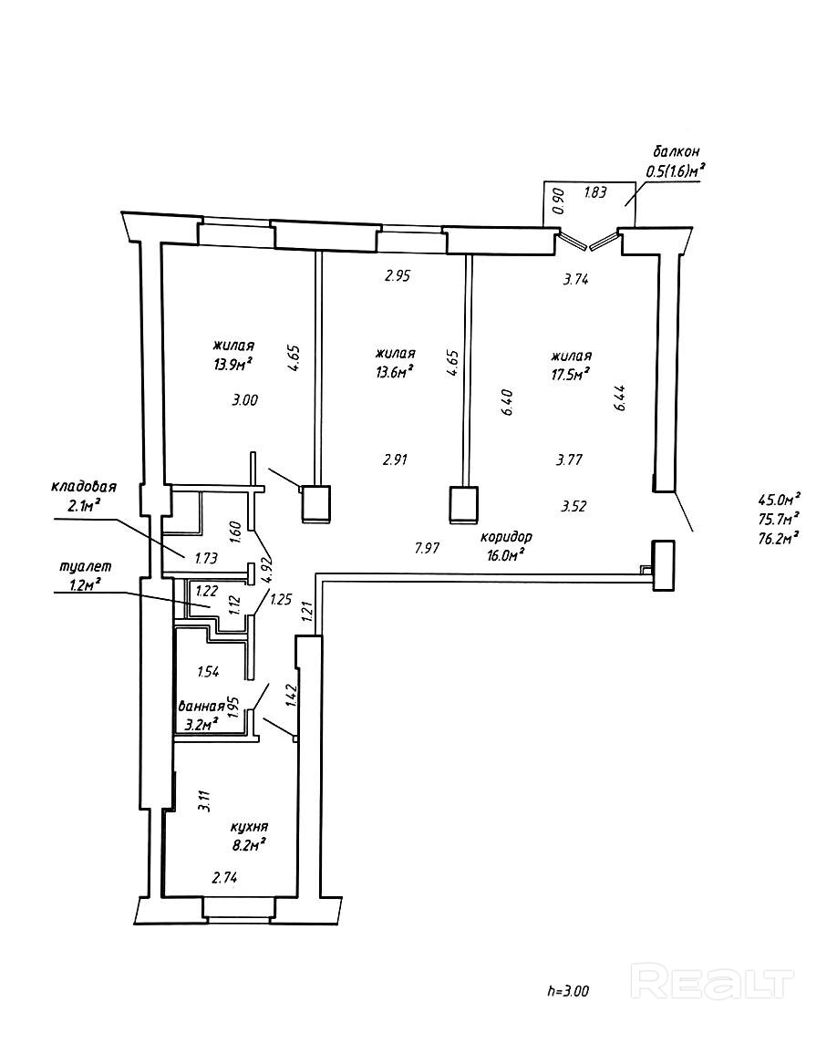
Трешка недалеко от вокзала

Вторая квартира — трехкомнатная. Она расположена на четвертом этаже пятиэтажного сталинки 1957 года на Свердлова, 32.  

Общая площадь квартиры — 76 квадратов, жилая — 45, метраж кухни — 8 квадратов.

В квартире заменили электрику и сантехнику, подняли полы, а после этого постелили паркет и итальянскую плитку. В жилых комнатах оборудовали гостиную, спальню и детскую. Окна выходят на разные стороны: обе спальни — во двор. В гостиной есть выход на балкон.

Мягкая мебель в квартире Furman.

Кухонные фасады выполнены в нежно-сером цвете. Техника — Smeg.

Санузел раздельный. В ванной комнате установлена душевая кабина, в туалете есть дополнительный умывальник.

Это самая дорогая квартира нашей подборки. Трешка обойдется в 199 700 долларов (метр — 2 621 доллар).

Однушка на улице Якуба Коласа

Эта однокомнатная квартира находится на втором этаже четырехэтажной сталинки недалеко от станции метро «Академия наук». Ее адрес — улица Якуба Коласа, 27 корпус 1.

Общая площадь однушки — 46 квадратов, жилая — 23 метра. Площадь кухни — 9 метров. В квартире трехметровые потолки. 

Ремонт в квартире переделали капитально: удалили старую отделку, пол сделали новый от плит перекрытия, ненесущие стены тоже выстроили новые.

Санузел раздельный. Установлена ванна и подключена стиральная машина. 

Эта однокомнатная квартира недавно подорожала, теперь она стоит 120 тысяч долларов. Квадрат выходит 2 592 доллара.

Трешка на улице Козлова

Эта трехкомнатная квартира находится в сталинке в десяти минутах от станции метро «Площадь Победы». Четвертый этаж четырехэтажного дома на Козлова, 23.  

Общая площадь — 75 метров, жилая — 51 квадратный метр. Кухня — 9 квадратов. Все комнаты раздельные. Их площадь — 19, 18 и 13 метров.

Высота потолков в квартире — 2,92 метра. На полу лежит ламинат и плитка. В гостиной есть выход на незастекленный балкон

Окна выходят на три стороны. В некоторых комнатах по два окна.

Санузел раздельный. Установлена ванна, подключена стиральная машина.

Стоимость этой трешки — 168 800 долларов. Квадрат — 2 263 доллара.

Двушка около площади Коласа

Последняя квартира подборки двухкомнатная. Она находится в сталинке 1959 года на проспекте Независимости, 48. Это рядом с Белгосфилармонией и станцией метро «Площадь Якуба Коласа».

Общая площадь — 55 метров, жилая — 33, площадь кухни — 9 квадратов. Окна выходят на разные стороны: спальня и кухня — во двор, а гостиная на проспект.

В квартире во время ремонта заменили электропроводку и поставили новые стеклопакеты. Интерьер в классическом стиле. Вся мебель в жилых комнатах, как и межкомнатные двери, выполнена из массива дуба.

Из бытовой техники есть посудомоечная машина, варочная панель, духовой шкаф и микроволновка. Все от бренда MAUNFELD.

Санузел совмещенный. Установлена душевая. Есть бойлер, биде и стиральная машина.

Эта двушка обойдется покупателю в 155 тысяч долларов. Метр — 2 793 доллара.

Читайте также:

На улице Карла Маркса продают яркую сталинку. Квадрат стоит больше 4000 долларов

«Планируем до конца года сдать три секции». Застройщик резонансного ЖК рассказал, как идет стройка

«Жизнь в моменте стала сплошным мучением». Побывали в кварталах около Комаровки, где в будущем будет метро

Читать:
Лента новостей
Опрос
Как вы считаете, покупать квартиру лучше сейчас или следует подождать?