Регистрация

От 62 тысяч долларов. Как выглядят бюджетные двушки в Минске без проходных комнат

31.08.2025 21066

Собрали подборку двухкомнатных квартир площадью до 40 квадратных метров. Их особенность и в том, что обе комнаты изолированные. В некоторых вариантах можно жить даже после покупки, часть нуждается в капитальном обновлении. Кстати, тут можно найти жилье недалеко от метро и по бюджетной цене. Смотрим и выбираем (кстати, все квартиры можно купить в лизинг — бесплатная консультация вот тут).

Улица Глебки (Фрунзенский район)

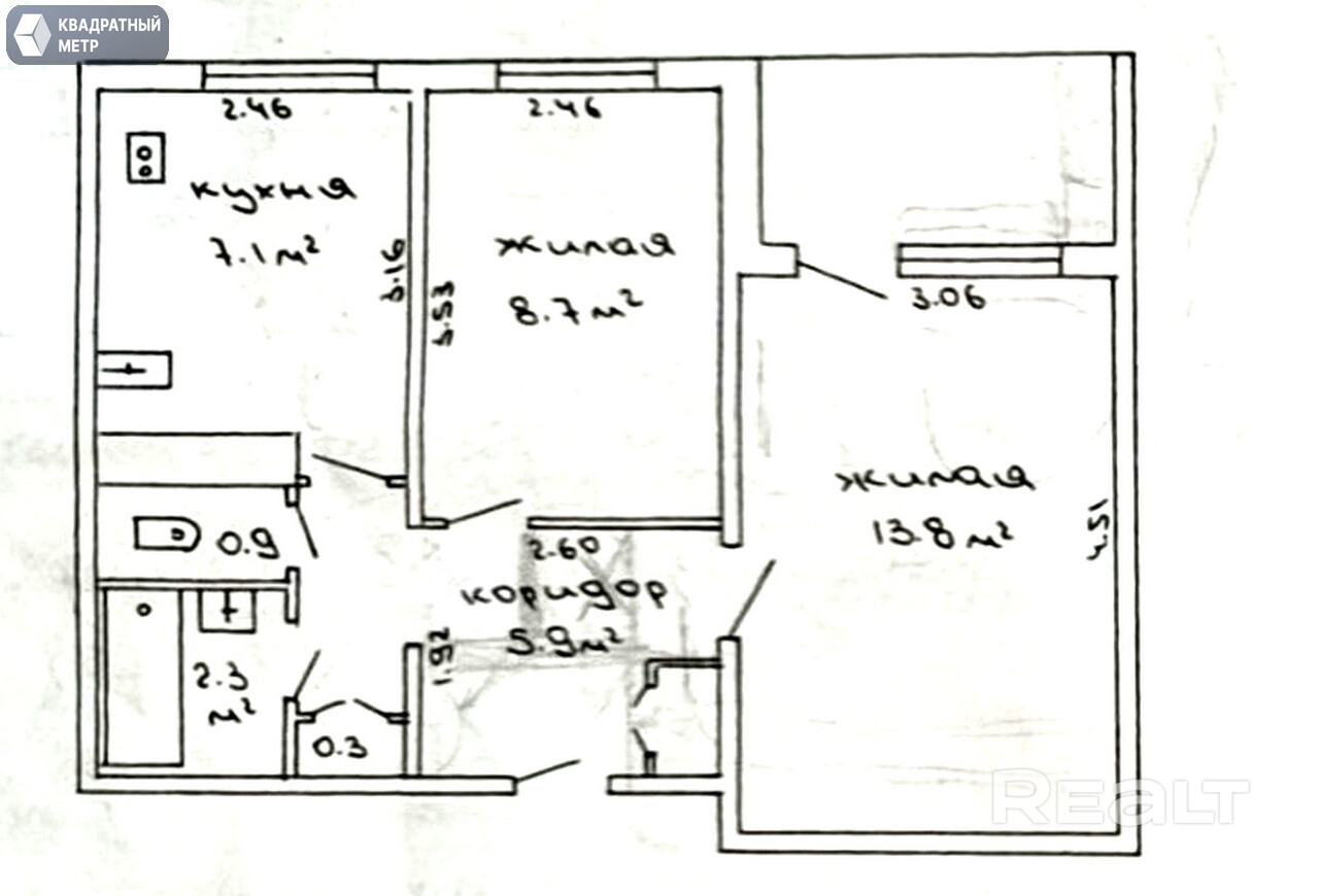
В 1973 году на Глебки, 70 появился пятиэтажный жилой дом. На последнем этаже тут продается квартира в 39,8 м². Из них — 6,2 квадрата приходится на кухню.

Квартира находится в хорошем состоянии. Здесь можно сразу жить. В одной из комнат есть выход на застекленный и отделанный балкон. В коридоре поместился шкаф-купе. На полу лежат ламинат и плитка.

Санузел тут раздельный. В ванной стоит стиральная машина.

Дом находится рядом с двумя праками. В нескольких остановках располагается станция метро «Спортивная».

Квартира стоит 75 тысяч долларов. Квадрат обойдется в 1 884 доллара.

Улица Филатова (Партизанский район)

Четырехэтажка на Филатова, 10 появилась в 1958 году. В 2020-м тут прошел капремонт. Двушка продается на первом этаже. Ее площадь составляет 39,5 м², кухня занимает 6,6 м².

В этой квартире тоже можно жить после покупки. В окнах стоят стеклопакеты, на полу лежат ламинат и плитка. Сделаны натяжные потолки. В двушке остаются гарнитур и бытовая техника.

Санузел — совмещенный. Балкона нет.

Рядом есть магазины, детские сады, школы, поликлиника. Станция метро «Партизанская» находится в шаговой доступности.

Цена двушки — 75 тысяч долларов. Метр обойдется в 1 899 долларов.

Улица Ольшевского (Фрунзенский район)

На последнем этаже пятиэтажки 1973 года на Ольшевского, 73 продается квартира в 38,2 м² с кухней в 6,1 м². В 2014 здесь был проведен капремонт.

Жилье нуждается в обновлении. На полу лежат линолеум, дерево и плитка. Как и во многих советских квартирах, стена на кухне частично облицована плиткой. В жилой комнате есть выход на балкон. 

Есть изолированные ванная и туалет. 

Поблизости — парк имени 60-летия Октября с водоемом. 10 минут понадобится, чтобы доехать до станции метро «Спортивная».

Просят за двушку 66 тысяч долларов. Таким образом, метр — 1 728 долларов.

Улица Уборевича (Заводской район)

Пятиэтажка на Уборевича, 70 появилась в 1970 году. Двушка, что выставлена на продажу, находится на первом этаже. Ее площадь — 38,6 м². На кухню отводится 6,2 м².

Это жилье тоже под ремонт. Полы тут деревянные, стены оклеены обоями, потолки побелены. В квартире есть балкон.

Санузел здесь раздельный.

Рядом располагается парк Красная Слободам, чуть дальше — Чижовское водохранилище.

61 800 долларов — вот цена за квартиру. Квадратный метр обойдется в 1 601 доллар.

Партизанский проспект (Заводской район)

Девятиэтажка на Партизанском проспекте, 30/2 была построена в 1968 году. На пятом продается двушка в 39,6 м². На кухню отведено 7,1 м².

Квартиру нужно освежить. На полу лежит линолеум. Из жилой комнаты имеется выход на застекленную лоджию. В квартире есть два шкафа. Кухонный гарнитур изготовлен из натурального дуба.

Санузел — раздельный.

Дом находится напротив национального футбольного стадиона.

Квартиру оценили в 76 500 долларов. За метр нужно будет отдать 1 932 доллара.

Кстати, эту квартиру, как и остальные квартиры на Realt, можно купить в лизинг. Получить индивидуальную консультацию от специалистов можно вот здесь.

Читайте также:

Готовая двушка для семьи с ребенком около метро. Показываем эту квартиру в Минске

Минчане стильно переделали двушку в хрущевке недалеко от центра. Показываем, что получилось

iPhone 16 Pro Max в наличии? Смотрим, что и почем продается в премиум-реселлере Apple

Юбка — 39,98 BYN. Закупаемся к школе в ТРЦ, на рынке и в универмаге

Читать:
Лента новостей
Опрос
Как вы считаете, покупать квартиру лучше сейчас или следует подождать?