Регистрация

В секретной минской многоэтажке продается трехкомнатная квартира. Цена квадрата впечатляет

08.08.2025 18370

Недавно мы рассказывали, что в «секретной» многоэтажке рядом с Дроздами продают встроенные помещения. А теперь в продаже появился настоящий эксклюзив - трехкомнатная квартира. Жилье на седьмом этаже дома, напоминающего корабль, продается по рекордной стоимости. Квадрат в квартире без отделки оценили в 4100 долларов. Рассказываем.

Напомним, что жилой дом рядом с проспектом Победителей в Минске возвели в рекордно короткие сроки — его построили буквально за год. Новостройка на престижной улице Тихой была готова еще прошлой осенью, но информация о том, кому достанутся квартиры в доме, так и осталась в секрете: в свободную продажу жилье в доме-корабле не попало.

По своей архитектуре дом перекликается с соседним бизнес-центром Riviera Plaza. Из-за этого сходства местные жители даже поначалу принимали жилой дом за офис. В итоге, многоэтажка стала пятым круизным лайнером, пришвартованным рядом с водохранилищем Дрозды.

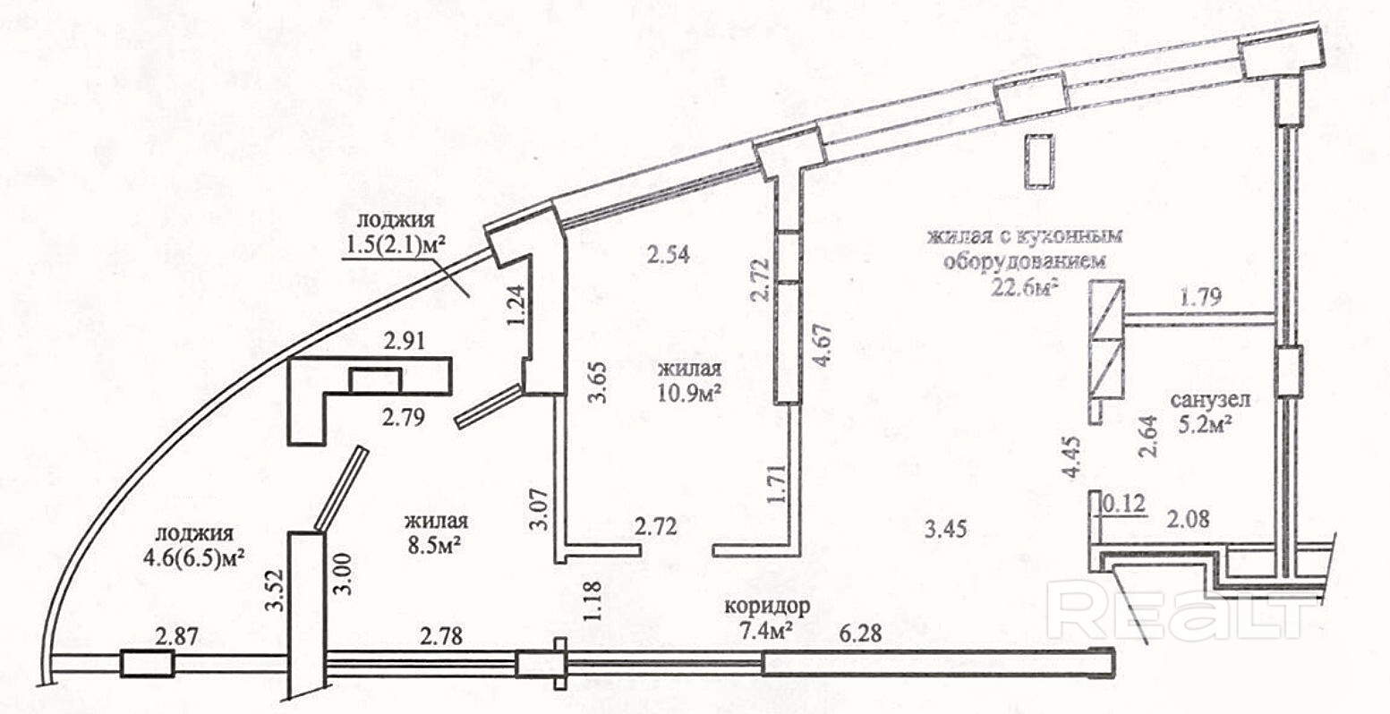
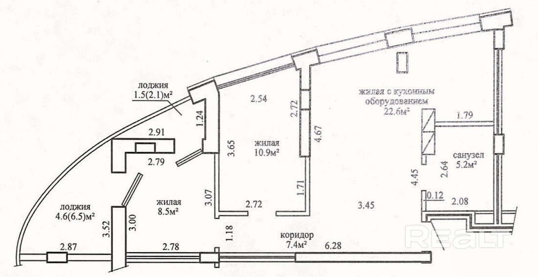
Квартира, выставленная на продажу, расположена на седьмом этаже. Общая площадь жилья составляет 60 квадратных метров, жилая — 42 квадратных метров.

Квартира состоит из кухни-гостиной с панорамными окнами, а также двух жилых комнат. Из окон открывается вид на улицу, в трешке — несколько лоджий (с выходом из одной комнаты) и совмещенный санузел. Жилье предлагается без отделки.

Судя по фотографиям из объявления, внизу дома расположилось респектабельное лобби.

Территория у дома — закрытая, на въезде установлен шлагбаум. Чуть поодаль от новостройки размещается детская площадка. Также тут есть зарядка для электромобилей и велопарковка.

Недалеко от дома располагается бизнес-центр со спа-комплексом, напротив − ЖК «Лазурит» и «Минск Арена», в шаговой доступности − торговый центр «Арена-сити» с гипермаркетом, кинотеатром и бутиками. При этом сам дом стоит в глубине от проспекта − ближе к частной застройке.

Стоимость квартиры — 249 тысяч долларов (4109 долларов — за метр).

Читать:
Лента новостей
Опрос
Как вы считаете, покупать квартиру лучше сейчас или следует подождать?